The UK's Largest Customer Review Website for the Property Industry
The UK's Largest Customer Review Website for the Property Industry
Back to Property Listings
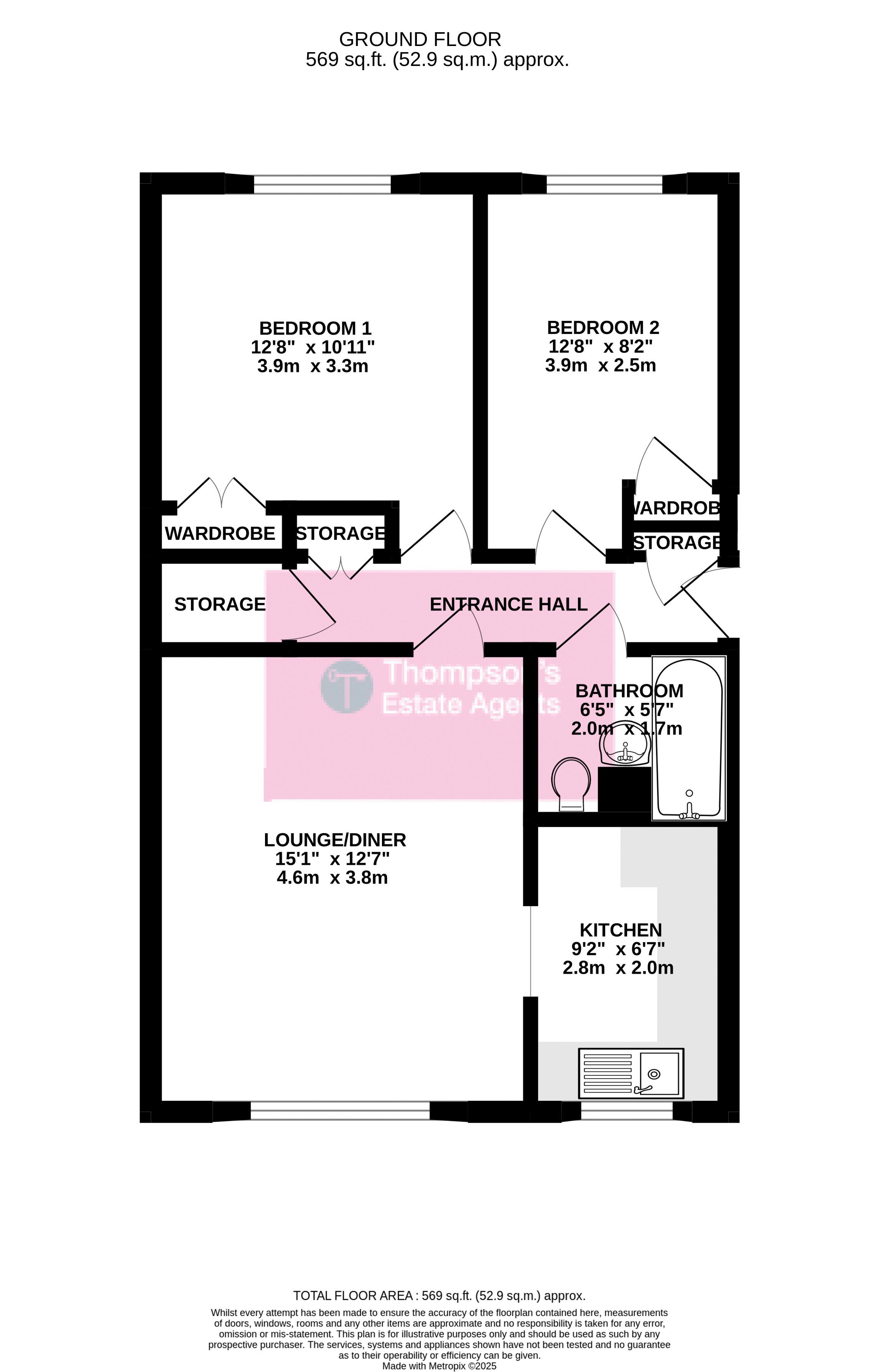
Brooklands Road, Sale
**** TWO DOUBLE BEDROOM, TOP FLOOR APARTMENT READY TO PICK YOUR BAGS UP AND MOVE STRAIGHT INTO WITH NO CHAIN **** This SPACIOUS apartment benefits from a 15FT bright and airy lounge and dining room, a modern fitted kitchen, two double bedrooms, a modern fitted three piece bathroom and plenty of built in storage!! The property also comes with a garage and spacious well maintained communal gardens. Located in the popular Cloverley development with easy access into Sale town centre, excellent transport and network links with just a short walk away from Brooklands Metrolink and within close proximity to Wythenshawe Hospital and Manchester Airport. It is very close to popular primary and secondary schools. The property is gas central heated and double glazed throughout. Viewings are highly recommended and can be arrange by contacting the office. Leasehold is the remainder of 999 years - Service charge £105.00 PCM

This property is marketed by

Thompsons Estate Agents - Thompson's Estate Agents, Altrincham, WA14
5/5 Rating
(246) reviews
Agent Statistics (Based on 246 Reviews) :