The UK's Largest Customer Review Website for the Property Industry
The UK's Largest Customer Review Website for the Property Industry
Back to Property Listings
Brook Green, W14
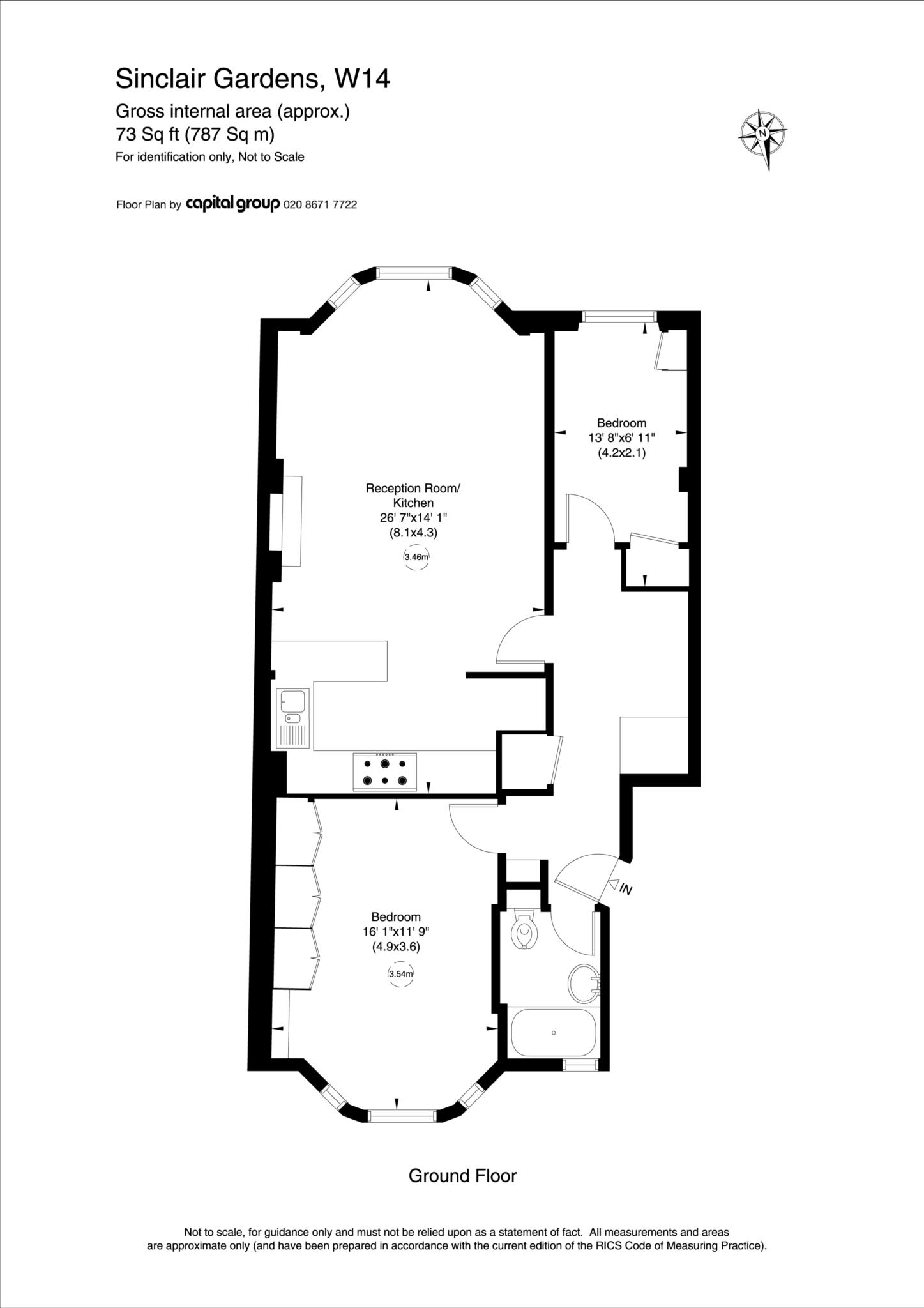
A two bedroom apartment period conversion on the raised ground floor of a smart Victorian block on Sinclair Gardens, W14. An open plan reception room/kitchen is at the front of the apartment, with two bedrooms and a bathroom to the rear. The apartment is ideally positioned for the transport links of Shepherds Bush just a short walk away, as well as the shopping, restaurants and bars of Westfield.
Part Furnished, Available 22nd July 2025
what3words /// emerge.hints.pace
Redress scheme provided by: The Property Ombudsman (7703798)
Client Money Protection provided by: Tenancy Deposit Scheme (G03194)
Council Tax
Royal Borough Of Ken & Chelsea, Band D
Utilities
Electric: Mains Supply
Gas: Mains Supply
Water: Mains Supply
Sewerage: None
Broadband: None
Telephone: None
Other Items
Heating: Gas Central Heating
Garden/Outside Space: No
Parking: No
Garage: No

Agent Statistics (Based on 0 Reviews) :