The UK's Largest Customer Review Website for the Property Industry
The UK's Largest Customer Review Website for the Property Industry
Back to Property Listings
Broadmead, Exmouth
Situated within level walking distance of Brixington parade of shops, including Co-Op and Tesco is this purpose built, self contained, 2 bedroom ground floor flat with its own garden and garage. This uPVC double glazed property has electric heating with the accommodation comprising of a living room, modern fitted kitchen / breakfast room, 2 bedrooms (both having storage) and modern fitted bathroom. This property would, perhaps, make an ideal first time buy and an appointment to view is strongly advised.
Accommodation
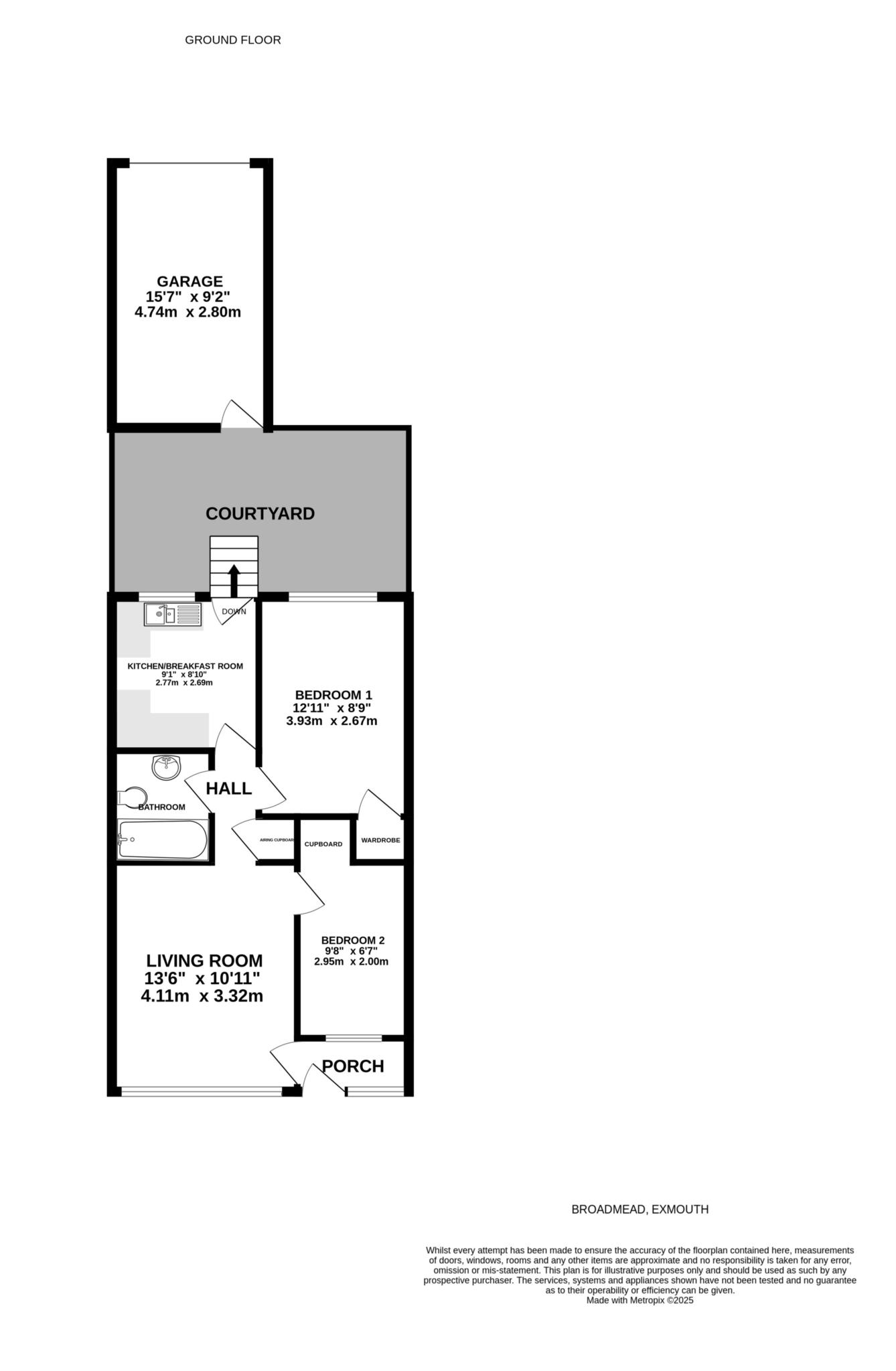
Ground Floor
Step up to UPVC double glazed front entrance door, beneath storm canopy, leading to:
Entrance Porch
Obscure uPVC double glazed window to front. Tiled flooring. Half glazed door leading to:
Living Room - 13'6" (4.11m) x 10'11" (3.33m)
uPVC double glazed picture window to front. Electric convector heater. Coved ceiling. Door leading to bedroom 2 and:
Inner Hallway
Airing cupboard housing the hot water tank with slatted shelving. Smoke alarm. Doors leading to bedroom 1, bathroom and:
Kitchen / Breakfast Room - 9'1" (2.77m) x 8'10" (2.69m)
uPVC double glazed external door leading to own Courtyard garden, uPVC double glazed window adjacent. Good range of modern fitted cupboard and drawer storage units with roll edged work surfaces and ceramic tiled splash backs. Stainless steel one and a half bowl sink with single drainer unit and mixer tap. Electric cooker points with filter hood above. Space and plumbing for washing machine. Further space under worktop for fridge and freezer etc.
Bedroom 1 - 12'11" (3.94m) x 8'9" (2.67m)
uPVC double glazed window to rear. Built-in single wardrobe including slatted shelving. Economy 7 electric heater. Coved ceiling.
Bedroom 2 - 9'8" (2.95m) x 6'7" (2.01m)
Window to front. Useful built - in storage cupboard including hanging rail and slatted shelving. Electric meter and trip switch fuse box.
Bathroom
White suite comprising panelled bath with electric shower unit over, low level WC and pedestal wash hand basin. Fully tiled walls. Shaver light and socket. Extractor fan. Wall mounted electric heater.
Externally
There is an open plan area of garden to the front which consists of patio, an ideal space for outdoor dining and sitting during the fine weather. The remainder is then laid to lawn. Useful under external stairs storage area for bins etc.
Rear Garden
The property further enjoys its own enclosed and easy to maintain Rear Courtyard Garden. It is laid mainly to patio, again being an ideal space for outdoor dining and sitting during the fine weather. Brick wall and timber fenced boundaries. Outside water tap. Personal door leading to:
Garage - 15'7" (4.75m) x 9'2" (2.79m)
Up and over door to front. Power and light connected. Personal door leading to rear courtyard garden.
Tenure
The property is LEASEHOLD. There are approximately 128 years remaining on the lease. Service Charge of ?39 per calendar month which includes buildings insurance.
Services
Mains Water, Drainage & Electric are connected. The property is on a water meter. Council Tax Band A
Mortgage Assistance
We are pleased to recommend Meredith Morgan Taylor, who would be pleased to help no matter which estate agent you finally buy through. For a free initial chat please contact us on 01395 222350 to arrange an appointment
Your home may be repossessed if you do not keep up repayments on your mortgage
Meredith Morgan Taylor Ltd is an appointed representative of The Openwork Partnership, a trading style of Openwork Ltd which is authorised and regulated by the Financial Conduct Authority (FCA).
Directions
From our prominent Town Centre office, turn left along Rolle Street and continue into Rolle Road. At the roundabout, proceed onto Salterton Road. At the Littleham Cross traffic lights, turn left into Bradham Lane. At the mini roundabout, turn right into St Johns Road and second left into Churchill Road. As you reach Brixington shops, turn left into Broadmead, where the property will be found on the right hand side.
what3words /// submit.hooked.assist
Notice
Please note we have not tested any apparatus, fixtures, fittings, or services. Interested parties must undertake their own investigation into the working order of these items. All measurements are approximate and photographs provided for guidance only.
Lease Length
128 Years
Utilities
Electric: Mains Supply
Gas: None
Water: Mains Supply
Sewerage: Mains Supply
Broadband: Unknown
Telephone: Unknown
Other Items
Heating: Electric Heaters
Garden/Outside Space: Yes
Parking: No
Garage: Yes

Agent Statistics (Based on 735 Reviews) :