The UK's Largest Customer Review Website for the Property Industry
The UK's Largest Customer Review Website for the Property Industry
Back to Property Listings
Broad Street, Warwick
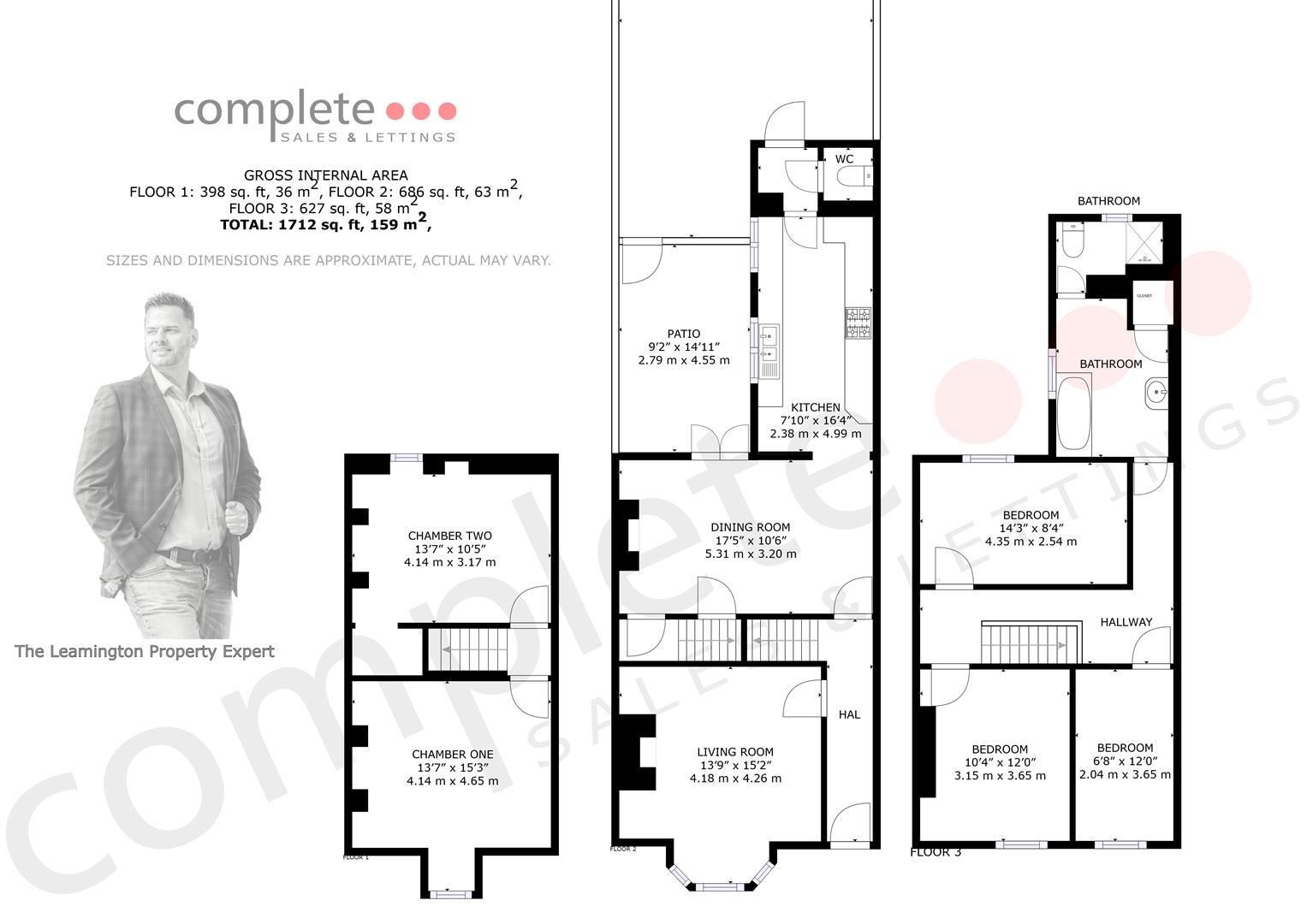
A beautifully extended 1850s late Victorian end terrace home, located in the heart of historic Warwick, within walking distance of the town centre, Warwick train station, St Nicholas Park, Warwick Hospital, and the highly regarded Coten End Primary School. This characterful property is full of period charm and offers spacious, versatile living. The accommodation comprises: an inviting entrance hall, a bay-fronted living room with a feature fireplace, a large dining room perfect for entertaining, a well-fitted kitchen, a guest WC, and a two-chambered basement ideal for storage or conversion. Upstairs, there are three generously sized bedrooms and a family bathroom. Outside, the home benefits from both front and rear gardens, as well as a garage. A rare opportunity to own a substantial period home in a highly sought-after central Warwick location.
It's in the details...
Entrance Hall
Timber glazed door skylight above it into the entrance hall, which has quarry tile flooring and a fitted door mat. A radiator and the staircase lead to the first floor. Timber doors lead into the living room and dining room.
Living Room
A beautiful bay fronted lounge which has high ceilings, coving, picture-rail, a radiator and an open fireplace with a timber surround.
Dining Room
Extremely spacious dining room with exposed floorboards, downlighting, table pendant, an ornate decorative fireplace, a radiator, coving, timber French doors to the garden, door to the storage cupboard and door to the basement. Square opening through to the kitchen.
Kitchen
An oak kitchen, composite worktops, one and a half bowl Frankie sunken sink with engraved drainer and mixer tap. Fitted dishwasher, space and plumbing for washing machine, pull-out racking, fitted fridge, fitted freezer, space for a dryer, wine racking, space for large range style gas cooker with stainless steel splashback and extractor over. Undercounter lighting, two uPVC double glazed windows to the side elevation and an oak door through to the rear hall.
Rear Hall
Timber click flooring, a small handbasin storage cupboard, wall lighting, a painted door to the garden and outdoor through to the guest WC.
Guest WC
With a toilet, electric dimplex heater, wall lights, and a storage cupboard.
Basement
Stairs lead down to the mini hallway with timber doors to two good-sized cellar chambers.
Chamber One
Which is to the street side. There is an electric wall-mounted heater, carpeted floor, plastered walls and lighting. There is a timber window to the front.
Chamber Two
With good head height, an electric heater, three alcove recesses and a timber double glazed window.
Landing
A spacious landing with fitted bookshelves, timber doors lead through to the three bedrooms and a further corridor leads to the timber door to the bathroom.
Bedroom One
A double bedroom with timber flat laminate flooring, all lights, a radiator and a beautiful timber sash window to the front.
Bedroom Two
A double bedroom that has a timber sash window to the rear, a fitted wardrobe and a radiator.
Bedroom Three
Good-sized 3rd bedroom, beautiful sash window to the front and a radiator.
Bathroom
With a white suite comprising a bath with a mixer tap with handheld shower attachment, a pedestal hand wash basin, a large airing cupboard with a Worcester gas boiler, downlights, a timber sash window, a radiator and a door through to the toilet/shower.
Toilet & Shower
A glass door shower enclosure, with a thermostatic mains shower and is fully tiled. There is a toilet, a chrome towel radiator, down-lights and a timber sash window.
Rear Garden
Good size rear garden, which is laid to lawn with contour borders full of flowers, plants and bushes. There is a door through to the concrete sectional garage in a pathway with boxed bedding for a vegetable garden to the side, with a gate to the rear access. Blue brick patio and an outside tap.
Garage
A concrete sectional garage to the rear with an EV car charger.
Location
.The local schools are excellent: Coten End Primary is just over a 5-minute walk away and has a Good Ofsted Rating (2/5 categories Outstanding), and Myton Secondary School is c. 1 mile away and has a Good Ofsted Rating.
.It's a short walk to Warwick Railway Station, and the local bus routes are very good, with a bus stop on Coten End.
.It's a 5-10 minute walk to 2 fantastic parks: St Nicholas Park (with a children's playground, crazy golf, children's rides, and a café) and Priory Park (a natural park with meadow and woodland walks). Warwick Racecourse is also only about 1.5 miles away and is a lovely spot for a walk.
.There are several great pubs within walking distance, including The Bowling Green, The Black Pug, The Wild Boar, The Roebuck and The Saxon Mill.
.There are at least 4 lovely cafes within a 10-minute walk.
.Smith Street, with lots of independent shops and restaurants, is also a 5-10 minute walk away.
. Warwick Square (with lots more pubs and restaurants) is a 10-15-minute walk

This property is marketed by

Complete Estate Agents - Leamington-Spa, Leamington Spa, CV32
4.9/5 Rating
(724) reviews
Agent Statistics (Based on 724 Reviews) :