The UK's Largest Customer Review Website for the Property Industry
The UK's Largest Customer Review Website for the Property Industry
Back to Property Listings
Braybrooke Gardens, Saffron Walden
A five bedroom residence set in an exclusive development within the town. The property offers spacious accommodation over four floors, with far reach views over the rooftops. In addition, there is a private south facing garden, secure garaging and use of a central landscaped communal garden.
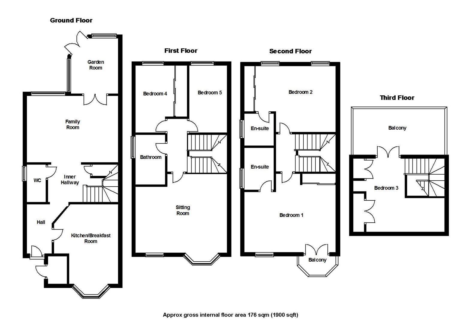
Ground Floor -
Entrance Hall - Glazed entrance door with arched window above, staircase rising to the first floor with understairs storage cupboard, open plan to family/dining room and door to:
Kitchen - 5.51m x 3.35m (18'1 x 11) - Fitted with an extensive range of base and eye level units, also incorporating matching central island, all with granite worktop space over, stainless steel sink unit, waste disposal unit and water softener, high quality appliances including induction hob with glass and stainless steel extractor hood over, built in combination microwave oven and plate warmer, integrated fridge freezer, washing machine, dishwasher and wine cooler, tiled flooring and bay window with fitted shutters to the front aspect overlooking the communal gardens.
Family/Dining Room - 5.31m x 3.51m (17'5 x 11'6) - A well-proportioned room with sash window to the rear aspect overlooking the courtyard and garden, and glazed doors leading to:
Conservatory - 2.82m x 2.74m (9'3 x 9) - Hardwood framed conservatory with a series of windows overlooking the garden and courtyard, with a pair of glazed doors providing access. Roof with fitted blinds and tiled flooring.
Cloakroom - Refitted suite comprising low level WC pedestal wash hand basin, fully tiled walls, illuminated mirror and obscure glazed window with fitted shutter.
First Floor -
Landing - Staircase rising to the second floor and doors to adjoining rooms.
Sitting Room - 5.51m x 4.93m (18'1 x 16'2) - Bay window with fitted shutters to the front aspect, additional window with fitted shutters to the front aspect.
Bedroom 4 - 3.66m x 2.95m (12' x 9'8) - Sash window to the rear aspect overlooking the garden, fitted with a range of wardrobes with shelving, hanging space and mirrored sliding doors.
Bedroom 5 - 3.53m x 2.16m (11'7 x 7'1) - Window to the rear aspect overlooking the garden.
Bathroom - 2.59m x 1.70m (8'6 x 5'7) - Refitted quality suite comprising deep double ended bath, pedestal wash hand basin, low level WC, travertine tiled walls and flooring with underfloor heating, heated towel rail, illuminated mirror and window with fitted shutter.
Second Floor -
Landing - Doors to adjoining room and staircase rising to the third floor.
Bedroom 1 - 4.90m x 4.34m (16'1 x 14'3) - A well-proportioned room with a pair of glazed doors leading to a balcony with views over the gardens, town rooftops and partial views of the Church spire. Further window with fitted shutter to the front aspect, built in wardrobes with hanging rail, shelving and mirrored sliding doors. Door to:
En Suite - A stylish, contemporary suite comprising large walk-in shower enclosure, vanity wash hand basin, low level WC, polished tiled walls and tiled flooring, heated towel rail, illuminated mirror and obscure window.
Bedroom 2 - 5.26m x 3.53m (17'3 x 11'7) - A pair of windows overlooking the rear garden, fitted wardrobe with handing rail and sliding doors. Door to:
En Suite - Refitted stylish suite comprising shower enclosure, low level WC, vanity wash hand basin, tiled walls and flooring, heated towel rail, illuminated mirror and window with fitted shutter.
Third Floor -
Bedroom 3 - 4.06m x 4.04m (13'4 x 13'3) - A multi-functional room providing a multitude of uses with a pair of glazed doors leading to a large paved, south-facing roof terrace, enjoying views over the town and rooftops. Fitted cupboards housing the pressurised hot water cylinder and recently updated boiler, built in wardrobe, wash hand basin and access to eaves storage space.
Outside - Braybrooke Gardens is set in a central town location and enjoys a well-maintained communal, private garden with central bandstand. To the side of the property are two allocated parking spaces and gated garage area. The rear garden is south facing and incorporates a paved terrace which is ideal for al fresco entertaining. There are flower and shrub beds and access to the rear path, in turn leading to the garages.
Garage - The property has its own garage within a gated area, providing an extra level of security.
Viewings - Strictly by appointment with the Agents.
Letting Agent Notes - Holding Deposit : £507.00
For more information on this property please refer to the Material Information brochure on our Website.

This property is marketed by

Cheffins - Saffron Walden, Saffron Walden, CB10
4.9/5 Rating
(754) reviews
Agent Statistics (Based on 754 Reviews) :