The UK's Largest Customer Review Website for the Property Industry
The UK's Largest Customer Review Website for the Property Industry
Back to Property Listings
Brandy Carr Road, Kirkhamgate, Wakefield
A SPACIOUS three bedroom end terrace with four floors of versatile living, garage, off road parking and attractive gardens in SOUGHT AFTER Kirkhamgate. VIRTUAL TOUR AVAILABLE. EPC rating E43.
A superb opportunity to purchase this three bedroom end terrace property enjoying spacious living accommodation spread over four levels benefitting from off road parking with garage and attractive rear gardens.
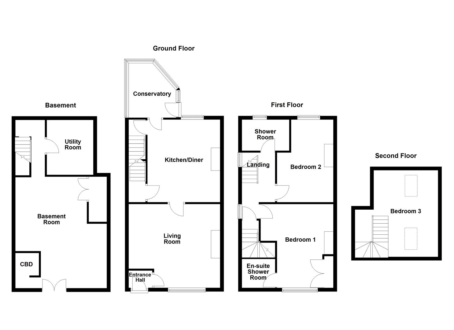
The ground floor of the property comprises an entrance hall which leads into a spacious living room, kitchen/diner with central island leading to the conservatory. The basement offers a utility room and a good size flexible living space. Off the first floor are two double bedrooms both with cast iron fireplaces and offering pleasant countryside views bedroom one benefitting from a fitted wardrobe and en suite shower room. There is a further modern shower room on this floor. The second floor has the benefit of a converted attic room which could be used as a third bedroom. Outside to the front is a attractive garden with steps down to the french doors accessing the basement room. To the rear there is off street parking with a single detached garage. A Yorkshire stone paved seating area runs under a timber pergola with doors to two outbuildings and access to the attractive lawned garden at the rear.
Situated in a prime location of Kirkhamgate, which has fantastic transport routes including the motorway to Leeds, Sheffield and further afield. Within easy reach of local good schools and amenities, as well as supermarkets and bus routes. Outwood train station is also easily accessible, perfect for the commuter wishing to work or travel further afield.
Only a full internal inspection will reveal all that's on offer at this quality home and an early viewing comes highly recommended.
Accommodation -
Entrance Hall - UPVC double glazed front entrance door with further door into the living room.
Living Room - 4.6m (max) x 3.58m (min) 5.01m (15'1" (max) x 11'8 - Detailed ceiling rose, ornate coving to the ceiling, picture rail, UPVC double glazed sash windows overlooking the front aspect, central heating radiator and open fire grate with tiled hearth and solid wooden mantle. Door providing access to the entrance hall.
Kitchen/Diner - 4.56m x 3.97m (14'11" x 13'0") - Range of wall and base units with laminate work surface over, central island with tiled work surface over, belfast ceramic sink with mixer tap, space and plumbing for a dishwasher, Range cooker with five ring gas burner, electric griddle pit and cooker hood. Space for a fridge/freezer, dado rail, central heating radiator and door providing to the living room. Further doors with stairs to the lower ground floor and a staircase to the first floor landing.
Conservatory - 2.77m (max) x 1.47m (min) x 3.0m (9'1" (max) x 4'9 - UPVC double glazed rear door, UPVC double glazed windows on three sides, central heating radiator, laminate flooring and door leading into the kitchen/diner.
Basement Room - 6.14m x 2.75m (min) x 4.66m (max) (20'1" x 9'0" (m - Inset spotlights, a set of UPVC double glazed french doors to the front aspect, two central heating radiators, door to the utility room and an opening into a store cupboard.
Utility Room - 2.51m x 2.60m (8'2" x 8'6") - Range of base units with stainless steel sink and drainer, space and plumbing for a washing machine, inset spotlights, fixed shelving and central heating radiator.
First Floor Landing - UPVC double glazed sash windows overlooking the side elevation, central heating radiator and doors to two bedrooms and shower room. Staircase to bedroom three.
Bedroom One - 4.01m (max) x 2.73m (min) x 4.58m (13'1" (max) x 8 - UPVC double glazed sash windows overlooking the front elevation, central heating radiator, decorative fireplace with tiled hearth and solid wooden floor. Door to the en suite shower room and double doors to a built in wardrobe.
En-Suite Shower Room - 1.86m x 1.59m (6'1" x 5'2") - Three piece suite comprising low flush w.c., wash basin with tiled splash back and corner shower cubicle with electric shower. Central heating radiator, solid wooden floor and pitch sloping ceiling with exposed beam.
Bedroom Two - 4.57m x 3.08m (max) x 2.26m (min) (14'11" x 10'1" - UPVC double glazed sash window overlooking the rear elevation, decorative Victorian fire surround and central heating radiator.
Shower Room/W.C. - 1.73m x 2.67m (5'8" x 8'9") - Three piece suite comprising larger than average wash basin with swan neck mixer tap, low flush w.c. and shower cubicle with electric shower. Chrome ladder style radiator, UPVC double glazed frosted window overlooking the rear elevation and extractor fan.
Bedroom Three - 4.76m x 3.56m (15'7" x 11'8") - Two velux timber double glazed windows with built in blinds, pitch sloping ceiling with exposed beams, central heating radiator and small cupboard doors providing access into the eaves.
Outside - To the front of the property a cast iron gate provides access to the attractive front garden with pathway leading to the entrance door with steps leading down to the basement room. To the rear is a block paved driveway providing off road parking with a single detached garage. There is a Yorkshire stone paved seating area under a timber pergola with two timber doors providing access to two outhouses with outside toilet. The pathway leads to an attractive lawned garden with block paved patio area, perfect for entertaining and dining purposes, surrounded by walls and timber fencing.
Council Tax Band - The council tax band for this property is B.
Floor Plans - These floor plans are intended as a rough guide only and are not to be intended as an exact representation and should not be scaled. We cannot confirm the accuracy of the measurements or details of these floor plans.
Viewings - To view please contact our Wakefield office and they will be pleased to arrange a suitable appointment.
Epc Rating - To view the full Energy Performance Certificate please call into one of our local offices.

This property is marketed by

Richard Kendall Estate Agent - Wakefield, Wakefield, WF1
4.9/5 Rating
(1653) reviews
Agent Statistics (Based on 1653 Reviews) :