The UK's Largest Customer Review Website for the Property Industry
The UK's Largest Customer Review Website for the Property Industry
Back to Property Listings
Brackley Square, Woodford Green
A charming 1930s terrace offering four bedrooms, including a thoughtfully converted loft, and a driveway for two cars. This well-presented home boasts a generous garden framed by mature trees, creating a private outdoor retreat. With potential to extend at the rear (subject to planning permission), it offers exciting possibilities to enhance living space. Set within a quiet residential neighbourhood, the property is a short stroll from Woodford station and the delightful Ray Park, providing easy access to local amenities and green spaces. Perfect for families seeking a comfortable and inviting home with room to grow.
IF YOU LIVED HERE.
Your new home welcomes you with a wide hallway featuring built-in storage and pale wood flooring, while light filters in from the rear and through the glazed front door, creating a bright and airy first impression.
The reception room spans the depth of the home, anchored by a bay window with a built-in seat at the front and double doors at the rear opening onto the garden. A French-style internal door adds character while allowing light to travel between areas. At the back, the kitchen presents maple cabinetry, granite worktops, and integrated appliances, with a glazed door leading directly outside.
Beyond, a wooden deck creates an inviting area for dining and relaxation, leading to a generous lawn bordered by mature planting. The outside space continues with well-kept borders and established shrubs, offering plenty of room for outdoor living.
Upstairs, the main bedroom is a spacious haven, its wide bay window fitted with plantation shutters and complemented by a full wall of built-in wardrobes. Two further bedrooms provide calm, versatile rooms, with one enjoying leafy views and the other suited as a child's room or home office, while the family bathroom, finished in soft neutrals, includes both a bath and a separate shower.
From this floor, a striking staircase with dark wooden treads rises to the top of the home, where the loft bedroom awaits. This serene retreat features built-in storage and green views beyond, and with space for a double bed and furnishings, it offers a private sanctuary away from the busier spaces below. Together, these thoughtfully arranged rooms create a welcoming home that blends timeless charm with modern ease.
The surrounding area offers a wonderful blend of green spaces, dining, and everyday conveniences, making it an ideal place to call home. Just a short stroll away, Ray Park provides a peaceful escape with open lawns and play areas, perfect for family outings. For a traditional pub experience, the Crown & Crooked Billet offers warmth and character, while nearby Rosso Restaurant serves delicious meals in a charming setting. A little further, George Lane in South Woodford is renowned for vibrant cafés, boutique shops, and a relaxed atmosphere. Families will also appreciate the excellent schools close by, including the highly regarded Ray Lodge Primary School.
WHAT ELSE?
Woodford Station is just a fifteen-minute walk away, served by the Central Line, providing access across London. In addition, plenty of buses serve the local area, making travel convenient and accessible. Whether you're heading into the city or exploring nearby towns, this well-connected location ensures you're never far from where you need to be.
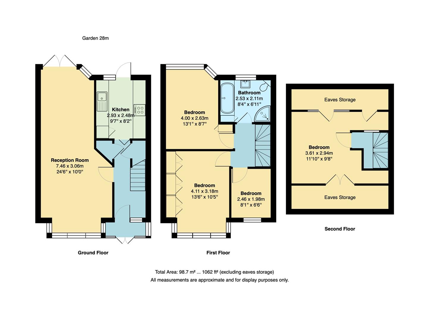
Reception Room - 7.46 x 3.06 (24'5" x 10'0") -
Kitchen - 2.93 x 2.48 (9'7" x 8'1") -
Bedroom - 4.11 x 3.18 (13'5" x 10'5") -
Bedroom - 4.00 x 2.63 (13'1" x 8'7") -
Bedroom - 2.46 x 1.98 (8'0" x 6'5") -
Bathroom - 2.53 x 2.11 (8'3" x 6'11") -
Bedroom - 3.61 x 2.94 (11'10" x 9'7") -
Garden - 28 (91'10") -
A WORD FROM THE EXPERT...
"Woodford Green, as its name suggests, has ample open spaces, including village greens, parks and forest land.
The area has a number of popular pubs and eateries. For Italian, the superb Bel Sit is known for its authentic family feel and collection of football shirts. Rosso on the Broadway and Mezze on the Green are also really popular.
Along the High Road are a number of historic 'watering holes' including the Cricketers, Travellers Friend, Rose & Crown and Horse & Well. For local shopping, Woodford Broadway is a good choice, including a lovely new fishmonger called Fatfish.
There are plenty of bigger family homes here, including the beautiful Arts and Crafts houses on the Monkhams Estate. Nearby is the charming inter-war Laings Estate with its green verges and pocket parks. For younger couples and families, there are smaller terraced houses and conversions to be snapped up.
Woodford Green is an ideal location for people looking for a mixture of town and country life, and a great place to put down family roots."
BEN CHARLETON
E18 ASSISTANT BRANCH MANAGER

This property is marketed by

The Stow Brothers - South Woodford, Woodford, E18
4.9/5 Rating
(2865) reviews
Agent Statistics (Based on 2865 Reviews) :