The UK's Largest Customer Review Website for the Property Industry
The UK's Largest Customer Review Website for the Property Industry
Back to Property Listings
Bolton Road, Darwen
Welcome to this beautifully maintained garden fronted terraced home located in the highly desirable Whitehall area of Darwen. This property features five spacious bedrooms, two expansive open-plan reception areas and a contemporary kitchen, providing ample room and comfort - ideal for families looking for a larger residence in a prime location.
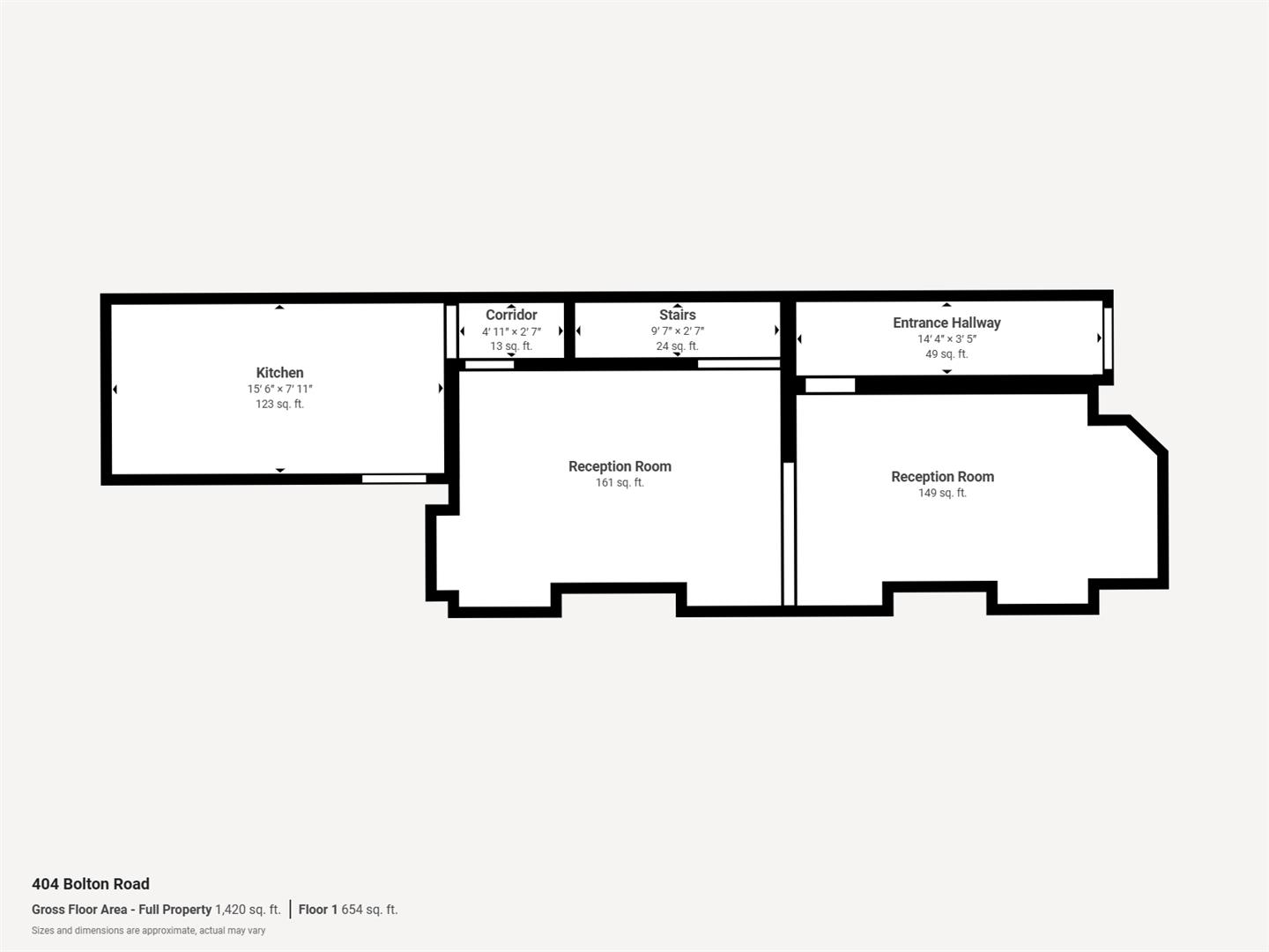
As we enter this property, the hallway guides you to two spacious reception rooms that have been thoughtfully combined to form a bright and adaptable living area. These open-plan spaces are perfect for entertaining guests or enjoying family time. The modern kitchen boasts a selection of contemporary wall and base units, integrated appliances and generous workspace.
The upper level of the property showcases five generously sized bedrooms spread across two floors. Each room is bathed in natural light, providing ample space, while the adaptable layout caters to a variety of needs. The family bathroom is notably large, equipped with contemporary fixtures, including a bath with an overhead shower, a WC, and a washbasin
Externally, you will find a spacious, enclosed yard that provides an excellent outdoor area, ideal for al fresco dining, children's activities, or even the possibility of future enhancements like a garden room or expanded living space, subject to planning approval.
Situated in the sought-after Whitehall area, this home benefits from a wealth of local amenities, with families particularly valuing the close proximity to several esteemed primary and secondary schools, all within walking distance. The property also benefits from nearby bus and train services, plus easy access to the M65 and M61, making commuting highly convenient.
With generous interiors, outdoor space, and outstanding local amenities, this is a rare opportunity for families seeking a forever home.
To arrange a viewing, please call the office on 01254 691352.
Reception Room One -
Kitchen -
Reception Room Two -
Bedroom One -
Bedroom Two -
Bedroom Three -
Bedroom Four -
Bathroom -
Attic Bedroom 5 -
Rear Enclosed Garden -

Agent Statistics (Based on 13 Reviews) :