The UK's Largest Customer Review Website for the Property Industry
The UK's Largest Customer Review Website for the Property Industry
Back to Property Listings
Blenheim Road, Caversham
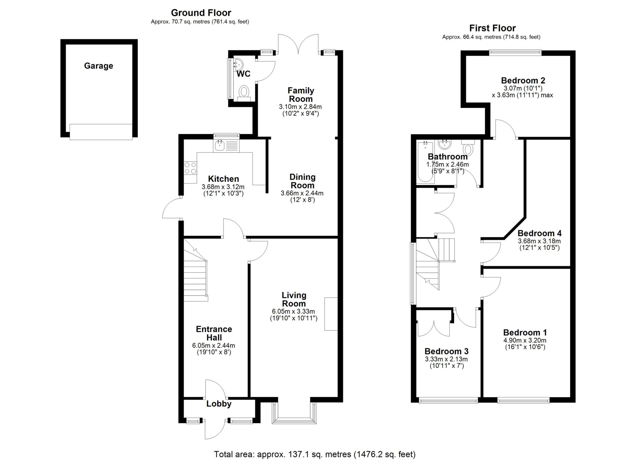
New to the market is this vastly extended four bedroomed detached house set in a sought after road in the heart of Caversham within easy reach of Caversham, Reading Station and in catchment for excellent schools including Caversham Primary which is a short walk away. There is a shared drive leading to a garage and the property is accessed via a porch. Downstairs is generous with a large living room to the front with bay window and fireplace. The kitchen has a range of floor and eye level units with side door to garden and opens to a separate living/dining room leading to raised decking and the garden. Upstairs are four double bedrooms and the family bathroom with shower over bath. The garden is long benefitting from established planting and a large lawned area. An early viewing is recommended by the vendors` sole agent. No onward chain!
Notice
Please note we have not tested any apparatus, fixtures, fittings, or services. Interested parties must undertake their own investigation into the working order of these items. All measurements are approximate and photographs provided for guidance only.
Council Tax
Reading Borough Council, Band E
Utilities
Electric: Unknown
Gas: Unknown
Water: Unknown
Sewerage: Unknown
Broadband: Unknown
Telephone: Unknown
Other Items
Heating: Not Specified
Garden/Outside Space: No
Parking: No
Garage: No

This property is marketed by

Bridges Estate Agents (Reading) - Caversham Reading, Reading, RG4
3.7/5 Rating
(3) reviews
Agent Statistics (Based on 3 Reviews) :