The UK's Largest Customer Review Website for the Property Industry
The UK's Largest Customer Review Website for the Property Industry
Back to Property Listings
Bleasdale Road, Renfrew, PA4
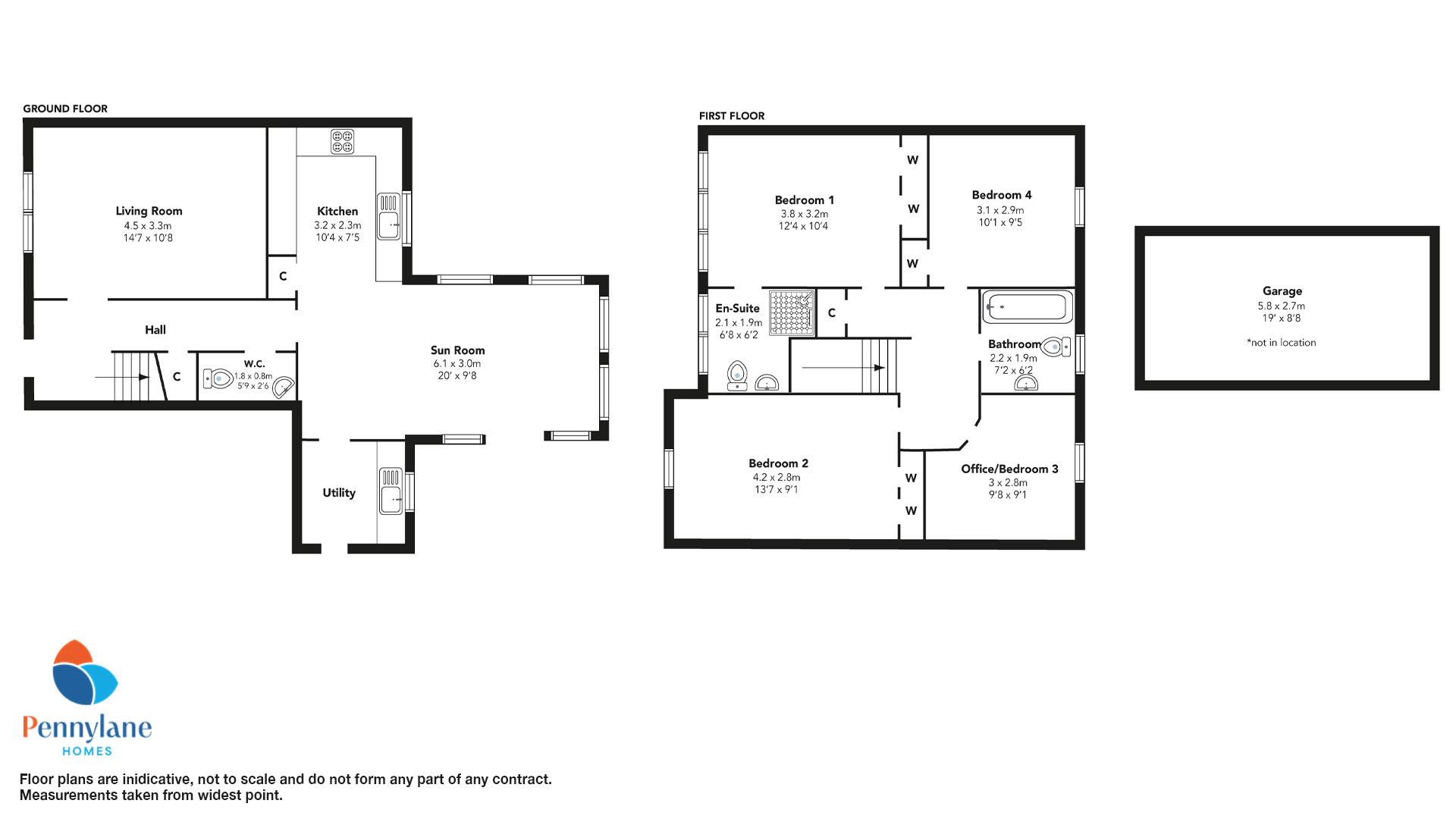
The property is accessed via a welcoming entrance hallway with carpeted stairway to upper level, under stair storage cupboard and convenient downstairs WC. To the front, there is a spacious formal lounge with floor to ceiling window creating a bright and airy space. To the rear, there is a fantastic open plan living space including modern fitted kitchen, comprising a combination of wall and floor mounted units with eye level double oven, five burner hob and chimney style hob. Within the fantastic sun room there is ample space for a dining table and secondary sitting area with patio doors to the rear garden making this a perfect space for entertaining. A large utility area off the kitchen benefits from a further external door giving access to the side garden.
On the upper level, the master bedroom, to the front benefits from an en-suite shower room comprising a modern three piece suite with walk in shower cubicle and extensive fitted wardrobes offering fantastic storage. There are a further three spacious bedrooms with the larger two also having fitted wardrobes.
The property benefits from gas central heating and double glazing throughout.
Externally there are extensive garden grounds to the rear with secure fence surround, laid mainly to lawn with large patio area. To the front there is driveway parking for two vehicles as well as a single garage.
The property is located on Bleasdale Road within the popular Ferry Village area of Renfrew. The area is only minutes walk from Braehead Shopping Centre and Xsite Entertainment Complex, where all manner of leisure and retail opportunities are available. Renfrew town centre is also a short walk away and the area is served by fantastic public transport links.
Notice
Please note we have not tested any apparatus, fixtures, fittings, or services. Interested parties must undertake their own investigation into the working order of these items. All measurements are approximate and photographs provided for guidance only.
Council Tax
Renfrewshire Council, Band F
Utilities
Electric: Mains Supply
Gas: Mains Supply
Water: Mains Supply
Sewerage: Mains Supply
Broadband: Unknown
Telephone: Unknown
Other Items
Heating: Gas Central Heating
Garden/Outside Space: Yes
Parking: Yes
Garage: Yes

Agent Statistics (Based on 98 Reviews) :