The UK's Largest Customer Review Website for the Property Industry
The UK's Largest Customer Review Website for the Property Industry
Back to Property Listings
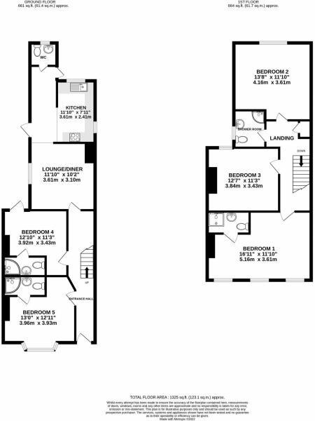
Bishops Road, Reading
Situated on Bishops Road is this 5 bedroom student property with 4 bathrooms.
The property comprises of 5 spacious bedrooms, four bathrooms, separate lounge area which leads to the kitchen and downstairs w.c.
The property less than one mile from Earley train station and is walking distance to Reading University and transport links to Reading town centre.
The property further benefits from gas central heating and double glazed window.
Notice
All photographs are provided for guidance only.
Redress scheme provided by: TPO (D01009)
Client Money Protection provided by: Safeagent (A6114)
Council Tax
Reading Borough Council, Unknown
Utilities
Electric: Mains Supply
Gas: Mains Supply
Water: Mains Supply
Sewerage: Mains Supply
Broadband: FTTP
Telephone: Landline
Other Items
Heating: Gas Central Heating
Garden/Outside Space: Yes
Parking: No
Garage: No

Agent Statistics (Based on 97 Reviews) :