The UK's Largest Customer Review Website for the Property Industry
The UK's Largest Customer Review Website for the Property Industry
Back to Property Listings
Beyton Road, Thurston
Situated in the popular village of Thurston, Longsons are delighted to bring to the market this extremely well presented, spacious, substantial detached four bedroom house. This superb three storey property has much to offer and includes a double garage, parking for several vehicles, gardens, kitchen/dining room, three reception rooms, two en-suites, gas central heating providing underfloor heating to the ground and first floor, UPVC double glazing and much much more.
Available Late October!
Non Smokers only.
This property is not suitable for dogs but other small pet considered at Landlords discretion.
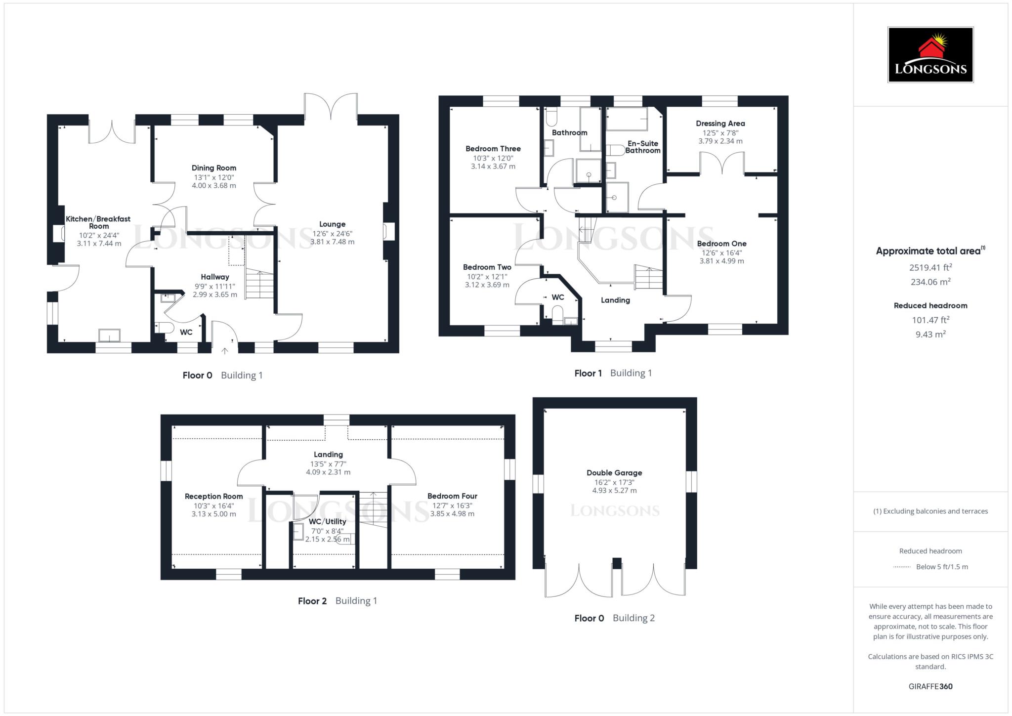
Briefly, the property offers entrance hall, lounge, dining room, kitchen/breakfast room, cloakroom, WC, four bedrooms, one with en-suite shower room, one with en-suite WC, further reception room to second floor, family bathroom, double garage, gardens, parking, gas central heating providing underfloor heating for ground and first floor and UPVC double glazing.
THURSTON
Thurston is a popular village near Bury St Edmunds and whilst it retains the charm of the countryside there are also plenty of local amenities: the Primary and High School, community centre, village hall, local shops, garages and pharmacy, not to mention an award winning pub and active village atmosphere. Access to Bury St Edmunds and the A14 is within easy reach with the village train station adding to it`s connectivity.
Entrance Hall - 9'9" (2.97m) x 11'11" (3.63m)
Entrance door to front, stairs to first floor, under stairs storage cupboard, UPVC double glazed window to front.
Lounge - 12'6" (3.81m) x 24'6" (7.47m)
Feature Fireplace (not in use) UPVC double glazed French doors opening to rear garden, UPVC double glazed sliding slash window to front, glazed double doors opening to dining room.
Dining Room - 13'1" (3.99m) x 12'0" (3.66m)
Two UPVC double glazed sliding slash windows to rear, glazed double doors opening to kitchen/breakfast room.
Kitchen/Breakfast Room - 10'2" (3.1m) x 24'4" (7.42m)
Fitted kitchen units to walls and floor, work surface over, stainless steel one and a half bowl sink unit with mixer tap and drainer, space for cooker with extractor hood over, space and plumbing for washing machine.
Cloakroom - 5'1" (1.55m) x 5'6" (1.68m)
Hand wash basin, WC, obscure glass UPVC double glazed window to front.
Stairs and First Floor Landing
UPVC double glazed sliding sash window to front, built in cupboard housing hot water cylinder.
Bedroom One - 12'6" (3.81m) x 16'4" (4.98m)
Glazed double doors opening to large walk-in dressing area, UPVC double glazed sliding sash window to front and rear, door to en-suite bathroom.
En-Suite Bathroom - 6'3" (1.91m) x 11'11" (3.63m)
Four piece bathroom suite comprising corner bath, double shower cubicle, wash basin, WC, obscure glass UPVC double glazed sliding sash window to rear, extractor fan.
Bedroom Two - 10'2" (3.1m) x 12'1" (3.68m)
UPVC double glazed sliding sash window to front, door to en-suite.
En-Suite WC - 3'9" (1.14m) x 4'9" (1.45m)
Wash basin, WC, extractor fan.
Bedroom Three - 10'3" (3.12m) x 12'0" (3.66m)
UPVC double glazed sliding sash window to rear.
Bathroom - 6'6" (1.98m) x 8'6" (2.59m)
Four piece bathroom suite comprising corner bath, shower cubicle, wash basin set within fitted cabinet, WC, obscure glass UPVC double glazed sliding sash window to rear, extractor fan.
Stairs and Second Floor Landing - 13'5" (4.09m) x 7'7" (2.31m)
UPVC double glazed window to rear.
Bedroom Four - 12'7" (3.84m) x 16'3" (4.95m)
UPVC double glazed window to rear and side.
Reception Room - 10'3" (3.12m) x 16'4" (4.98m)
UPVC double glazed window to rear and side.
WC/Utility Room - 7'0" (2.13m) x 8'4" (2.54m)
Wash basin set within fitted cabinet, WC, space and plumbing for washing machine, built-in storage cupboards.
Double Garage - 16'2" (4.93m) x 17'3" (5.26m)
Two sets of wooden double doors to front, UPVC double glazed window to both sides, electric light and power.
Outside Front
Low maintenance front garden laid to shingle providing off road parking, established shrubs and plants to borders, outside light, five bar wooden gates providing access to the front, vehicular access to the rear and double garage.
Rear Garden
Rear garden laid to lawn, further parking area and access to double garage, external electric sockets, shrubs and plants to borders, vehicular access to the front.
Agent`s Notes
EPC rating C77 (Full copy available on request)
Council tax band F (Own enquiries should be make via Mid Suffolk Council)
what3words /// smart.playroom.birthdays
Notice
All photographs are provided for guidance only.
Redress scheme provided by: The Property Ombudsman (D8980)
Client Money Protection provided by: NFoPP Client Money protection Scheme (C0125843)
Utilities
Electric: Mains Supply
Gas: Mains Supply
Water: Mains Supply
Sewerage: Unknown
Broadband: Cable
Telephone: Landline
Other Items
Heating: Under Floor Heating
Garden/Outside Space: Yes
Parking: Yes
Garage: Yes

Agent Statistics (Based on 1 Reviews) :