The UK's Largest Customer Review Website for the Property Industry
The UK's Largest Customer Review Website for the Property Industry
Back to Property Listings
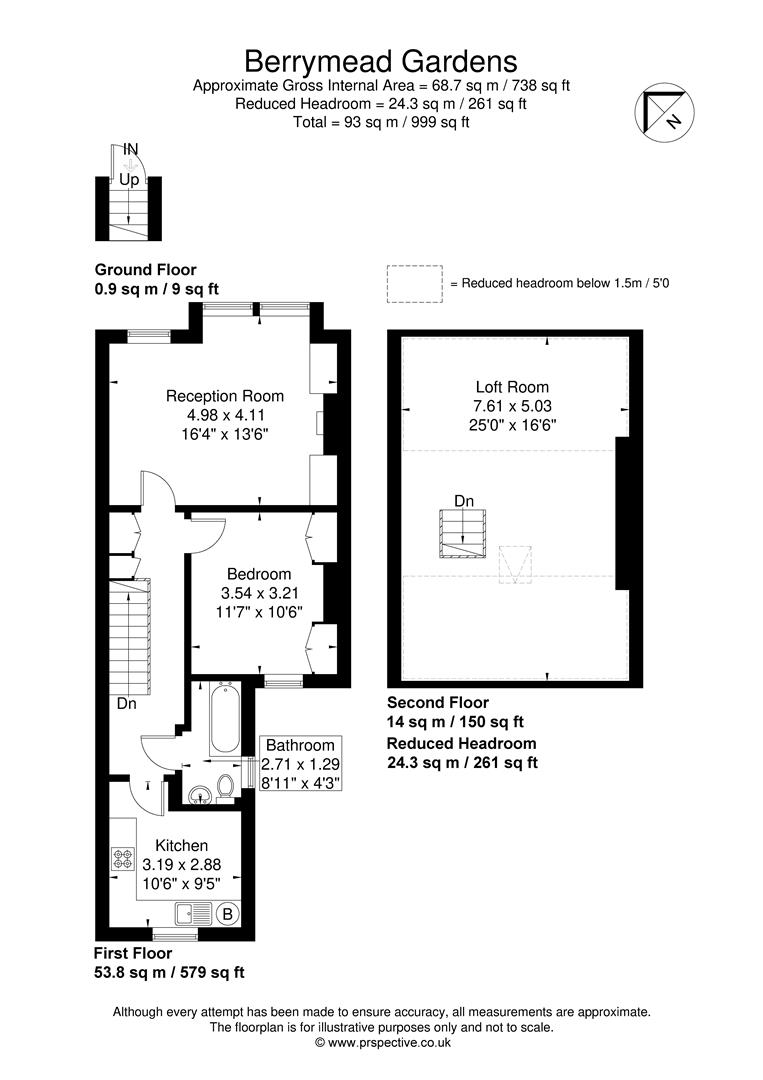
Berrymead Gardens, London
Aston Rowe are pleased to present this larger than average one bedroom first floor flat, located in a popular residential area of Acton.
The property is perfect for a first time buyer or buy to let investor and features a bright and spacious front reception room, a separate kitchen with dining space, bathroom, and a generously sized double bedroom with built-in storage.
The property offers a loft room, which is currently being used as a guest room.
The property benefits from a share of freehold, no onward chain and also offers potential to extend, subject to planning permission via Ealing Council, providing buyers with an exciting opportunity to further enhance the space.
Well located for access to Acton Town and Acton Central stations. The property is just an 15-minute walk to Acton Main Line station, which benefits from the fast and convenient Elizabeth Line service. It is also within walking distance of the amenities on Churchfield Road and Acton High Street and offers convenient access to the A40 for excellent road links.

Agent Statistics (Based on 192 Reviews) :