The UK's Largest Customer Review Website for the Property Industry
The UK's Largest Customer Review Website for the Property Industry
Back to Property Listings
Bentinck Road, West Drayton
A well-presented modern two-bedroom, two-bathroom apartment providing light filled and spacious accommodation, just a short walk to West Drayton station.
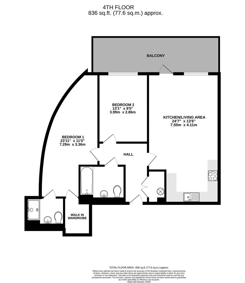
Description - The apartment offers well-proportioned accommodation throughout, including an open-plan kitchen and living area with integrated appliances, two double bedrooms, and two bathrooms, one of which is an en-suite to the principal bedroom. The main bedroom also benefits from a walk-in wardrobe, and the property has been recently redecorated, providing a clean and well-maintained finish.
Accommodation - The layout comprises an entrance hall with storage, open-plan kitchen and living area, two bedrooms, an en-suite and walk-in wardrobe to the main bedroom, and a family bathroom. The living space opens onto a notably large private balcony. The building offers lift access to all floors, gated underground parking, secure bike storage, and a communal rooftop garden.
Outside - The property includes a large private balcony, allocated parking within a secure gated car park, and access to a communal rooftop garden and bike storage.
Situation - Waterways House is situated within walking distance of West Drayton Station (Elizabeth Line), providing direct services to Central London and Heathrow Airport. The area offers a range of local amenities and transport links, including the M4, M25, and A40.
Terms And Notification Of Sale - Tenure: Leasehold
Local authority: London Borough Of Hillingdon
Council Tax Band: D
Current EPC Rating: B
Lease: 116 Years remaining
Service Charge: £3676.66 per annum
Ground rent: £295 per annum

This property is marketed by

Cameron Estate Agents - Uxbridge, Uxbridge, UB8
4.8/5 Rating
(1175) reviews
Agent Statistics (Based on 1175 Reviews) :