The UK's Largest Customer Review Website for the Property Industry
The UK's Largest Customer Review Website for the Property Industry
Back to Property Listings
Bellrock Crescent, Cranhill
This spacious 3 bed upper cottage flat is packed with storage, freshly finished interiors, and a bright lounge with fireplace, all set in a quiet Cranhill street just minutes from schools, shops and the M8. Ideal for first time buyers or growing families.
Five things our current owners love about their home:
1. The local schools are just a short walk away, ideal for families
2. We get fantastic download speeds here which makes working from home or streaming seamless
3. The neighbours are genuinely lovely and the close has a friendly feel.
4. There`s brilliant built-in storage in all three bedrooms, really makes a difference.
5. We`re only a short drive to The Forge and Fort shopping centres for everything from groceries to big name retail.
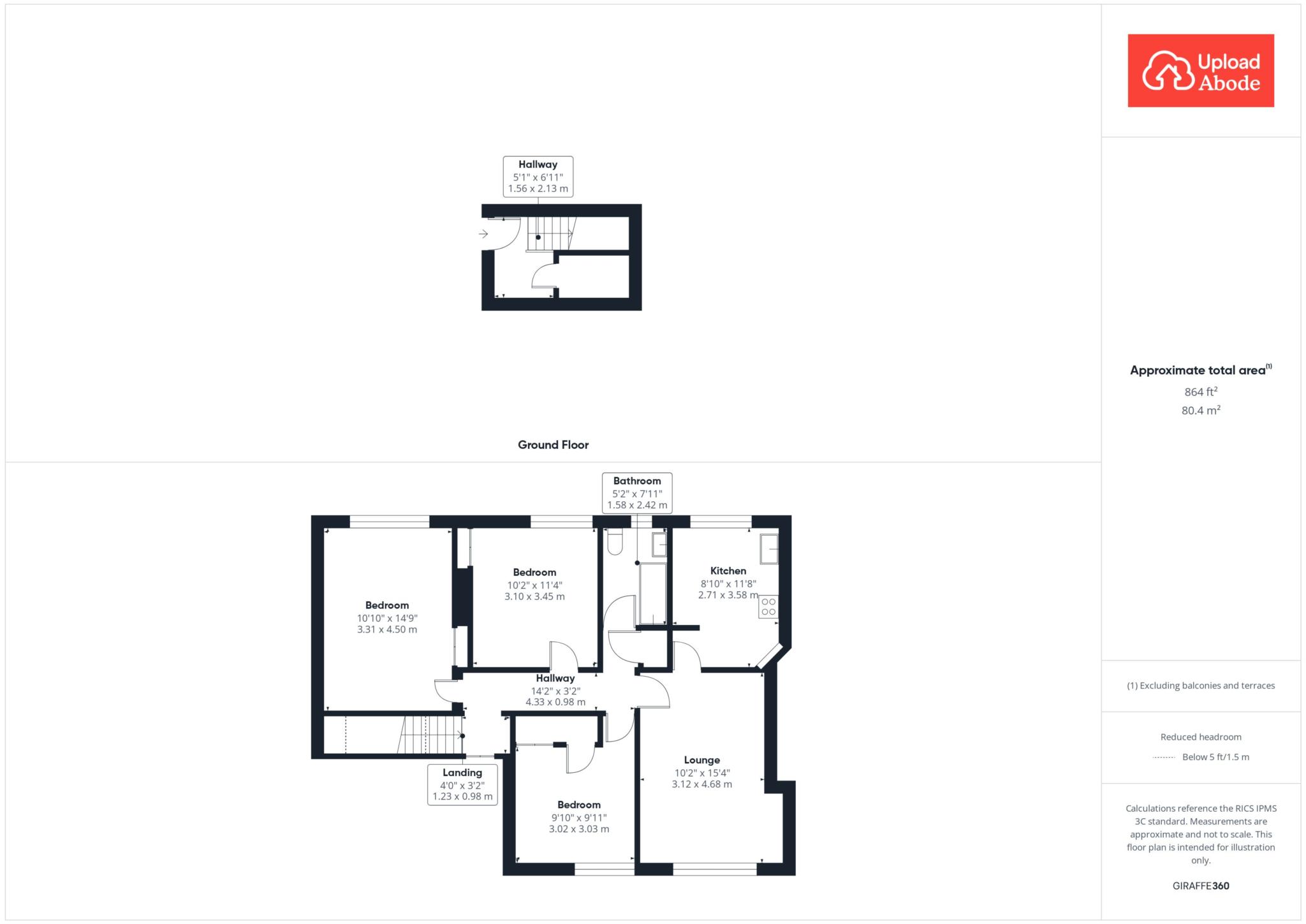
Step into a small entrance hallway where a carpeted staircase leads to the main living space. Upstairs, a long central hallway flows through the home, giving access to all rooms.
To the left, the first of three generous double bedrooms overlooks the rear garden. This room features soft white wallpapered walls, high quality laminate flooring and a built-in storage cupboard.
Further along, the second bedroom continues the same fresh decor style with another spacious layout and a double-door built-in wardrobe, Ideal for keeping things tidy and clutter-free.
To the right of the hall, facing the front of the property, sits the third double bedroom. This room stands out with not one, but two built-in wardrobes and plenty of natural light, making it perfect as a master, guest room or even a dedicated home office.
At the far end of the hallway, the bright and inviting lounge is the social hub of the home. With a feature fireplace as its focal point, this space offers the perfect blend of comfort and size for relaxing or entertaining.
Off the lounge is the kitchen, which includes grey tiled flooring, a range of both wall and floor units and a recently replaced boiler, ensuring added peace of mind.
Externally, there is both private and shared garden space, ideal for enjoying the outdoors or creating a low-maintenance seating area. On-street parking is readily available and plentiful.
Bellrock Crescent is located in Cranhill, a residential pocket of Glasgow`s East End popular with families and commuters alike. With excellent access to the M8 and nearby train and bus routes, getting into Glasgow city centre is quick and convenient. You`re also just a short drive from The Fort and The Forge shopping centres, both offering a mix of fashion, food, supermarkets and cinema. Local schools and parks are nearby, along with plenty of open green space for outdoor walks.
Say YES to the address @uploadabode
what3words /// parade.open.verge
Notice
Please note we have not tested any apparatus, fixtures, fittings, or services. Interested parties must undertake their own investigation into the working order of these items. All measurements are approximate and photographs provided for guidance only.
Council Tax
Glasgow City Council, Band B
Utilities
Electric: Mains Supply
Gas: Mains Supply
Water: Mains Supply
Sewerage: Mains Supply
Broadband: Cable
Telephone: Landline
Other Items
Heating: Gas Central Heating
Garden/Outside Space: Yes
Parking: No
Garage: No

Agent Statistics (Based on 727 Reviews) :