The UK's Largest Customer Review Website for the Property Industry
The UK's Largest Customer Review Website for the Property Industry
Back to Property Listings
Bellenden Road, Peckham, SE15
Architect Designed & Extended Four Bedroom Period Home with Gorgeous Garden.
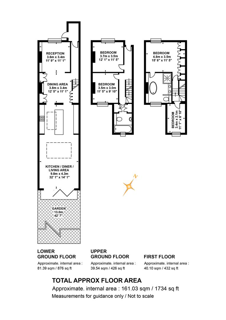
A truly special abode! Architect-designed, elegantly decorated and with a living space to write home about - it ticks every box! The accommodation, spread lavishly over three stunning floors, comprises four lovely double bedrooms (master en suite), a jaw-dropping lower ground floor living/dining/kitchen space stretching over 50ft in length and a fine family bathroom. The interior boasts a thoughtful combination of original and contemporary features including cornicing, feature fireplaces, school house radiators and a bespoke modern kitchen fit for master chef. The rear garden is similarly salubrious - awash with abundant mature posies, shrubs and plants. You're within an easy stroll of every conceivable amenity. Peckham Rye Station is a mere six minute walk, as are the countless attractions of Rye Lane. Even closer are the bars, eateries and independent shops and cafes of Bellenden Road. You'll be busy all year round.
A bright and airy upper ground floor hall greets you with rustic timber flooring, cornicing and corbals. The walls are soothing and neutral - it's the perfect first impression. To your right sits the first of your double bedrooms - a front-facing airy space with ornate cornicing and integrated shelving. A second double bedroom faces rear with a pretty feature fireplace and more splendid cornicing. Completing this level is a stylish bathroom with funky Parquet tiling, crisp white suite, storage and a matt black drencher over the bath.
Heading downward you meet that glorious, full-width living area that flows the full depth of the property. A comfortable lounge faces front through a double glazed sash window. There's a handsome wood burning stove with marble mantel, rustic wooden shelving and yummy 'Downpipe' grey on the walls. Further front access is also offered to the front, next to recessed storage. A formal dining area proceeds the lounge with lovely low level storage units and further under stairs storage. The kitchen/diner is simply divine! Stretching over 9 metres it includes unrivalled cooking, dining and lounging potential and sparkles with natural light. Your carrara-topped marble island and matching counters supply abundant dicing, slicing and spicing space. Extra wide anti-slam wooden cabinets are cleverly designed with a higher profile for maximum storage. An electric skylight opens overhead via remote control for an ingenious alternative to a bulky extractor fan.
A spacious family dining area sits under the second (even larger) skylight. Spectacular full-width bespoke Compass sliding glass doors face rear framing your garden perfectly. Venturing outside rewards with a pretty paved patio and raised herb planter. Steps rise forth from here to a healthy lawn fringed on either side with a lush array of lovingly cultivated flora including peonies, Acer, mature wisteria, Japanese cherry blossom, fragrant Russian sage and jasmine.
Back inside, head upward to the first floor via the original staircase. You'll note beautifully stained treads and risers and a clever glass siding that allows light spill downward from the entrance hall. The upper return hosts bedroom three - a sweet rear-facing carpeted room with lofty garden views. Bedroom four steals the show with two front-aspect double glazed sash windows and a generous wall of bespoke storage. A striking en suite adjoins donning a walk-in shower, contemporary freestanding bath and a thick-cut marble counter hosting twin circular wash hand basins.
Local bars include The Victoria Inn, The Hermit's Cave, The Camberwell Arms and the much anticipated Kerfield Arms. Even closer is the much loved Montpelier - it's a cracking spot to meet all your new neighbours. The much loved Bussey Building and Frank's roof bar are within an easy trot for fab weekend fun and frolics. Miss Tapas, El Segundo and The Begging Bowl are highly rated as is Ganapati and the much feted Artusi - all are just around the corner or a 2 minute walk down the road. This area is spoilt for green spaces such as the 120 acre Peckham Rye Common which is small walk or jog away also very nearby is the local Warwick Gardens and Goose Green both a gentle stroll away.
Tenure: Freehold
Council Tax Band: E

Agent Statistics (Based on 168 Reviews) :