The UK's Largest Customer Review Website for the Property Industry
The UK's Largest Customer Review Website for the Property Industry
Back to Property Listings
Belle Vue Road, Exmouth
Situated in this most sought after residential areas within walking distance of Exmouth Town Centre, Marina, Seafront, & Train Station is this beautifully updated, 4 bedroom, 2 bathroom detached Edwardian home. The property features a double garage and a south facing rear garden.
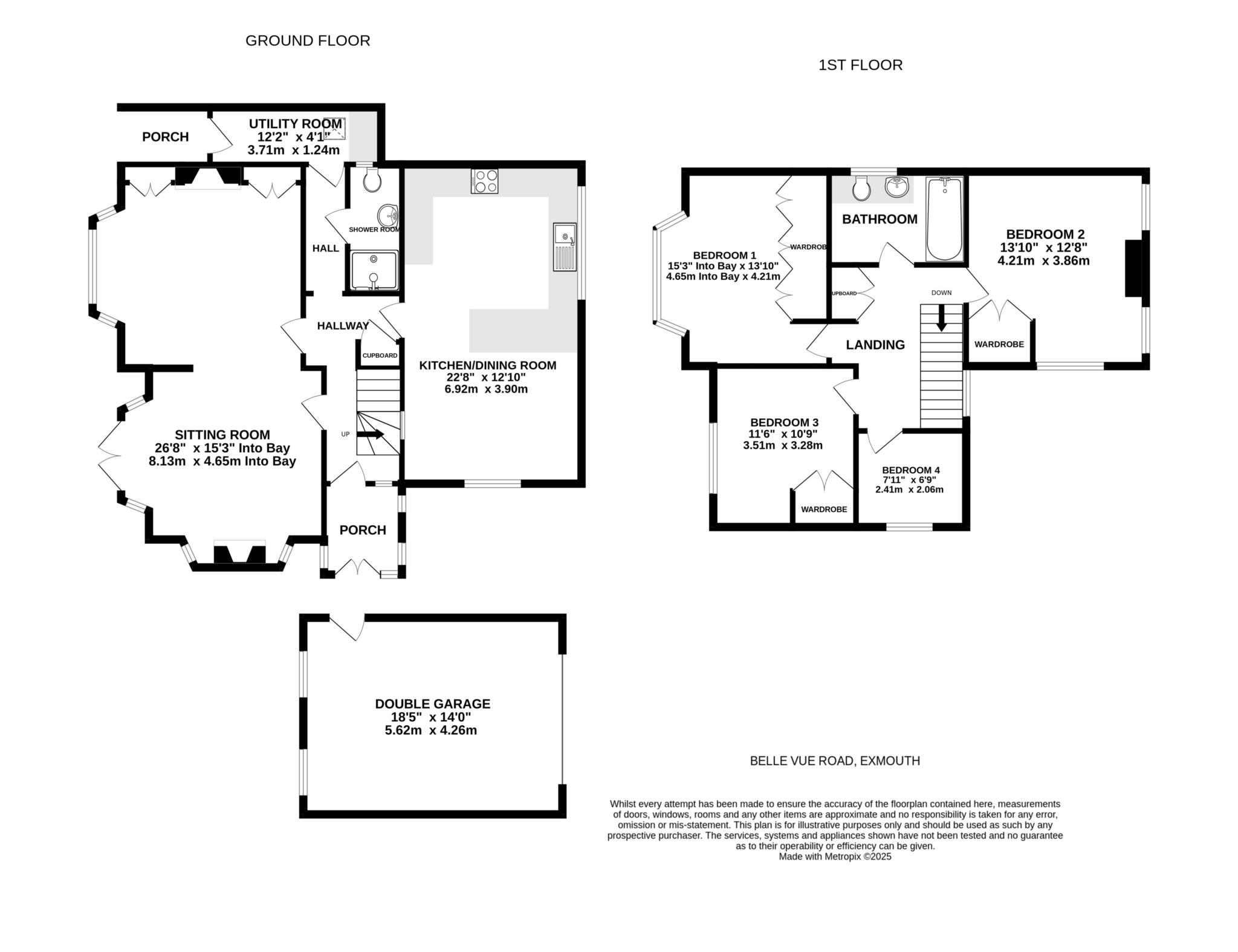
Gas centrally heated and uPVC double glazed, the accommodation comprises, on the ground floor: a double bay-fronted, dual aspect sitting room; a newly fitted, dual aspect kitchen/dining room with integrated appliances and quartz work surfaces; a utility room; and a newly fitted shower room/WC.
On the first floor, there are four bedrooms and a newly fitted family bathroom.
Additional benefits include ample off road parking for several vehicles, including space for boats, caravans, or motorhomes.
An early viewing is highly recommended.
Accommodation
Ground Floor
Double doors leading to:
Entrance Porch
Leaded windows to front and side. Step up to half obscure glazed, hardwood, front entrance door, with stained glass window to side, leading to:
Entrance Hall
Staircase rising to first floor with useful under stairs storage cupboard. Under floor heating. Karndean flooring. Picture rail. Open to rear hallway, and doors leading to kitchen/dining room and:
Sitting Room - 26'8" (8.13m) x 15'3" (4.65m) Into Bay
An attractive formal reception room with large bay window overlooking the rear garden, with window seat including storage and further bay to rear with French doors leading to the rear garden. Focal point of coal effect gas fire within a fireplace surround that has a brick back, brick hearth and a wooden mantle with attractive stained glass windows to either side. Fitted storage cupboards and shelving to chimney recess. 2 radiators. 2 doors leading to entrance hall.
Kitchen / Dining Room - 22'8" (6.91m) x 12'9" (3.89m)
Dual aspect having windows to front and side. Newly fitted with a good range of cupboard and drawer storage units with Quartz work surfaces and matching upstands. Inset ceramic one and a half bowl sink. Built - in 4 ring Halogen hob with double electric oven and grill below and filter hood above. Integrated dishwasher, fridge, freezer and wine cooler. Underfloor heating with wall mounted thermostat and Karndean flooring.
Rear Hallway
Under floor heating. Karndean flooring. Doors leading to utility and:
Shower Room
Obscure uPVC double glazed window to rear. Newly fitted white suite comprising shower cubicle with thermostatically controlled shower unit, including Rainfall waterhead and tiling to ceiling height, low level WC and bespoke vanity wash hand basin. Under floor heating.
First Floor
Landing
Stained glass window to side. Linen storage cupboard. Access to large loft storage space that, subject gaining the correct planning permissions, could be converted to provide further living accommodation if required, where far reaching Exe Estuary views would probably be gained. Picture rail. Smoke alarm. Doors leading to:
Bedroom 1 - 15'3" (4.65m) Into Bay x 13'10" (4.22m)
Walk - in uPVC double glazed bay window to rear gaining distant views of the Exe Estuary, Haldon Hills and South Devon coastline. Triple fitted wardrobes to one wall. Radiator.
Bedroom 2 - 13'10" (4.22m) x 12'8" (3.86m)
Dual aspect having 2 uPVC double glazed windows to front with window shutters and window to the side. Fitted double wardrobe. 2 retro radiators.
Bedroom 3 - 11'6" (3.51m) x 10'9" (3.28m)
uPVC double glazed window to rear, again, gaining those Exe Estuary, Haldon Hill and South Devon coastline views. Fitted double wardrobe. Radiator.
Bedroom 4 - 7'11" (2.41m) x 6'9" (2.06m)
uPVC double glazed window to side. Radiator.
Bathroom - 9'10" (3m) x 6'4" (1.93m)
Obscure uPVC double glazed window to rear. Modern fitted white suite of panelled bath with thermostatically controlled shower unit over, including rainfall waterhead, concealed cistern WC and vanity wash hand basin. Fully tiled walls and floor. Heated towel rail. Inset ceiling lights. Extractor fan.
Externally
The property enjoys extensive off road parking for motor vehicles, boats or caravans with the remainder of the front garden predominantly laid to lawn with areas of patio and stone chippings. Gas meter box. Outside lighting. Outside water tap. EV charging point. The driveway then gives access to:
Detached Double Garage - 18'5" (5.61m) x 14'0" (4.27m)
Remote controlled double up and over door to front. 2 uPVC double glazed windows to rear. Personal door to side. Under eaves storage space. Power and light connected.
Southerly Facing Rear Garden
Another feature of the property is a good sized, enclosed and Southerly facing rear garden that has a large patio area immediately adjacent the property which is ideal for outdoor dining and sitting during fine weather. The reminder is then laid to lawn with shrub bed borders. Timber panelled fenced boundaries. Front pedestrian access to side of property via timber garden gate. Outside water tap. Outside lighting.
Tenure
The property is FREEHOLD
Services
All mains services are connected. The Solar panels will have the ownership transferred to the new buyers. Council Tax Band F
Mortgage Assistance
We are pleased to recommend Meredith Morgan Taylor, who would be pleased to help no matter which estate agent you finally buy through. For a free initial chat please contact us on 01395 222350 to arrange an appointment
Your home may be repossessed if you do not keep up repayments on your mortgage
Meredith Morgan Taylor Ltd is an appointed representative of The Openwork Partnership, a trading style of Openwork Ltd which is authorised and regulated by the Financial Conduct Authority (FCA).
Directions
From our prominent Town centre office, proceed down Rolle Street, passing The Strand Gardens, turning left, then right at the mini roundabouts, passing the Train Station and into Marine Way. Take the first left into Southern Road and second left into Belle Vue Road where the property will be found on the left hand side, clearly identified by our For Sale sign.
what3words /// tender.volume.saves
Notice
Please note we have not tested any apparatus, fixtures, fittings, or services. Interested parties must undertake their own investigation into the working order of these items. All measurements are approximate and photographs provided for guidance only.
Utilities
Electric: Mains Supply
Gas: Mains Supply
Water: Mains Supply
Sewerage: Mains Supply
Broadband: None
Telephone: None
Other Items
Heating: Gas Central Heating
Garden/Outside Space: Yes
Parking: Yes
Garage: Yes

Agent Statistics (Based on 735 Reviews) :