The UK's Largest Customer Review Website for the Property Industry
The UK's Largest Customer Review Website for the Property Industry
Back to Property Listings
Bell Court, Emmer Green
Masons are proud to offer to the market this extended three bedroom semi detached property, presented in truly immaculate condition throughout and located in Emmer Green, close to local amenities and Caversham & Reading centres, along with Reading mainline station. The property benefits from a 13ft living room, a 14ft recently built sun room with bi-folding doors to the garden, a 10ft dining room, a 15ft kitchen breakfast room with granite tops a French doors to the garden and a downstairs cloakroom. Further benefits include a master bedroom with ensuite, a family bathroom, a well-tended rear garden and garage & Off road parking. Viewing recommended.
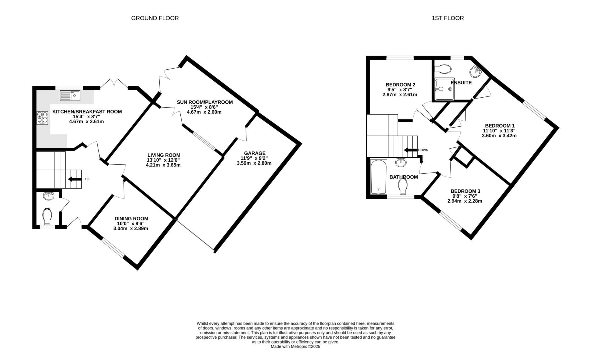
Front door to entrance hall which has the stairs to the first floor and doors to:
Living room: 13`10" x 9`6" feature fireplace and French doors opening to:
Sun room: 15`4" x 8`6" recently added, fully double glazed with bi-folding doors opening to the garden.
Dining room: 10`10" x 9`6" double glazed front aspect.
Kitchen breakfast room: 15`4" x 8`7" a contemporary fitted kitchen with granite tops and tiled surround, one and a half sink and drainer, integrated double oven, hob and extractor, dishwasher, washing machine and fridge freezer. French doors opening to the garden.
Cloakroom: double glazed front aspect, low level wc and wash basin.
First floor landing has doors to:
Bedroom 1: 11`10" x 11`3" double glazed rear aspect, built-in wardrobe, door to:
Ensuite: double glazed rear aspect, a shower cubicle, low level wc and wash basin.
Bedroom 2: 9`5" x 8`7" double glazed rear aspect, built-in cupboard.
Bedroom 3: 9`8" x 7`6" double glazed front aspect.
Family bathroom: double glazed front aspect, a panel enclosed bath with shower over & shower screen, a low level wc and wash basin.
Outside: to the front there is off road parking and access to the garage. To the rear there is a private garden, that is mainly decked with shingle and a variety of plants and shrubs. Viewing recommended.
Notice
Whilst every care has been taken in the preparation of these particulars, and they are believed to be correct, they are not warranted and intending purchasers/lessees should satisfy themselves as to the correctness of the information given.Please note we have not tested any apparatus, fixtures, fittings, or services. Interested parties must undertake their own investigation into the working order of these items. All measurements are approximate and photographs provided for guidance only.
Council Tax
Reading Borough Council, Band D
Utilities
Electric: Unknown
Gas: Unknown
Water: Unknown
Sewerage: Unknown
Broadband: Unknown
Telephone: Unknown
Other Items
Heating: Not Specified
Garden/Outside Space: Yes
Parking: Yes
Garage: Yes

Agent Statistics (Based on 70 Reviews) :