The UK's Largest Customer Review Website for the Property Industry
The UK's Largest Customer Review Website for the Property Industry
Back to Property Listings
Beechcroft Road, Castle Bromwich, Birmingham
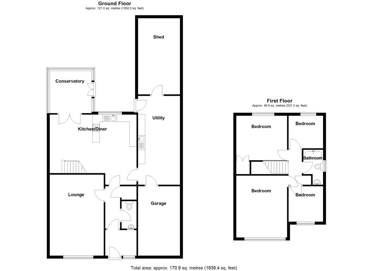
This four bedroomed detached home in Castle Bromwich briefly comprises porch hallway, lounge, kitchen/diner, downstairs w/c, conservatory, utility room, storage room, four bedrooms and family bathroom. There is a rear garden, garage and driveway to the front. This property will make a lovely family home !
Approach - Approach via a tarmaced driveway,
Porch - Double glazed door and window to fronting window to side.
Hallway - Storage cupboard, radiator and ceiling light point.
Lounge - 3.71m x 5.36m (12'02 x 17'07) - Double glazed bay window to front, feature fire place, wall light point, radiator and ceiling light point.
Kitchen/Diner - 6.17m x 4.72m (20'03 x 15'06) - Double glazed window and French doors to rear, wall base and drawer units, integrated 5 ring gas hob with extractor over, integrated double electric oven and microwave, integrated dishwasher, stainless steel 1 1/2 sink with mixer tap, stairs to first floor accommodation, two radiators, spots to ceiling and three ceiling light points.
Utility - 2.26m x 5.74m (7'05 x 18'10) - Double glazed door to side, plumbing for washing machine, wall base and drawer units, stainless steel sink with drainer and mixer tap, two radiators and two wall light points.
Conservatory - 3.58m x 3.91m (11'09 x 12'10) - Double glazed French doors to side, double glazed windows to all elevations and ceiling light point.
Downstairs W/C - Double glazed window to front, low level w/c, hand wash basin with storage below, heated towel rail and spot lights to ceiling.
Landing - Loft access with loft ladders, storage cupboard and ceiling light point.
Bedroom One - 3.48m x 5.03m (11'05 x 16'06) - Double glazed window to front, radiator, two wall light points and ceiling light point.
Bedroom Two - 2.97m x 3.53m (9'09 x 11'7) - Double glazed window to rear, built in wardrobes, radiator, two wall light points and ceiling light point.
Bedroom Three - 2.64m x 2.29m (8'08 x 7'06) - Double glazed window to rear, radiator and ceiling light point.
Bedroom Four - 2.41m x 2.62m (7'11 x 8'07) - Double glazed window to front, radiator and ceiling light point.
Garage - 5.92m x 2.36m (19'05 x 7'09) - Electric roller door, double glazed window to side, and ceiling light point.
Store Room - 2.51m x 5.54m (8'03 x 18'02) - Wall mounted boiler.
Rear Garden - Paved patio area, low maintenance and enclosed to boundaries.
Further Information - We endeavour to make our sales particulars accurate and reliable, however they do not constitute or form part of an offer or any contract and none is to be relied upon as statements of representation or fact. Any services, systems and appliances listed in this specification have not been tested by Chambers Estate & Letting Agents and we make no guarantee as to their operating ability or efficiency. All measurements have been taken as a guide only to prospective buyers and may not be correct. Potential buyers are advised to re-check measurements and test any appliances. A buyer should ensure that a legal representative confirms all the matters relating to this title including boundaries and any other important matters.
Money Laundering Regulations: intending purchasers will be required to provide proof of identification at offer stage, a sale cannot be agreed without this.
Council Tax - E
EPC Rating - D

This property is marketed by

Chambers Estate & Letting Agents - Water Orton, Birmingham, B46
4.9/5 Rating
(266) reviews
Agent Statistics (Based on 266 Reviews) :