The UK's Largest Customer Review Website for the Property Industry
The UK's Largest Customer Review Website for the Property Industry
Back to Property Listings
Baron Street, Renfrew, PA4
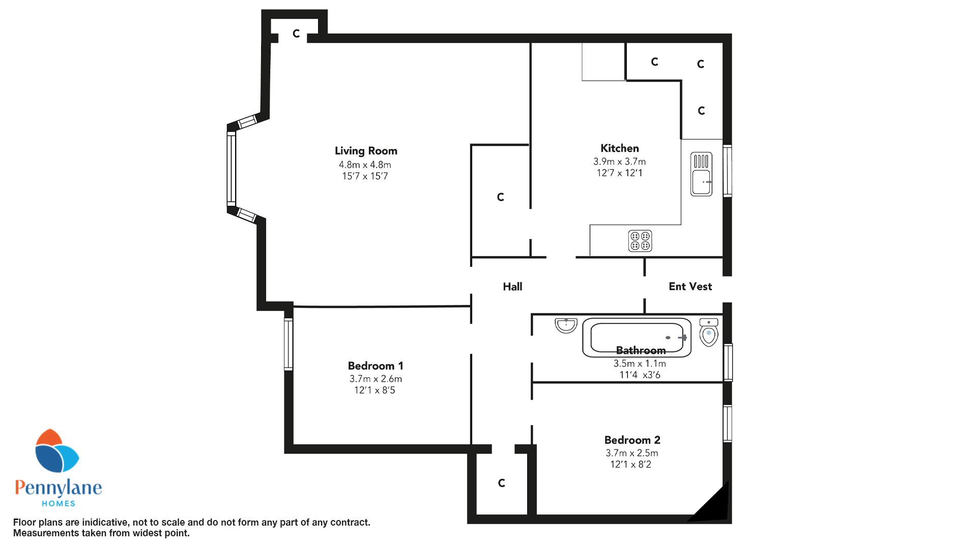
The property is accessed via a external staircase to the rear and opens into a small entrance vestibule leading to a welcoming entrance hallway with large storage cupboard. The fantastic size lounge, to the front of the property, has a traditional bay window and original bed recess, now utilised as a perfect dining area. The large dining kitchen comprises a combination of wall and floor mounted units with freestanding appliances and ample space for a small dining table.
The master bedroom has a large window to the front, flooding the room with natural light, and the smaller second bedroom, currently utilised as a home office/secondary lounge has a beautiful traditional cast iron fireplace. The galley style bathroom comprises a modern three piece suite with electric shower over the bath and full height wet wall panelling,
The property benefits from gas central heating and double glazing throughout.
Externally there is a private garden to the rear, as well as a communal drying green and ample on street parking is available on Baron Street.
The property is situated within this highly sought after area of Renfrew, off Sandy Road and within easy reach of all local amenities. The area is popular with families with Arkleston and Newmains Primary Schools only a few minutes walk away and Renfrew High School just slightly further. The area`s easy access to the M8 motorway, make this a popular location for an easy commute to Glasgow City Centre and beyond.
Notice
Please note we have not tested any apparatus, fixtures, fittings, or services. Interested parties must undertake their own investigation into the working order of these items. All measurements are approximate and photographs provided for guidance only.
Council Tax
Renfrewshire Council, Band C
Utilities
Electric: Mains Supply
Gas: Mains Supply
Water: Mains Supply
Sewerage: Mains Supply
Broadband: Unknown
Telephone: Unknown
Other Items
Heating: Gas Central Heating
Garden/Outside Space: Yes
Parking: No
Garage: No

Agent Statistics (Based on 197 Reviews) :