The UK's Largest Customer Review Website for the Property Industry
The UK's Largest Customer Review Website for the Property Industry
Back to Property Listings
Bank Street, Newquay
An outstanding renovated duplex THREE bedroom apartment in the heart of Newquay's vibrant town. The property boasts an impressive roof terrace that is to our knowledge unmatched in Newquay town centre residential properties which enjoys sea views across the rooftops towards Trevose lighthouse as well as stunning exposed original timber beams and stone wall incorporating a log burner. With modern finishes such as the accent matt black fittings and sockets with usb-c charging ports as well as stylish tiling combined with the exposed orignal features, this is truly a contemporary apartment. Viewing is highly recommended.
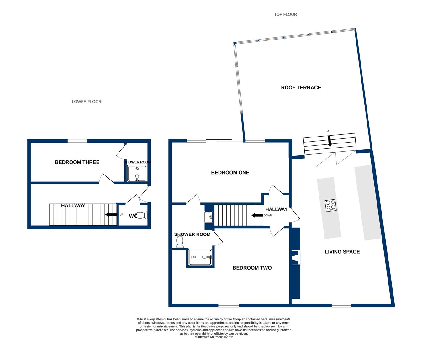
Entrance Hallway - 3.97m x 1.87m max (13'0" x 6'1" max) - Wooden entrance door from communal hallway. Door to third bedroom and cloakroom. Stairs to first floor landing.
Bedroom Three - 3.01max x 1.71m max (9'10"ax x 5'7" max) - uPVC double glazed sash window. Efficient wall mounted electric radiator. Door to
En-Suite Shower - 1.68m x 0.71m max (5'6" x 2'3" max) - Single shower unit with glass sliding doors and tiled shower. Tiled flooring. Electric heated towel radiator.
Cloakroom - 1.66m x 0.69m max (5'5" x 2'3" max) - Door from communal hallway. Close couple WC with dual flush.
First Floor Landing - Doors to subsequent accomodation.
Living Space - 6.76m x 4.91m max (22'2" x 16'1" max) - Irregular in shape
Feature exposed original stone walling with 5kw log burner. Efficient wall mounted electric radiator. uPVC double glazed sash window.
Kitchen Area
Modern fitted kitchen including wall, base and draw units with square edge solid oak work tops. A feature island with square edge solid oak worktops, the four ring electric hob and extractor also incorporating storage and a breakfast bar. Integrated washer dryer and slimline dish washer. Free standing fridge freezer. Aluminium Bi-folding doors leading to the roof terrace.
Roof Terrace - 6.13m x 5.71m max (20'1" x 18'8" max) - Irregular in shape
A generous roof terrace perfect for entertaining and appreciating the rooftop sea views across to Trevose Lighthouse with frameless frosted glass balustrade.
Bedroom One - 5..19m x 2.84m max (16'4".62'4" x 9'3" max) - Access from the communal hallway. uPVC double glazed sliding windows over look roof tops and the sea towards Trevose Lighthouse. Mezzanine storage area above the king sized ottaman style bed. Efficient wall mounted electric radiator. Door to the
Jack And Jill En-Suite - 3.00m x 1.79m max (9'10" x 5'10" max) - Accessed from bedroom one and two is the impeccably finished en-suite. Shower unit with glass sliding doors. Wash hand basin with mixer tap and vanity style light up wall mounted mirror above. Electric heated towel rail.
Bedroom Two - 5.52m x 3.71m max (18'1" x 12'2" max) - uPVC double glazed sash window. Ceiling height door accessed storage area. King sized ottaman style bed. Efficient wall mounted electric radiator
Leasehold Information - A new 999 years lease with 996
Service charge and ground rent are approximately£899.00 payable in December
Agents Notes - Supplied services and appliances have not been tested by the agent. Prospective purchasers are advised to make their own enquires.
The following services can be found at the property: Mains electric, water and drainage, however, we have not verified any of the connections.

Agent Statistics (Based on 605 Reviews) :