The UK's Largest Customer Review Website for the Property Industry
The UK's Largest Customer Review Website for the Property Industry
Back to Property Listings
Baliol Road, Gorleston, Great Yarmouth
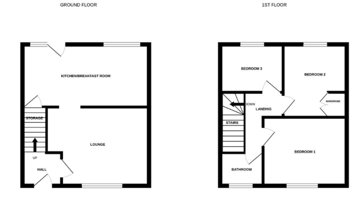
Bycroft Estate Agents are delighted to present this very well presented three bedroom mid terraced house conveniently situated within walking distance of the High Street as well as a variety of local shops and amenities and schools for all ages. Accommodation comprises entrance hall, lounge, kitchen/breakfast room, first floor landing, three bedrooms and bathroom all off landing, front garden space, good size enclosed rear garden, gas central heating and double glazing.
Details - GUIDE PRICE £190,000-£200,000 Bycroft Estate Agents are delighted to present this very well presented three bedroom mid terraced house conveniently situated within walking distance of the High Street as well as a variety of local shops and amenities and schools for all ages. Accommodation comprises entrance hall, lounge, kitchen/breakfast room, first floor landing, three bedrooms and bathroom all off landing, front garden space, good size enclosed rear garden, gas central heating and double glazing.
ENTRANCE HALL UPVC entrance door; stairs to first floor.
LOUNGE 14' 9" max x 12' 6" (4.5m x 3.81m) window to front aspect; radiator; built in low level double cabinet; opening to Kitchen / Breakfast Room.
KITCHEN / BREAKFAST ROOM 17' 6" x 8' 1" (5.33m x 2.46m) large u-shaped worktop/breakfast with a range of base cupboards and drawers; space and plumbing for washing machine and dishwasher; built in eye level oven and grill; four ring gas hob with light and extractor; one and a half bowl sink with mixer tap; range of wall units; window and door to rear garden; understairs storage cupboard; tiled flooring; radiator.
FIRST FLOOR LANDING access to roof space.
BEDROOM 1 10' 11" max x 9' 8" (3.33m x 2.95m) window to front aspect; radiator.
BEDROOM 2 11' 3" x 8' 10" (3.43m x 2.69m) including built in double cupboard housing Worcester gas boiler; window to rear aspect; radiator.
BEDROOM 3 8' 9" x 8' 2" (2.67m x 2.49m) window to rear aspect; radiator.
BATHROOM recently fitted suite comprising wc; vanity unit with wash hand basin, mixer tap and storage drawers; bath with mixer tap, folding screen and Mira electric shower fittings over; aquaboarding; chrome heated towel rail; frosted window.
OUTSIDE To the front of the property there is a garden space with lawn, low brick walling, wrought iron gate and pathway to the front door. To the rear there is a good size, enclosed, garden with paved patio areas, lawn, shrubs and plants, two timber sheds and outside lighting.
VIEWINGS Strictly by appointment with the selling agents, BYCROFT ESTATE AGENTS, tel: 01493 664000.
COUNCIL TAX This property is currently listed as Band A.
DISCLAIMER DISCLAIMER While we endeavour to make our sales particulars fair, accurate and reliable, they are only a general guide to the property and, accordingly, if there is any point which is of particular importance to you, please contact the office and we will be pleased to check the position for you, especially if you are contemplating travelling some distance to view the property.
The approximate room sizes are only intended as general guidance. You must verify the dimensions carefully before ordering carpets or any built-in furniture.
Any references to garden sizes are approximate and subject to confirmation by a measured survey. A prospective purchaser is advised to arrange for their own land survey to be carried out.
Please note we have not tested the services or any of the equipment or appliances in this property, accordingly we strongly advise prospective buyers to commission their own survey or service reports before finalising their offer to purchase.
THESE PARTICULARS ARE ISSUED IN GOOD FAITH BUT DO NOT CONSTITUTE REPRESENTATIONS OF FACT OR FORM PART OF ANY OFFER OR CONTRACT. THE MATTERS REFERRED TO IN THESE PARTICULARS SHOULD BE INDEPENDENTLY VERIFIED BY PROSPECTIVE BUYERS.

Agent Statistics (Based on 356 Reviews) :