The UK's Largest Customer Review Website for the Property Industry
The UK's Largest Customer Review Website for the Property Industry
Back to Property Listings
Baldric Road, Knightswood, Glasgow
This beautifully presented upper cottage flat in the heart of Knightswood, Glasgow, offers sophisticated interiors, a thoughtful layout and a warm, luxurious feel throughout. Every corner of this home has been designed with style, comfort and modern living in mind.
Five things our current owners love about their home:
1. Fantastic location. With nurseries, primary and secondary schools, shops, parks and transport links all nearby, plus easy access to the West End, it`s incredibly convenient for daily life.
2. Lovely street and area. Quiet, well kept, and family friendly, it`s a location that feels safe and welcoming.
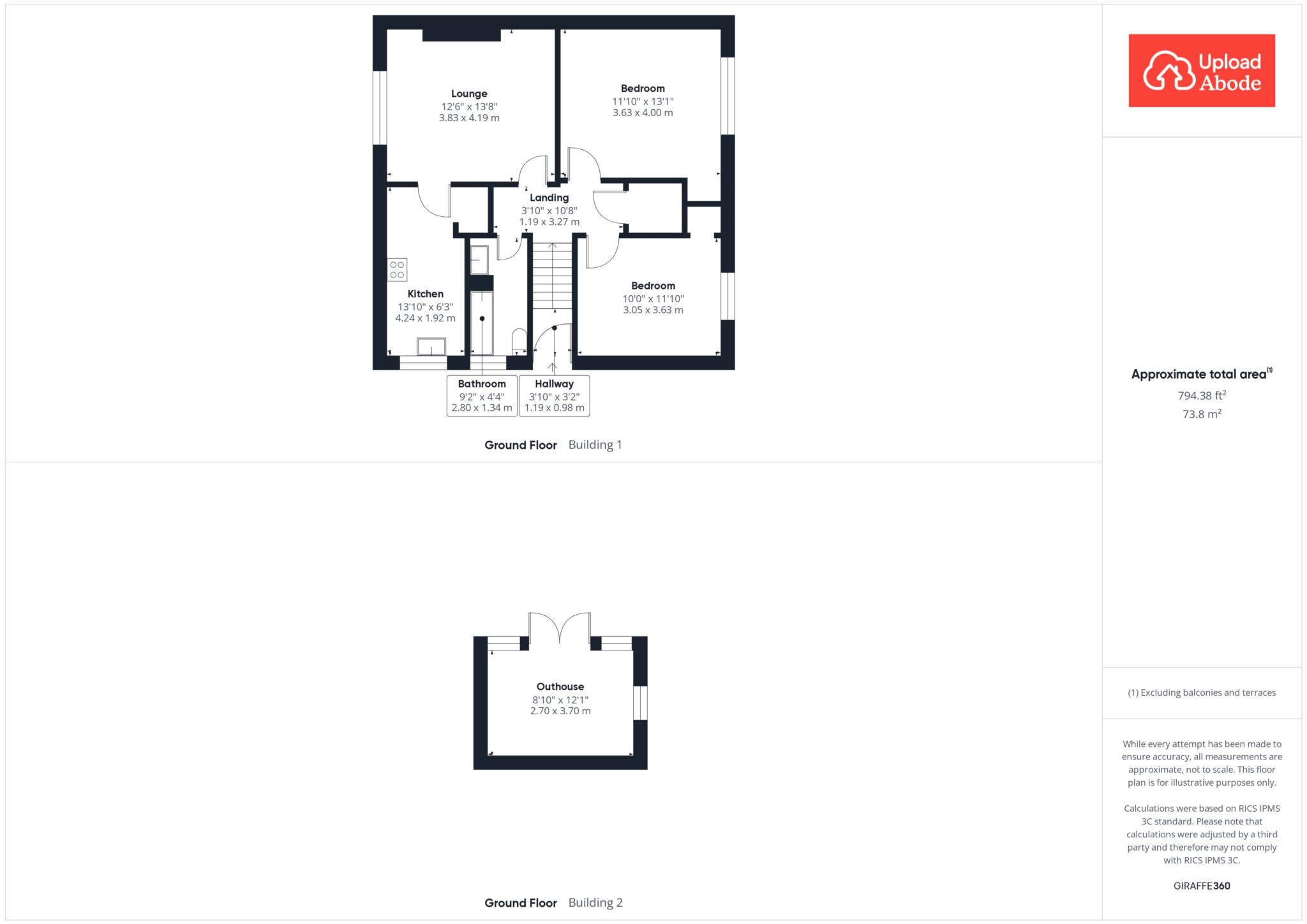
3. Generous rooms and upgraded outdoor space. The bedrooms are a great size and the outdoor area has been thoughtfully enhanced with a monoblocked driveway for 4 or 5 cars, a raised patio and a stylish summer house perfect for entertaining or relaxing.
4. High spec upgrades throughout. Significant investment has gone into modernising both the interior and exterior, meaning everything has been finished to a high standard for the next owners.
5. South facing garden. A real sun trap that`s perfect for summer evenings, BBQs and even drying washing with ease!
As you enter, the attention to detail is clear. The lounge is warm and inviting, with wooden textures, a bespoke media wall and rich emerald green tones combining perfectly to create a room made for comfort and calm.
The galley style kitchen is finished with sleek white gloss cupboards, grey countertops, and a white tiled floor a bright and practical space with timeless, neutral design.
Continuing the modern style , the bathroom styled in elegant grey with black accents and featuring a full bath suite for relaxing nights in.
Both bedrooms are spacious doubles, each with its own identity. The master bedroom features bold wallpaper and stylish black and gold touches, while the second bedroom offers burnt orange, emerald green, and gold tones, creating another luxurious retreat.
Outside, this home benefits from a private driveway, communal grass area, a patio seating space, and even an outhouse perfect for summer entertaining.
Say YES to the address @uploadabode
what3words /// hints.rushed.rental
Notice
Please note we have not tested any apparatus, fixtures, fittings, or services. Interested parties must undertake their own investigation into the working order of these items. All measurements are approximate and photographs provided for guidance only.
Council Tax
Glasgow City Council, Band C
Utilities
Electric: Mains Supply
Gas: Mains Supply
Water: Mains Supply
Sewerage: Mains Supply
Broadband: Cable
Telephone: None
Other Items
Heating: Gas Central Heating
Garden/Outside Space: Yes
Parking: Yes
Garage: No

Agent Statistics (Based on 736 Reviews) :