The UK's Largest Customer Review Website for the Property Industry
The UK's Largest Customer Review Website for the Property Industry
Back to Property Listings
Baker Street, Waddesdon
Located in the sought-after village of Waddesdon, north of Aylesbury, this beautifully presented five-bedroom detached home offers easy access to London via Aylesbury Parkway and road links to Oxford and the M40. The village is ideal for families, boasting two reputable schools Waddesdon Village Primary and the highly regarded Waddesdon Church of England Secondary School along with amenities such as a doctor`s surgery, dentist, convenience store, post office, pub, and several restaurants. Surrounded by countryside and steeped in history, the area is also home to the renowned Waddesdon Manor and Rothschild Estate.
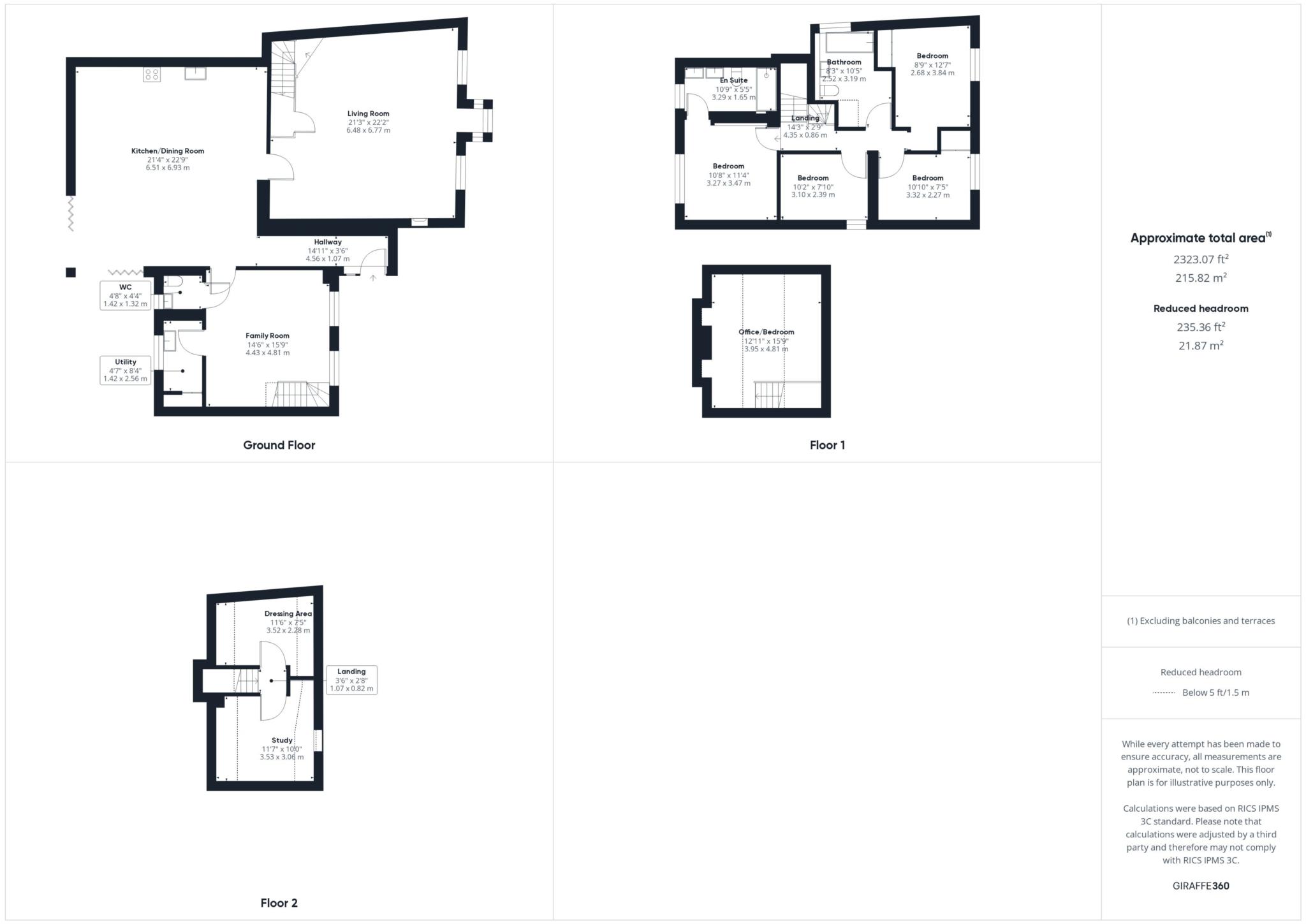
The property itself has been tastefully restored using traditional stock brick, tuck-pointed arches, and heritage lime mortar, with standout features including a lead-roofed bay window, a secure walled rear garden with a unique patterned patio and artificial lawn, and a patterned driveway with space for several vehicles. Internally, it offers stylish living with new carpets, fresh d?cor, a new boiler system (with warranty), Wi-Fi ports in all bedrooms, Bluetooth ceiling speakers, a full panic alarm system, and high-spec security with proximity and vibration sensors. Accommodation includes a striking kitchen with exposed brick, monochrome porcelain floors, Carrara marble finishes, a large island and premium appliances, plus bi-fold doors leading to the garden. There`s a separate family/bar room, WC with Burlington fittings, a well-equipped utility room, and a spacious living room with marble feature wall and bay window. Upstairs offers five bedrooms over two floors, including a principal bedroom with en suite, additional bedrooms with built-in storage or dressing areas, a luxurious family bathroom, and a top-floor office or additional bedrooms with skylights. This impressive home blends period charm with modern sophistication and is offered chain free.
what3words /// movie.handyman.informal
Notice
Please note we have not tested any apparatus, fixtures, fittings, or services. Interested parties must undertake their own investigation into the working order of these items. All measurements are approximate and photographs provided for guidance only.
Council Tax
Buckinghamshire Council, Band F
Utilities
Electric: Mains Supply
Gas: Mains Supply
Water: Mains Supply
Sewerage: Unknown
Broadband: Unknown
Telephone: Unknown
Other Items
Heating: Gas Central Heating
Garden/Outside Space: No
Parking: Yes
Garage: No

Agent Statistics (Based on 1 Reviews) :