The UK's Largest Customer Review Website for the Property Industry
The UK's Largest Customer Review Website for the Property Industry
Back to Property Listings
Astbury Road, Peckham, SE15
Huge Impressively Refurbished Split-Level Three Bedder with Terrace - CHAIN FREE.
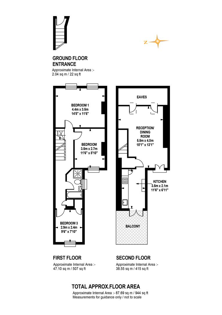
You'll be endlessly impressed with this fantastic three bedroom period conversion! Split generously over the top two floors of a well placed Victorian end of terrace building, the property enjoys a bright, contemporary finish throughout. The accommodation comprises three lovely double bedrooms, swanky bathroom, lofty reception with Juliette balcony and a picture perfect modern kitchen with access to a private top floor terrace. This is a fine spot for some sunny r&r, entertaining or al fresco dining. Transport is unbeatably convenient with Queens Road Station just a three minute walk away, putting you just 10 minutes from London Bridge and 20 minutes from trendy Shoreditch!
A communal garden and entrance lead inward to the flat's ground floor entrance. A freshly carpeted stairs invite you upward to the rear return where you find the first of your fine double bedrooms. It's a rear-facing space with recessed storage and peaceful aspect. The super fancy bathroom sits next to this boasting a large walk-in shower with brass drencher. This matches the fixtures throughout and also complements the door handles and heated towel rail along with a separate bath.
Rising to the first floor you find a large front-facing carpeted double bedroom with a pleasant streetscape through two sash windows. Neutral decor and tonnes of space for slumber, storage and seating. Bedroom three, another fine double, sits to the rear of this with much the same elegance. Heading upward you find your beautifully arranged dual aspect living room which is kept light and airy by two front aspect Velux and a rear Juliette balcony. There's an integrated flame effect fire, recessed storage and ample dining and lounging space. The kitchen adjoins to the rear with fully integrated contemporary cabinets and counters. Appliances include integrated microwave, fridge/freezer, dishwasher and washing machine, four ring induction hob. A brass hot-water mixer tap and matching sink precede double doors that lead onto the private decked terrace.
In addition to London Bridge services, Queens Road also benefits from the London Overground Line with services to Clapham, Canada Water (for the Jubilee Line), Shoreditch and Islington. This is a seriously well connected location. As well as Queen's Road station there are 11 excellent bus links. Peckham Rye and Telegraph Hill parks are both 15 minutes walk. Shopping and leisure couldn't be easier with Peckham high street and Camberwell close by. On your doorstep are the acclaimed Peckham Library, Peckhamplex cinema and Peckham Pulse Leisure Centre. The boho amenities of Bellenden Road with its cafés, bars and restaurants, bookshop and boutiques is easily reached. Even closer are the cafes and eateries of Queens Road. Check out Kudu (a Michelin gourmand restaurant), Mamma Dough and the fantastic Peckham Cellars. We love the Blackbird Bakery for a coffee before the commute. You're also within the catchment for the Astbury Road residents' association (ARARA), with their monthly events and famous yearly street party. It's a lovely way to meet the neighbours. For families, you've got excellent nurseries within walking distance and you're in the catchment of John Donne primary school, voted outstanding by Oftsed.
Tenure: Leasehold
Lease Length: 183 years
Council Tax Band: B

Agent Statistics (Based on 168 Reviews) :