The UK's Largest Customer Review Website for the Property Industry
The UK's Largest Customer Review Website for the Property Industry
Back to Property Listings
Ashworth Square, Wakefield
This MODERN three bedroom townhouse near Pinderfields Hospital features three levels, AMPLE parking, an integral garage, and an ENCLOSED rear garden. Close to amenities and transport links. VIRTUAL TOUR AVAILABLE. EPC rating C71.
Located close to Pinderfields Hospital on a modern development is this three bedroom mid town house with accommodation spread over three levels benefitting from ample off road parking and enclosed rear garden.
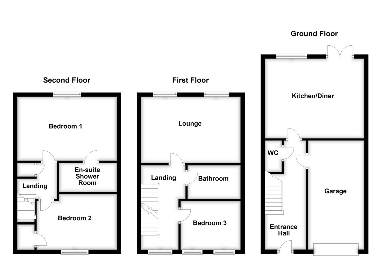
The property briefly comprises of entrance hall, integral garage, kitchen/diner and downstairs w.c. The first floor landing leads to the lounge, the house bathroom and bedroom three. A further set of stairs lead to two further bedrooms with bedroom one boasting en suite shower room. Outside to the front is a tarmacadam driveway providing off road parking for two vehicles leading to the integral garage. To the rear the garden is lawned incorporating planted features and paved patio area, perfect for entertaining and dining purposes fully enclosed by timber fencing with a gate to the rear.
The property is well placed for access to a range of amenities including local shops, schools, bus routes, Wakefield city centre itself and within walking distance of Pinderfields Hospital. The motorway network is only a short drive away for those wishing to commute further afield.
An ideal home for the professional couple or family and an early viewing is recommended to avoid disappointment.
Accommodation -
Entrance Hall - Central heating radiator, stairs to the first floor landing with understairs storage and doors to the downstairs w.c. and kitchen/dining room.
W.C. - 0.88m x 2.02m (2'10" x 6'7") - Central heating radiator, extractor fan, low flush w.c., pedestal wash basin with tiled splash back.
Kitchen/Dining Room - 3.92m x 4.95m (12'10" x 16'2") - Range of wall and base units with laminate work surface over, 1 1/2 stainless steel sink and drainer with mixer tap and tiled splash back. Integrated double oven, four ring gas hob with stainless steel extractor hood above, space and plumbing for a washing machine and fridge/freezer. UPVC double glazed window and set of French doors to the rear, two central heating radiators and spotlights to the ceiling.
Integral Garage - Single integral garage with manual up and over and light.
First Floor Landing - UPVC double glazed window to the front, central heating radiator and doors to the lounge, bathroom and bedroom three. A further staircase leading to the second floor.
Lounge - 3.31m x 4.96m (10'10" x 16'3") - Two central heating radiators, coving to the ceiling and two UPVC double glazed windows to the rear.
Bathroom/W.C. - 1.67m x 2.5m (5'5" x 8'2") - Extractor fan, central heating radiator, low flush w.c., pedestal wash basin and panelled bath.
Bedroom Three - 2.92m x 2.39m (9'6" x 7'10") - Two UPVC double glazed windows to the front and central heating radiator.
Second Floor Landing - Access to hot water tank and doors to two further bedrooms.
Bedroom One - 4.93m x 3.08m (16'2" x 10'1" ) - Central heating radiator, loft access, access to the en suite shower room, UPVC double glazed window to the rear, fitted drawers and a fitted wardrobe including storage area
En Suite Shower Room/W.C. - 1.4m x 2.79m (4'7" x 9'1") - Extractor fan, central heating radiator, shaver socket point, low flush w.c., pedestal wash basin, shower cubicle with shower head attachment and glass shower screen. Partially tiled.
Bedroom Two - 3.9m x 2.88m (max) x 2.33m (min) (12'9" x 9'5" (ma - Overstairs storage cupboard, central heating radiator and UPVC double glazed window to the front.
Outside - To the front of the property there is a tarmacadam driveway providing off road parking for two vehicles leading to the single integral garage and a paved pathway to the front door. To the rear the garden is laid to lawn with planted features and paved patio area, perfect for outdoor dining and entertaining, fully enclosed by timber fencing with timber gate to the rear.
Council Tax Band - The council tax band for this property is D.
Floor Plans - These floor plans are intended as a rough guide only and are not to be intended as an exact representation and should not be scaled. We cannot confirm the accuracy of the measurements or details of these floor plans.
Viewings - To view please contact our Wakefield office and they will be pleased to arrange a suitable appointment.
Epc Rating - To view the full Energy Performance Certificate please call into one of our local offices.

This property is marketed by

Richard Kendall Estate Agent - Wakefield, Wakefield, WF1
4.9/5 Rating
(1653) reviews
Agent Statistics (Based on 1653 Reviews) :