The UK's Largest Customer Review Website for the Property Industry
The UK's Largest Customer Review Website for the Property Industry
Back to Property Listings
Ashleigh Street, Darwen
Upper Craigside is a well-appointed duplex property at the top of Ashleigh Street just off the A666. Offering spacious accommodation this tastefully decorated residence is in the highly sought after Whitehall area of Darwen that blends traditional housing with open green spaces.
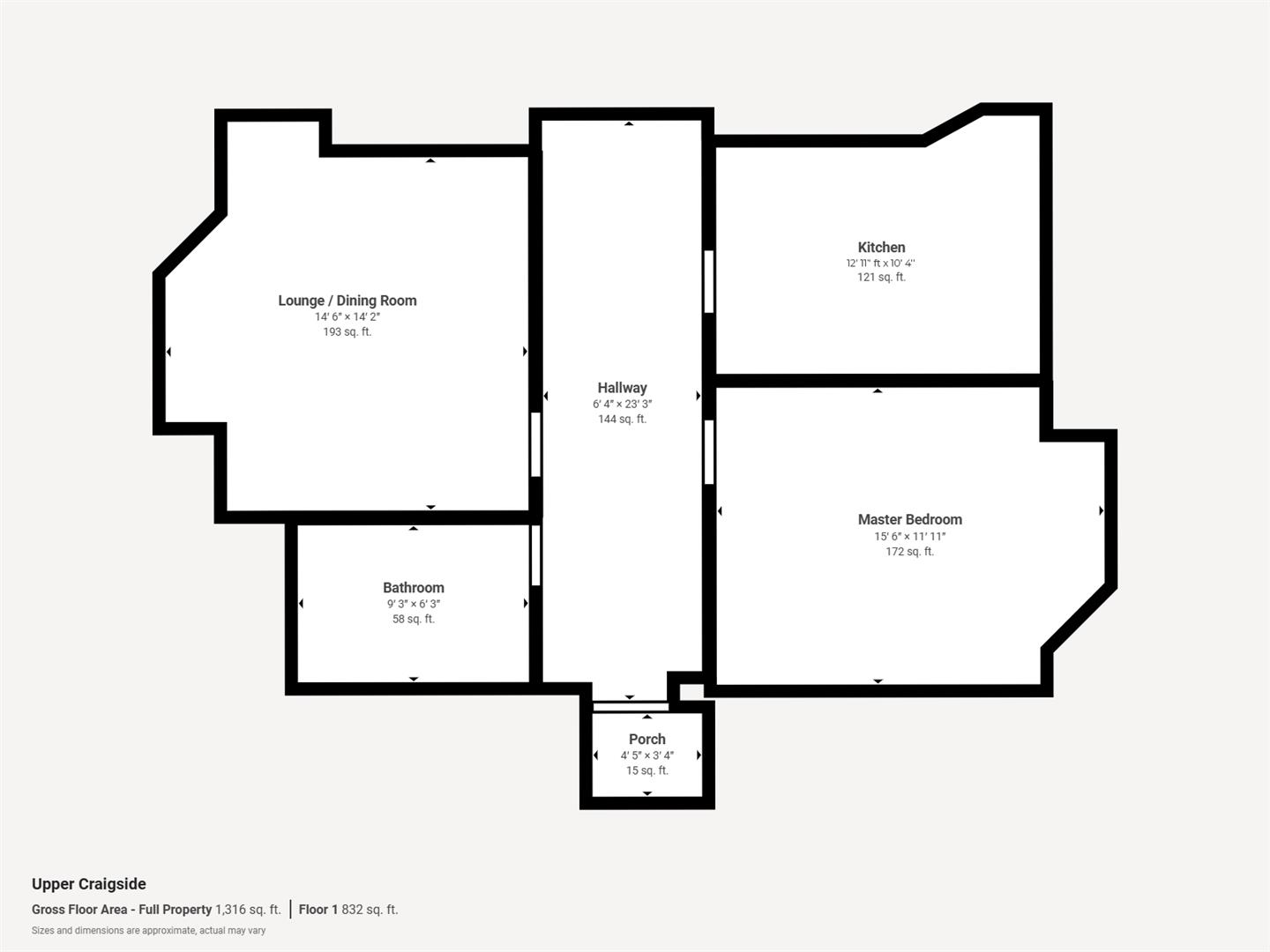
This unique well-maintained Edwardian conversion combines period charm with modern convenience. Entry is via a porch leading to a generous entrance hall. There is a spacious lounge/dining area, a bespoke oak kitchen, a four-piece fully tiled bathroom and the king-sized master bedroom. The upper floor offers two further king-sized bedrooms with fitted wardrobes and floor level access to a large, boarded loft area. The roof and valley gutter are accessible via a Velux window.
Externally the property benefits from the installation of solar panels which enhance energy efficiency and promote sustainability. There is an off-road parking space which lends itself to the installation of an electric vehicle charging point. A detailed structural survey carried out in 2017 is available for inspection at viewings and invoices & guarantees for the repair and renovation work have been retained. The valley gutter was relined; the valley-side aspect of the roof re-slated including removing one chimney, rebuilding a second chimney and refixing the ridge tiles. The wall ties were replaced, and solar panels & gas central heating installed. The windows have been replaced with UPVC sealed units and the flat roof single glazed porch replaced with a UPVC double glazed structure with a traditional style roof. The parking space was created and a coloured random Indian stone patio laid in the peaceful sunken garden. There is a lockable brick-built store under the outside staircase.
Public transport links to Darwen, Blackburn, Bolton and Bury are accessible nearby and Whitehall Victorian Park is a short walk away as is access to the West Pennine Moors where Darwen Jubilee Tower is sited.
External -
Hallway -
Lounge/Dining Room -
Kitchen -
Master Bedroom -
Bathroom -
Bedroom Two -
Bedroom Three -
External -

Agent Statistics (Based on 13 Reviews) :