The UK's Largest Customer Review Website for the Property Industry
The UK's Largest Customer Review Website for the Property Industry
Back to Property Listings
Ashenden Road, London
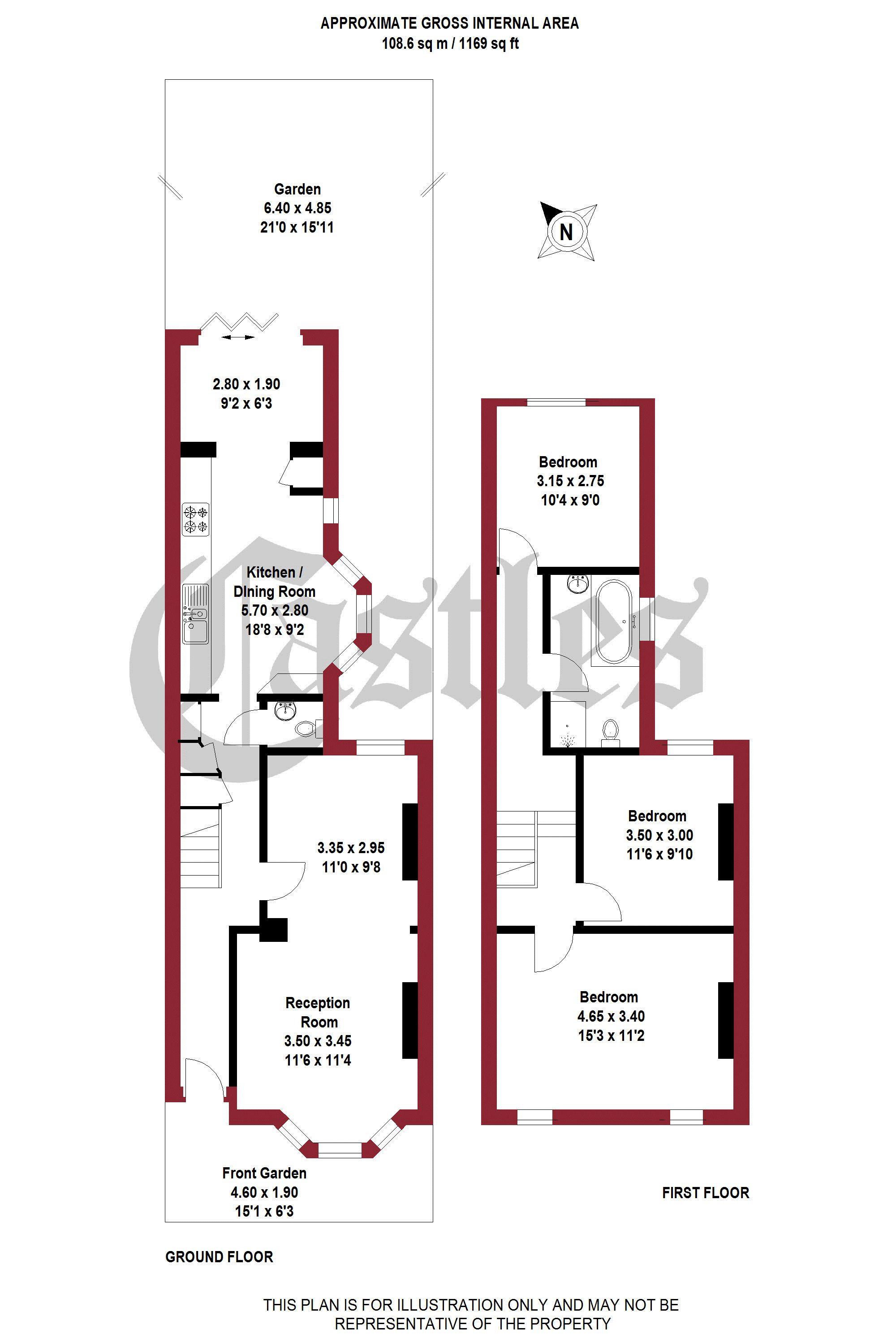
Enviably located is this beautifully finished Victorian House arranged over two floors and boasting close to 1,200 SqFt of living accommodation. The property is comprised of an inviting entrance hallway leading to a through lounge with a wealth of period features., spacious kitchen/dining area with access onto rear garden. The first floor boasts three well-proportioned bedrooms and family bathroom. Located on Ashenden Road and within easy reach of Homerton overground station and the vibrant Chatsworth Road with its array of coffee shops, trendy bars and restaurants.

This property is marketed by

Castles Estate Agents (London) - Hackney, London, E5
5/5 Rating
(939) reviews
Agent Statistics (Based on 939 Reviews) :