The UK's Largest Customer Review Website for the Property Industry
The UK's Largest Customer Review Website for the Property Industry
Back to Property Listings
Ashbourne Drive, Cleckheaton
Situated on an impressive corner plot is this extended semi-detached house. Located in an ever popular area, the property boasts large garden areas along with space for a caravan/motorhome plus double driveway parking and a detached double garage with electric remote doors. Offering a wealth of potential for any buyer, the 3 bedroomed accommodation also benefits from a sun lounge extension and is available with no onward chain. Benefitting from local amenities, well regarded schooling and major road links nearby, an early viewing of this property is strongly recommended.
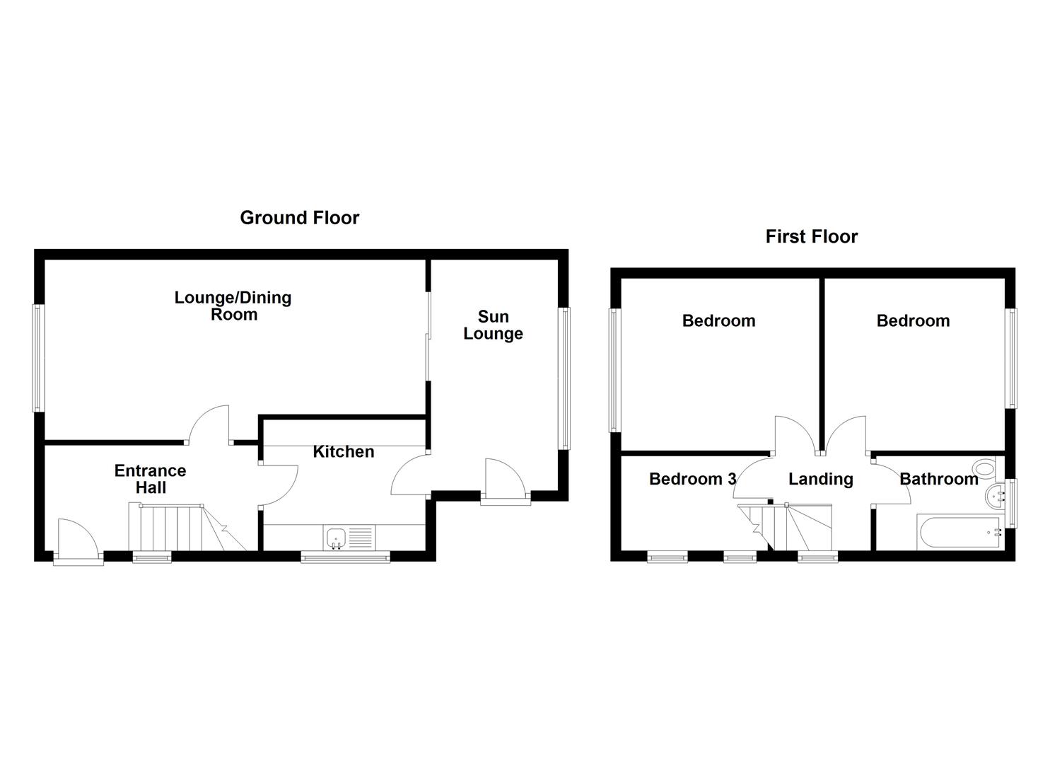
Ground Floor - Enter the property via an exterior door into:-
Entrance Hall - Where there is a central heating radiator, understairs storage and a staircase to the first floor accommodation.
Lounge With Dining Area - 7.42m x 3.51m narrowing to 2.82m (24'4" x 11'6" na - This spacious living space has a lounge area with a window, a central heating radiator and a fireplace with hearth and inset gas fire. The open plan dining space also has a central heating radiator and sliding frosted doors leading into the sun lounge.
Sun Lounge - 4.32m x 2.21m (14'2" x 7'3") - The Sun Lounge overlooks the patio area, this sun lounge extension has a central heating radiator and a door out onto the gardens.
Kitchen - 2.97m x 2.62m (9'9" x 8'7") - Comprising a range of wall and base units with work surfaces, tiled splashbacks and inset sink unit. A window overlooks the garden and a door leads into the hallway.
First Floor -
Landing - Access to a boarded loft area with lighting and pull down ladder.
Bedroom 1 - 3.86m x 3.07m (12'8" x 10'1") - Having a range of fitted wardrobes to one wall, a window and a central heating radiator.
Bedroom 2 - 3.28m x 3.18m (10'9" x 10'5") - Another double bedroom with a window and a central heating radiator.
Bedroom 3 - 2.90m x 1.96m (9'6" x 6'5") - Incorporating the bulkhead and having a central heating radiator and 2 windows.
Bathroom - Furnished with a 3 piece white suite comprising panelled bath with shower over, a WC and a wash basin set within a vanity unit. Airing cupboard hosing the boiler. There is tiling to the walls along with a central heating radiator and a window.
Outside - Situated on an impressive corner plot, the property has ample scope to be extended subject to necessary consents. Boasting large lawned gardens to the front and side with outer walling, pathway and planted areas. There is paved space for a caravan/motorhome or van plus double driveway parking to the front of a good sized detached double garage with electric remote doors. A raised paved patio/seating area also provides a pleasant entertaining space.
Boundaries & Ownerships: - The boundaries and ownerships have not been checked on the title deeds for any discrepancies or rights of way. All prospective purchasers should make their own enquiries before proceeding to exchange of contracts.
Directions: - Leave the Mirfield office on Knowl Road which will become Water Royd Lane. Continue straight ahead at the crossroads onto Old Bank Road and at the junction turn left onto Sunny Bank Road. At the traffic lights, go straight ahead onto Child Lane. Take the first exit at the roundabout and then the second exit at the following roundabout onto Church Road. At the crossroads, turn right onto Clough Lane and follow this road for a short distance and then take a left turn at the junction onto Halifax Road. At the traffic lights, turn right onto Hightown Road and stay on this road for about 1 mile before taking a left turn onto Ashbourne Drive where the property can be found clearly identified by the Bramleys for sale board.
Tenure: - Freehold
Council Tax Band: - Band C
Mortgages: - Bramleys have partnered up with a small selection of independent mortgage brokers who can search the full range of mortgage deals available and provide whole of the market advice, ensuring the best deal for you. YOUR HOME IS AT RISK IF YOU DO NOT KEEP UP REPAYMENTS ON A MORTGAGE OR OTHER LOAN SECURED ON IT.
Online Conveyancing Services: - Available through Bramleys in conjunction with leading local firms of solicitors. No sale no legal fee guarantee (except for the cost of searches on a purchase) and so much more efficient. Ask a member of staff for details.

Agent Statistics (Based on 459 Reviews) :