The UK's Largest Customer Review Website for the Property Industry
The UK's Largest Customer Review Website for the Property Industry
Back to Property Listings
Armstrong Close, Pinner
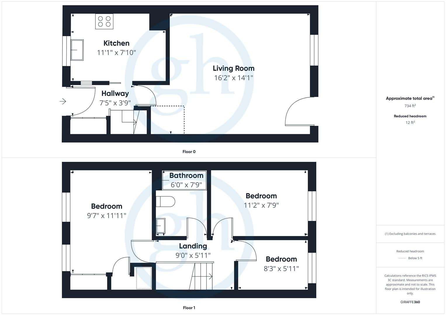
NO UPPER CHAIN. Gibson Honey are delighted to present to the market this spacious and well proportioned three bedroom terraced home in need of modernisation. The property briefly comprises: good size living room, fitted kitchen, bathroom, spacious master bedroom, ample storage space, and private rear garden. The property benefits from gas central heating and double glazed windows throughout. Superbly located between Old Eastcote, Pinner Village and Ruislip High Street with their variety of shops, including Waitrose Supermarket, Tesco Supermarket and numerous restaurants, pizza outlets and coffee bars. The Metropolitan/Piccadilly line station based at both Eastcote and Ruislip offers swift and regular connections to Baker Street and the City whilst for families there are a number of highly regarded schools in the area. The property is also located within walking distance from local parks, woodland trails and Highgrove Leisure Centre.
Entrance Hall - Front aspect door, storage cupboard housing meters, radiator, stairs to first floor landing, doors to.
Living Room - Rear aspect double glazed leaded light door, rear aspect double glazed leaded light window, electric fireplace, radiator x 2.
Kitchen - Front aspect double glazed leaded light window, part tiled walls, fitted oven, 4 gas ring hob with extractor hood, sink with drainer, wall mounted boiler.
Bedroom One - Front aspect double glazed windows with leaded light x 2, radiator.
Bedroom Two - Rear aspect double glazed leaded light windows x 2, radiator.
Bedroom Three - Rear aspect double glazed leaded light windows x 2.
Bathroom - Pannell enclosed bath tub with mixer taps, wall mounted wash hand basin with mixer taps, part tiled walls, hatch to loft space.
Council Tax - London Borough of Hillingdon - Band D - £1,952.38
N.B. WE RECOMMEND YOUR SOLICITOR VERIFIES THIS BEFORE EXCHANGE OF CONTRACTS.
Distance To Stations - Ruislip Manor (0.9 Miles) - Metropolitan/Piccadilly
Eastcote Station (0.9 Miles) - Central/Chiltern Railways
Northwood Hills (1.0 Mile) - Metropolitan

Agent Statistics (Based on 763 Reviews) :