The UK's Largest Customer Review Website for the Property Industry
The UK's Largest Customer Review Website for the Property Industry
Back to Property Listings
Anerley Park, Anerley, London
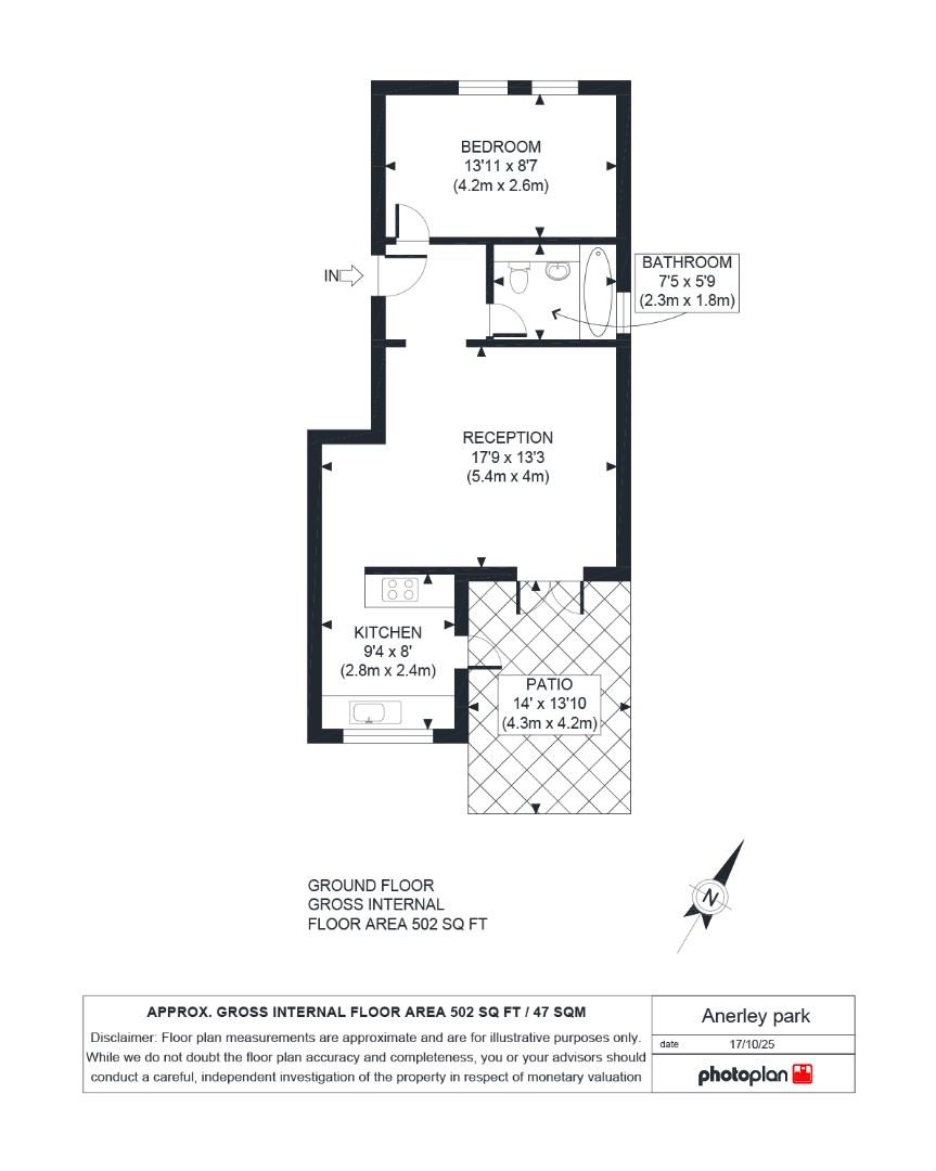
Propertyworld is delighted to present this gorgeous one-bedroom Victorian conversion, set on the ground floor of a handsome detached period building and offered in fabulous condition throughout.
Beautifully presented and full of character, this spacious flat combines period charm with contemporary style. The accommodation is well laid out with a generous double bedroom to the front, flooded with natural light. The high-specification bathroom features a modern three-piece suite, fully tiled walls, a floating sink with storage, and a stylish chrome-heated towel rail.
The large reception room is bright and inviting, with direct access via patio doors to a lovely communal garden - perfect for relaxing or entertaining. The modern kitchen is finished to a high standard, boasting white units, solid wood worktops, and striking tiled flooring.
Externally, the property benefits from a generous garden area with a private patio and a rarely used, beautifully maintained communal space. Other features include share of freehold and a lease over 900 years, neutral décor, double glazing, and tanked walls in the living room and bedroom for added insulation.
Located on sought-after Anerley Park, just moments from the award-winning Crystal Palace Park and within easy reach of the Crystal Palace Triangle and Penge High Street, with their fantastic selection of shops, cafés, and restaurants. Transport options are excellent, with Penge West (Overground) and Penge East (Mainline) stations both nearby, as well as Anerley Station, offering easy access into Central London and beyond.
The building is well-managed, with a healthy sinking fund and a genuine sense of community among residents.
A stunning home in a prime location - one not to be missed.
"We've lived in the flat for just over 4 years and have absolutely loved it - it's been a perfect first home for us. We love the open plan design and the large living room area - we like to have friends over and it's a perfect space for this. The garden is a real plus, especially as we have direct access and the other flats rarely use it. We also have our own private decking, which gets the sun all day until about 4pm. The local area is fantastic - we are walking distance to Anerley, Penge or Crystal Palace, all of which have great little pubs, cafes and shops. And the best bit is that we are only a 2 min walk from the park, which has so much to offer - beautiful walks, nice café, food market and a wide range of sport (football, tennis, paddle etc.). Neighbours are very friendly and help each other out if needed, with the odd drink in the garden. We're moving out to Surrey to be closer to family, if we didn't have a baby we'd certainly not be in a hurry to leave this wonderful flat."

Agent Statistics (Based on 2753 Reviews) :