The UK's Largest Customer Review Website for the Property Industry
The UK's Largest Customer Review Website for the Property Industry
Back to Property Listings
Anerley Hill, Anerley, London
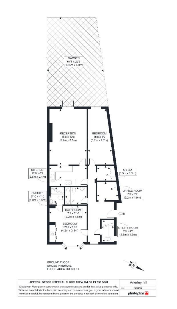
Propertyworld is delighted to present this unique and beautifully presented two / three bedroom, two-bathroom Victorian conversion flat on the ground floor of a handsome period building directly opposite Crystal Palace Park. This exceptional home comes with its own private entrance, a stunning 60-foot private rear garden, a separate utility room, and plenty of storage - all lovingly upgraded and enhanced by the current owner with care, creativity, and a real eye for detail.
The layout is both flexible and functional, offering two spacious double bedrooms - one with a bay window, bespoke plantation shutters, and a sleek en-suite bathroom - as well as a third room that can be used as a home office / study. The main living space is a genuine highlight: an 19-foot reception room to the rear with stripped solid wooden floors, period-style radiators and direct access to the garden, making it a perfect entertaining space or somewhere to simply enjoy the view.
The kitchen is a stylish, contemporary affair with clean lines and the original stripped wooden flooring. There's also a separate utility room - an increasingly rare feature - allowing you to keep everyday tasks discreetly out of sight and contributing to the sense of order and calm that runs throughout the property.
The garden is a real showstopper: beautifully landscaped and thoughtfully arranged, it stretches an impressive 60 feet and offers a peaceful, secluded escape from city life. Mature shrubs and planting surround a neat lawn, with a fishpond adding to the sense of calm, and at the very rear, a hidden seating area with fire pit. Other key benefits include 166 years remaining on the lease, low service charges, and a location that's hard to beat - a short walk from the buzz of the Crystal Palace Triangle with its award-winning restaurants, coffee shops, independent retailers and gastropubs.
This is a rare and highly desirable home, full of personality and period charm.
"One of the highlights has been the garden - it's my favourite place to spend time. It's incredibly peaceful, surrounded by mature trees, it feels like a private green sanctuary. I often sit by the pond, watching the frogs, newts, and a couple of little fish - it's wonderfully calming. I've planted it to be low-maintenance but full of life year-round: crocuses and snakehead bulbs in early spring, then wild garlic, followed by jasmine, hebe and acanthus, with red dogwood stems adding colour through winter. There's also a small fire pit at the bottom that's perfect for cosy evenings and relaxed barbecues. Inside the flat, I've loved making it my own. I carefully designed it to make the most of the space. A personal favourite are the handmade Bert & May tiles, and I get a lot of joy from the bath with its shelf - perfect for unwinding. I initially used the reading room as my office but moved to the spare room for the garden view, adding a platform desk with a pull-out bed underneath that's great for guests and extra storage. The whole flat has been designed to maximise storage, which has made day-to-day life much easier and more organised. Living in Crystal Palace has been a joy. Being directly opposite the park is amazing, and the Triangle is a short walk away, full of great cafés, restaurants, and bars. With a private entrance and friendly but unobtrusive neighbours, it's felt like a calm, welcoming place to live."

Agent Statistics (Based on 2737 Reviews) :