The UK's Largest Customer Review Website for the Property Industry
The UK's Largest Customer Review Website for the Property Industry
Back to Property Listings
Alphington Road, Exeter
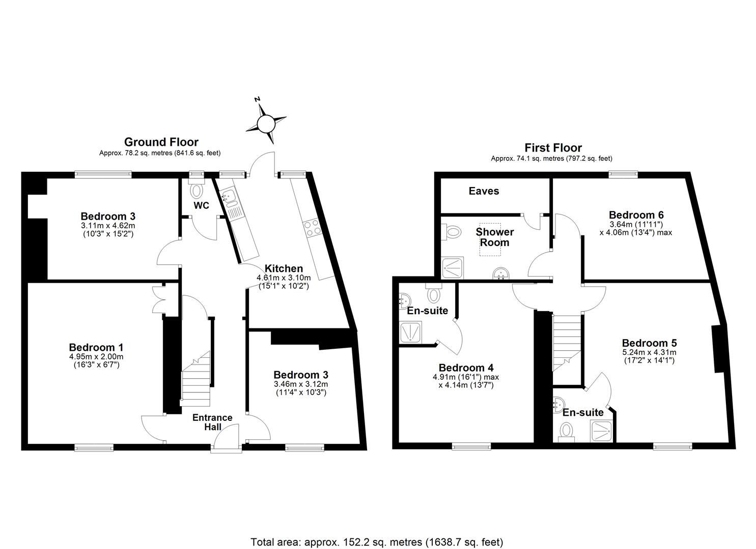
Nestled on the charming Alphington Road in Exeter, this delightful semi-detached house offers a perfect blend of character and modern convenience. Built in 1880, the property boasts a generous living space of 1,528 square feet, making it an ideal home for individuals or couples seeking comfort and style.
A well-presented room is available to rent in Osbourne House, a conveniently located property on Alphington Road, Exeter. This is an ideal opportunity for working professionals or mature students seeking affordable and comfortable accommodation with excellent transport links and local amenities.
Bright and spacious private room, Neutral décor and carpeted flooring, fully equipped shared kitchen. Clean and well-maintained communal areas, Secure entry and on-site management.
One of the standout features of this property is its inclusive utility package, which covers water, heating, electricity, and council tax, allowing for a hassle-free living experience.
The location is particularly advantageous, situated within walking distance to the vibrant City Centre, where you can enjoy a variety of shops, cafes, and cultural attractions. Additionally, a local supermarket is conveniently close, making daily errands a breeze. For those who require easy access to transport, the property is well-positioned near key road links, ensuring that commuting is straightforward.
This charming home on Alphington Road is not just a place to live; it is a gateway to the best that Exeter has to offer. This property presents an excellent opportunity in a sought-after area.
Bedroom 1 -

This property is marketed by

Winfields Sales & Lettings - Torbay, Paignton, TQ3
4.3/5 Rating
(7) reviews
Agent Statistics (Based on 7 Reviews) :