The UK's Largest Customer Review Website for the Property Industry
The UK's Largest Customer Review Website for the Property Industry
Back to Property Listings
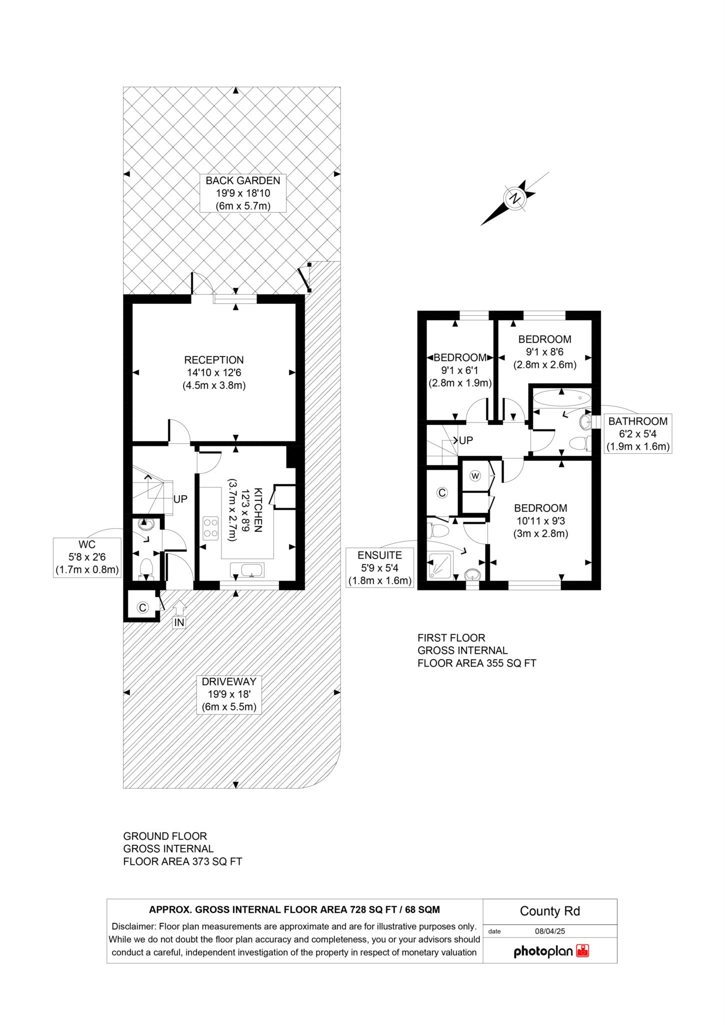
Alnwick Road, Canning Town
bryants are pleased to present this well-maintained three-bedroom mid-terrace house located on Alnwick Road, Canning Town, E16.
The property offers a spacious and bright reception room, a fully fitted kitchen and a practical breakfast bar.
Upstairs, the accommodation comprises of two double bedrooms and one single bedroom, along with a family bathroom featuring a bathtub and separate shower enclosure. A ground-floor wash closet which adds further convenience.
Externally, the property benefits from a well-maintained rear garden with mature planting, decorative balustrades, and a brick-built shed. The front garden is gated, offering added privacy and kerb appeal.
Additional features include gas central heating.
Situated within easy reach of Canning Town Station (Jubilee Line & DLR), with excellent transport links to Canary Wharf, the City, and Stratford. Local amenities, schools, and parks are all close by.
"
"No Chain"****
Contact Bryants today to arrange a viewing. 0207 474 8866
Front Garden - 16'0" (4.88m) x 9'2" (2.79m)
Kitchen - 15'7" (4.75m) x 9'4" (2.84m)
Reception - 16'0" (4.88m) x 13'7" (4.14m)
W/C - 4'9" (1.45m) x 2'7" (0.79m)
Garden - 28'0" (8.53m) x 16'0" (4.88m)
Garden House - 7'8" (2.34m) x 4'3" (1.3m)
Bedroom 1 - 13'0" (3.96m) x 8'8" (2.64m)
Bedroom 2 - 13'5" (4.09m) x 8'6" (2.59m)
Bedroom 3 - 9'4" (2.84m) x 6'8" (2.03m)
Bathroom - 9'9" (2.97m) x 6'10" (2.08m)
Notice
Please note we have not tested any apparatus, fixtures, fittings, or services. Interested parties must undertake their own investigation into the working order of these items. All measurements are approximate and photographs provided for guidance only.
Council Tax
London Borough Of Newham, Band D
Utilities
Electric: Mains Supply
Gas: Mains Supply
Water: Mains Supply
Sewerage: Mains Supply
Broadband: Unknown
Telephone: Unknown
Other Items
Heating: Not Specified
Garden/Outside Space: No
Parking: No
Garage: No

Agent Statistics (Based on 13 Reviews) :