The UK's Largest Customer Review Website for the Property Industry
The UK's Largest Customer Review Website for the Property Industry
Back to Property Listings
Alma Road, Birkdale, Southport, Merseyside, PR8 4BL
Council tax band: A
Deposit: 692
Bailey Estates is delighted to offer TO LET this two-bedroom first-floor apartment, superbly located right in the heart of Birkdale Village.
Situated above the Spar and accessed via a private external staircase from Alma Road, this apartment offers unbeatable convenience, with shops, cafés, restaurants, and Birkdale train station quite literally on your doorstep.
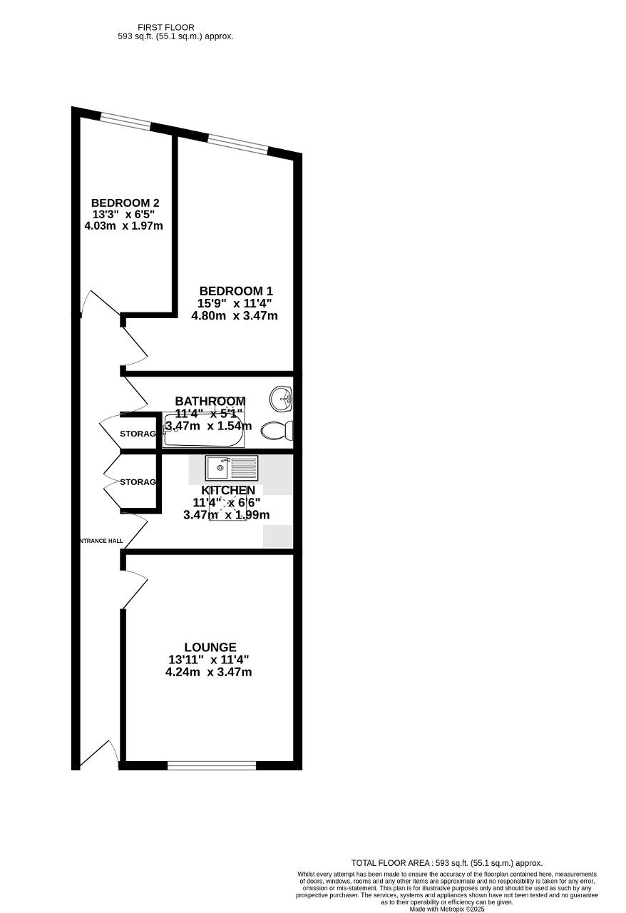
Internally, the apartment comprises a long entrance hallway (approx. 9 metres) leading through the accommodation. To the front, you'll find a spacious lounge area, followed by a bright kitchen, complete with skylight and space for a cooker and fridge freezer.
Further along the hallway, two generous storage cupboards provide excellent in-flat storage. The bathroom features a skylight, WC, wash basin, and a bath with shower attachment above. At the rear of the apartment, there are two good-sized bedrooms enjoying views over bustling Birkdale Village.
This property presents a rare opportunity to live in one of Southport"s most desirable and vibrant locations.
Call Bailey Estates today on 01704 564163 to arrange your viewing.
Leave Bailey Estates Birkdale office and walk through the village until you arrive at Alma Road on your right hand side. Turn right into Alma Road and there is a court yard to the side of the Spar convenient store where steps rise to the first floor to the entrance to the apartment.
Entrance Hallway
30' 2'' x 3' 1'' (9.22m x 0.95m)
Lounge
13' 10'' x 11' 4'' (4.24m x 3.47m)
Kitchen
11' 4'' x 6' 6'' (3.47m x 1.99m)
Bathroom
11' 4'' x 5' 0'' (3.47m x 1.54m)
Bedroom 1
15' 8'' x 11' 4'' (4.8m x 3.47m)
Bedroom 2
13' 2'' x 6' 5'' (4.03m x 1.97m)

Agent Statistics (Based on 391 Reviews) :