The UK's Largest Customer Review Website for the Property Industry
The UK's Largest Customer Review Website for the Property Industry
Back to Property Listings
All Saints Road, Bedworth
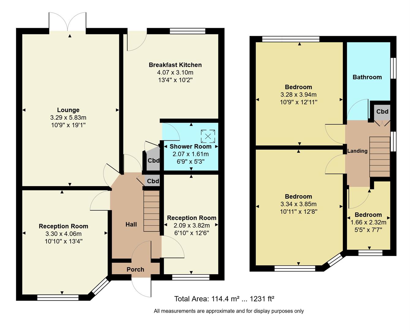
**EXTENDED, TRADITIONAL SEMI DETACHED - THREE BEDROOMS - THREE RECEPTION ROOMS - OVER 1,200 SQ FT OF LIVING ACCOMODATION - FANTASTIC REAR GARDEN - UPSTAIRS BATHROOM & DOWNSTAIRS SHOWER ROOM** This is a semi detached property that is located on a lovely, sought after street, and benefits from off road parking, a lovely garden to the rear, and the rare benefit of a spacious ground floorplan - ideal for flexible family living! It is a must to book in to view this property, to appreciate the beautiful accommodation and see the potential the rear garden has. Located to the south of Bedworth, with Goodyers End Lane Primary school nearby, as well as a host of shops. road and public transport links - this an opportunity not to be missed.
Important Note To Purchasers - Intending purchasers will be asked to produce identification documentation for Anti Money Laundering Regulations at a later stage and we would ask for your co-operation in order that there will be no delay in agreeing the sale.
We endeavour to make our sales particulars accurate and reliable, however, they do not constitute or form part of an offer or any contract and none is to be relied upon as statements of representation or fact. Any services, systems and appliances listed in this specification have not been tested by us and no guarantee as to their operating ability or efficiency is given.
All measurements have been taken as a guide to prospective buyers only and are not precise. Please be advised that some of the particulars may be awaiting vendor approval. If you require clarification or further information on any points, please contact us, especially if you are traveling some distance to view.
All fixtures and fittings ultimately are to be agreed with the seller via the fixtures and fittings form which will then form part of a legal contract through the conveyances and as the marketing estate agent none of our particulars or conversations are legally binding, only the legal solicitor paperwork.
Up Estates has not sought to verify the legal title of the property and the buyers must obtain verification from their solicitor.

Agent Statistics (Based on 660 Reviews) :