The UK's Largest Customer Review Website for the Property Industry
The UK's Largest Customer Review Website for the Property Industry
Back to Property Listings
Alibon Road, Dagenham
Looking for the WOW FACTOR!!!! then this is the property for you!! This CHAIN FREE family home really needs to be seen to be believed!! Comprising of THREE DOUBLE BEDROOMS with the master bedroom having an EN SUITE SHOWER ROOM, Through lounge, LUXURY FITTED KITCHEN/DINER, Utility Room with WC and First floor family bathroom are just the tip of the Iceberg. The property also benefits from having an Integrated audio system, Sprinkler system and Air Conditioning!! To the rear is a stunning garden with BBQ area, and a Brick built garden room which offers a Sauna, Shower room and toilet facilities, and to the front there is off street parking. Call today to book in your viewing appointment!!
Looking for the WOW FACTOR!!!! then this is the property for you!! This CHAIN FREE family home really needs to be seen to be believed!! Comprising of THREE DOUBLE BEDROOMS with the master bedroom having an EN SUITE SHOWER ROOM, Through lounge, LUXURY FITTED KITCHEN/DINER, Utility Room with WC and First floor family bathroom are just the tip of the Iceberg. The property also benefits from having an Integrated audio system, Sprinkler system and Air Conditioning!! To the rear is a stunning garden with BBQ area, and a Brick built garden room which offers a Sauna, Shower room and toilet facilities, and to the front there is off street parking. Call today to book in your viewing appointment!!
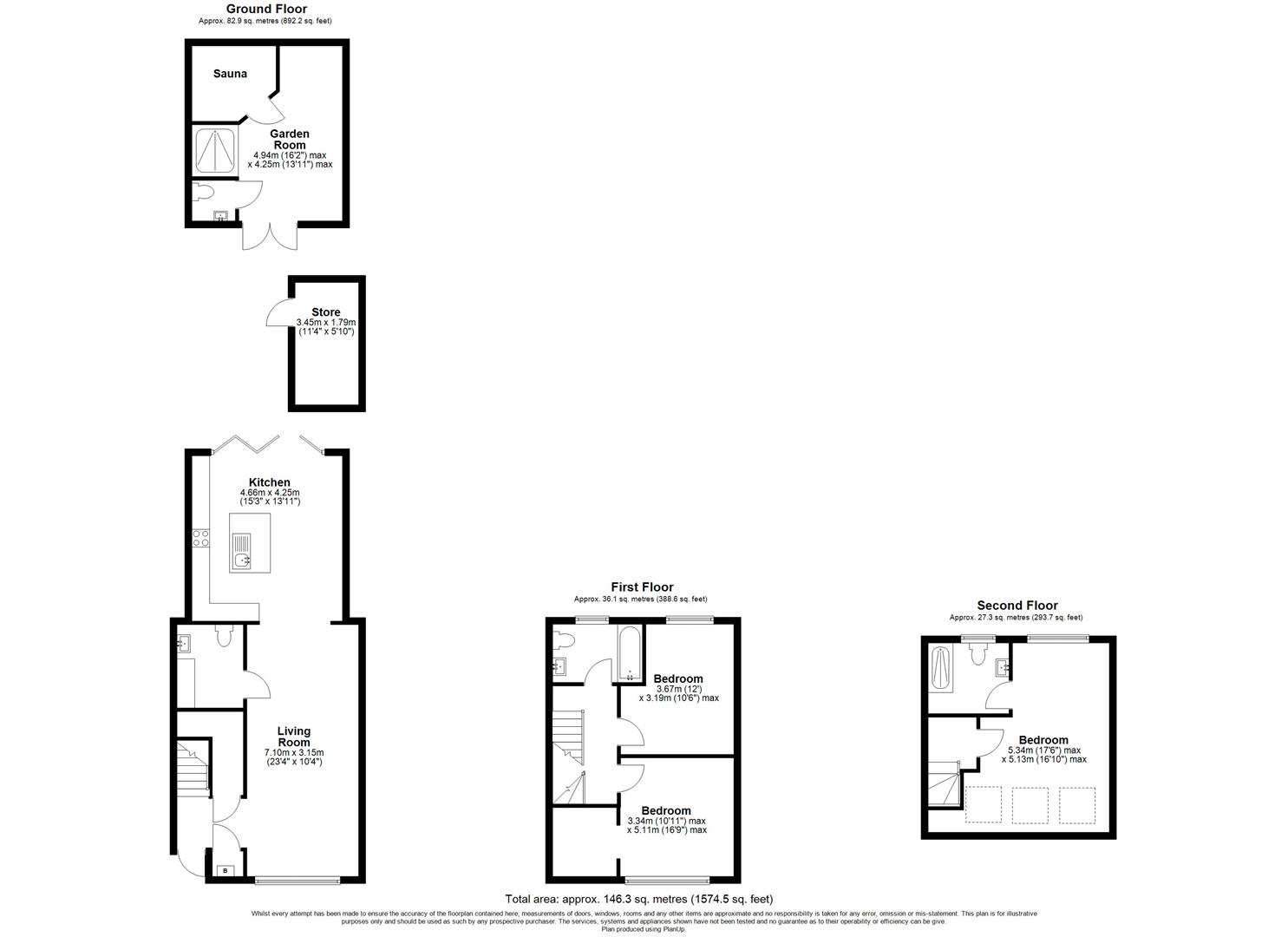
Entrance - Via door to hall
Hall - Staircase to first floor. Built in cupboard. Walk in storage cupboard. Opening to
Through Lounge - 7.10 x 3.15 (23'3" x 10'4") - Treble glazed window to front. Tiled flooring with under floor heating. Aircon unit. Sprinkler system. Individually controlled speaker system. Spot lights.
Kitchen/Diner - 4.66 x 4.25 (15'3" x 13'11") - Range of fitted wall and base units with work tops. Breakfast bar. Integrated dishwasher and microwave. Spaces for fridge freezer and range cooker. Single drainer sink unit with mixer taps and separate water filter. Tiled flooring with underfloor heating. Sprinkler system. Individually controlled speaker system. Two sky lights. Bi folding doors to garden.
Utility Room - 2.34 x 1.76 (7'8" x 5'9") - Roll top worksurface with space under for washing machine. Low level WC. Inset wash hand basin with mixer taps. Tiled walls and flooring. Spot lights. Sprinkler system.
First Floor Landing - Staircase to second floor. Sprinkler system. Doors to
Bedroom Two - 3.33 x 3.18 (10'11" x 10'5") - Treble glazed window to front. Radiator. Spot lights. Wood flooring. Aircon unit. Sprinkler system. Individually controlled speaker system. Walk in dressing area.
Dressing Area - 1.86 x 1.79 (6'1" x 5'10") - Wood flooring. Spot lights.
Bedroom Three - 3.67 x 2.49 > 3.19 (12'0" x 8'2" > 10'5") - Treble glazed window to rear. Radiator. Wood flooring. Aircon unit. Sprinkler system. Individually controlled speaker system.
Family Bathroom - 2.26 x 1.64 (7'4" x 5'4") - Bath with mixer taps, hand held shower attachment and shower over. Inset wash hand basin with mixer taps. Low level WC. Tiled walls and flooring with under floor heating. Spot lights. Individually controlled speaker system. Obscure treble glazed window to rear.
Second Floor Landing - Door to
Bedroom One - 5.34 x 5.13 max (17'6" x 16'9" max) - Three Velux windows to front. Wood flooring. Storage to eaves. Radiator. Treble glazed window to rear. Aircon unit. Sprinkler system. Individually controlled speaker system. Door to En Suite shower room.
En Suite Shower Room - 2.02 x 1.80 (6'7" x 5'10") - Shower. Inset wash hand basin with mixer taps and storage under. Low level WC. Chrome effect heated towel rail. Spot lights. Tiled walls and flooring. Speaker system.
Rear Garden - 17.80 x 5.60 approx (58'4" x 18'4" approx) - Needs to be seen to fully take in all that is on offer.
Brick Built Garden Room With Sauna - 4.94 x 4.25 max (16'2" x 13'11" max) - This brick built garden room has a Sauna, Walk in shower cubical with electric shower and feature wooden cold water bucket. Low level WC, Inset wash hand basin with mixer taps and cupboard under. Laminate effect wood flooring. Sky light.
Front Garden - Providing off street parking.
We routinely refer potential purchasers to Move with Us Ltd. It is your decision whether you choose to deal with Move with Us Ltd. In making that decision, you should know that we receive an annual payment benefits from Move with Us Ltd, equating to approximately £314.48 per referral.

Agent Statistics (Based on 133 Reviews) :