The UK's Largest Customer Review Website for the Property Industry
The UK's Largest Customer Review Website for the Property Industry
Back to Property Listings
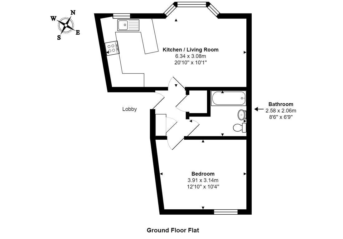
Alexandra Road, Mutley, PL4 7JS
3D Tour Available!
Located close to shops and bus routes is this one double bedroom well presented and refurbished ground floor flat with off road parking space. Offering open plan lounge, with fitted kitchen and bay window, modern fitted bathroom, double bedroom and two good size storage cupboards. To the front there is a driveway parking space for this property.
Interested parties should contact novahomes to be sent an application to view which must be completed and returned.
Once you have viewed the property if accepted you will be asked to pay one weeks rent as a holding fee of ?175. This will be added to you final deposit payable and first months rent which will be due three days before your tenancy starts. ?1636 in total
Notice
All photographs are provided for guidance only.
Redress scheme provided by: The Property Ombudsman (A4813)
Client Money Protection provided by: CMP (Client Money Protect) (CMP007396)
Council Tax
Plymouth City Council, Band A
Utilities
Electric: Mains Supply
Gas: Mains Supply
Water: Mains Supply
Sewerage: Mains Supply
Broadband: FTTC
Telephone: Landline
Other Items
Heating: Gas Central Heating
Garden/Outside Space: No
Parking: Yes
Garage: No

Agent Statistics (Based on 63 Reviews) :