The UK's Largest Customer Review Website for the Property Industry
The UK's Largest Customer Review Website for the Property Industry
Back to Property Listings
Aldermans Hill, Palmers Green, N13
Ground floor mid-terrace unit situated within a well-established shopping parade. Formerly operating as a bank, the property benefits from impressive ceiling heights and a generously proportioned, open-plan trading floor.
LOCATION
Located in a highly visible and sought-after position in the heart of Palmers Green, this commercial premises at Aldermans Hill presents an excellent opportunity for occupiers or investors seeking a well-connected property in a vibrant North London neighbourhood.
The property occupies a prominent mid-terrace position along a busy stretch of Aldermans Hill, just moments from Palmers Green Station (Overground) and directly opposite Broomfield Park, ensuring consistent footfall and high visibility. Surrounded by a mix of independent retailers, cafes, restaurants, and service providers, this location benefits from a strong local customer base and excellent transport connectivity.
DESCRIPTION
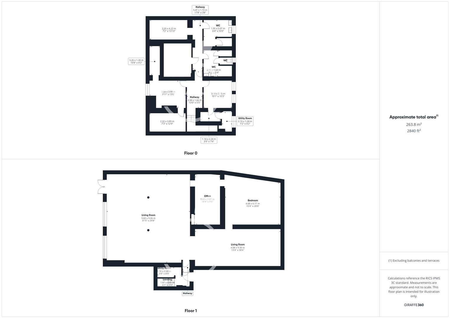
The premises comprise a ground floor mid-terrace unit situated within a well-established shopping parade. Formerly operating as a bank, the property benefits from impressive ceiling heights and a generously proportioned, open-plan trading floor. Additionally, there is a basement of equal size providing valuable ancillary space, which includes separate male and female WCs. To the rear of the property, there are three designated parking spaces.
ACCOMMODATION
Gross Internal Area: 2,840 Sq ft (263.8 Sq M)
AMENITIES
Open Plan
Large ceiling heights
Basement
Prominent position at the "Triangle," under 100? from Palmers Green station
TERMS
New Fully repairing and Insuring lease - Terms to be agreed
Business Rates
Parties are advised to make their own enquires with the local authority.
LEGAL COSTS
Each party bear own legal costs.
VIEWING
Strictly by appointment through Peach Properties

Agent Statistics (Based on 288 Reviews) :