The UK's Largest Customer Review Website for the Property Industry
The UK's Largest Customer Review Website for the Property Industry
Back to Property Listings
Albion Road, N16
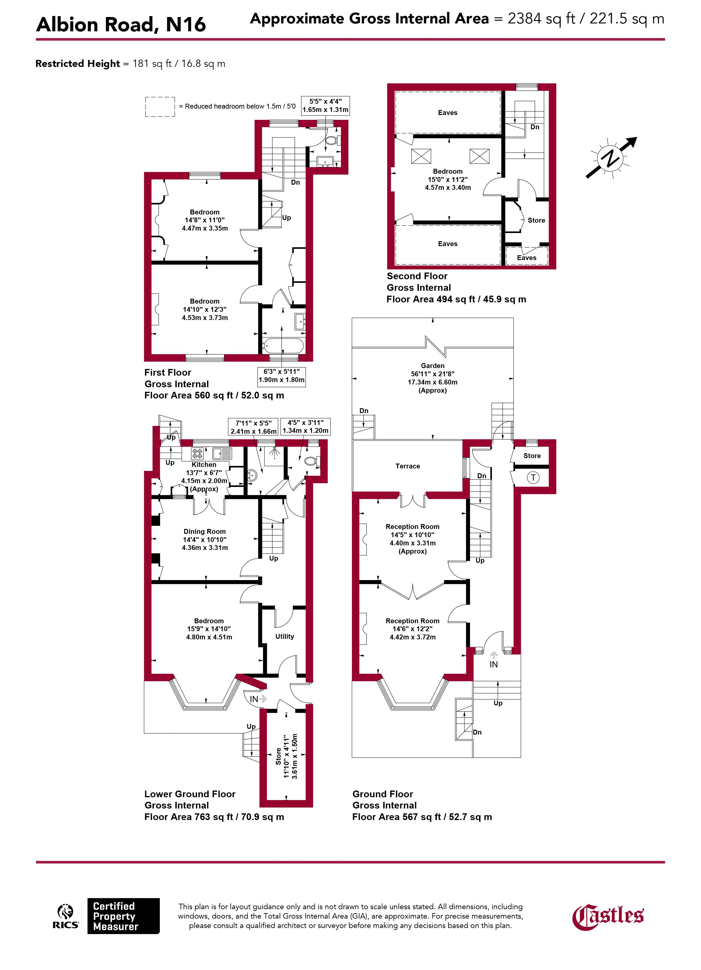
Castles Estate Agents are delighted to offer this rare to the market, four-bedroom imposing period residence, set on a charming residential road in the heart of Stoke Newington. Measuring approximately 2,384 sqft, this spacious home and is just a short stroll from the vibrant Church Street and the village-like atmosphere of Newington Green, surrounded by independent shops, cafés, restaurants, and everyday amenities. Arranged over four expansive floors and brimming with original period features, this elegant home offers exceptional living space throughout. The impressive double reception room boasts high ceilings, original wooden flooring, and refined period detailing, with doors opening onto a delightful breakfast balcony. A generous eat-in kitchen forms the heart of the home, providing the perfect setting for family life and entertaining, with direct access to a large, private south-facing garden ideal for summer gatherings or peaceful moments outdoors. Accommodation includes four double bedrooms, a large family bathroom, an additional shower room, guest WC, and utility room, offering comfort, character, and practicality in equal measure. The area is well known for its excellent selection of local schools, including Grasmere Primary, Betty Layward, and Stoke Newington School & Sixth Form all within easy reach and highly regarded by local families. For green open spaces, residents are spoilt for choice with Clissold Park, Abney Park, and Butterfield Green all nearby, offering landscaped gardens, cafés, and sports facilities that cater to all ages. Transport links are superb, with Canonbury Overground Station providing quick connections to Highbury & Islington and the Victoria Line. The property is also well served by the No.73 and other multiple bus routes, offering frequent and direct services into the City, West End, and across North and East London. Albion Road is perfectly positioned to enjoy the very best of North London living a rare opportunity to secure a home of this scale and character in one of the area's most sought-after locations. The property is being offered chain free, providing a smooth and straightforward route to purchase this family home.

This property is marketed by

Castles Estate Agents (London) - Hackney, London, E5
5/5 Rating
(939) reviews
Agent Statistics (Based on 939 Reviews) :