The UK's Largest Customer Review Website for the Property Industry
The UK's Largest Customer Review Website for the Property Industry
Back to Property Listings
Albert Road, Penge, London
Guide Price £625,000 - £650,0000
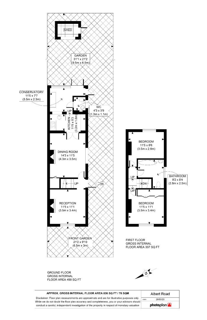
Propertyworld is proud to present this stunning two bedroom Victorian semi-detached cottage, built in 1868 and set within the highly desirable Alexandra Conservation Area in Penge. Beautifully presented and packed with charm, this is a truly special home that's both bursting with period character and tastefully updated for modern living.
The front of the house is a picture of kerb appeal, with vibrant roses climbing the façade and a classic Victorian-style timber door. Inside, the property boasts a wealth of original features, including exposed stripped wooden flooring, working period fireplace, authentic feature walls and sash-style double-glazed windows sympathetically replaced in recent years.
Accommodation includes two generous reception rooms (one with an original fireplace), a separate dining room, a stylish fully fitted kitchen that opens into a smart utility area, and a downstairs toilet - all beautifully maintained and in immaculate condition. Upstairs are two generous double bedrooms, each flooded with natural light, and a modern attractive bathroom with three-piece suite.
The South East facing rear garden is a tranquil retreat, laid to lawn with mature plants and small established trees, planters, and separate patio and shed, offering a peaceful escape from the city buzz.
This exceptional home also benefits from a private carport, off-street parking, a recent rewire (Sept 2022), a new boiler, a modern thermostatic heating system, smart home lighting, EV charging point, and a boarded loft with ladder access - ticking every practical box too.
The quiet location, in the heart of the Alexandra conservation area, provides easy walking access to the High Street, numerous train stations, gastro pubs, restaurants and coffee shops and schools
urseries, with several green spaces and parks close by.
A unique and rarely available property in a highly sought-after location. Not to be missed.
"We're sure the new owners will enjoy this warm, bright and characterful house with its unique history as much as we do - it's great for entertaining in as well as getting cosy by the fire! We love not only the Alexandra Cottages community - but Penge itself. The Alexandra Nurseries and Alexandra pub at the end of road are perfect for a weekend coffee, browse or a drink. We've lived locally for over 30 years and love the proximity to Central London (20 minutes) as much as the suburban calm of this area with Crystal Palace Park and others just a short walk away. We've had a wonderful time in this home and will be sad to leave!"

Agent Statistics (Based on 2753 Reviews) :