The UK's Largest Customer Review Website for the Property Industry
The UK's Largest Customer Review Website for the Property Industry
Back to Property Listings
Adderstone Crescent, Newcastle Upon Tyne
** Video Tour on our YouTube Channel | https://youtu.be/fpu7_WNs_D4 **
***** AVAILABLE TO LET NOW *****
This superbly presented two bedroom first floor apartment is part of an exclusive development and positioned in an ideal location on Adderstone Court, Jesmond. Originally constructed by Miller Homes in 2000, the property is located within one of the most sought after secure gated developments within the City. Adderstone Crescent, one of Newcastle's most prestigious residential streets, boasts a tranquil setting whilst also being within walking distance of the many shops, bars, cafés and restaurants that Jesmond is well known for.
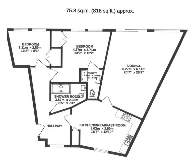
The development is accessed via a secure gated entrance. Internally the property briefly comprises:- communal entrance hall, private hall, with storage, spacious, bright and airy living room with sliding door opening to a Juliet balcony, well appointed breakfasting kitchen with fitted high gloss units and integrated oven and hob, two double bedrooms; the main with en-suite facility and there is an a opulent shower room WC. Externally there is one allocated underground private parking space. There is also visitor parking within the car park of the development. Further benefits include gas central heating, double glazing and landscaped communal gardens.
This is a wonderful opportunity not to be missed! For more details and to book a viewing please call our Gosforth branch on 0191 236 2070.
Council Tax band *D*
Lounge - 6.27 x 6.14 (20'6" x 20'1") -
Kitchen - 5.03 x 3.90 (16'6" x 12'9") -
Bedroom One - 4.27 x 3.71 (14'0" x 12'2") -
Bedroom Two - 3.11 x 2.59 (10'2" x 8'5") -

This property is marketed by

Jan Forster Estates - Newcastle, Newcastle upon Tyne, NE3
4.3/5 Rating
(1051) reviews
Agent Statistics (Based on 1051 Reviews) :