The UK's Largest Customer Review Website for the Property Industry
The UK's Largest Customer Review Website for the Property Industry
Back to Property Listings
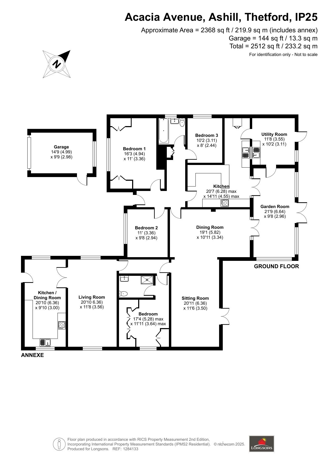
Acacia Avenue, Ashill
Situated in the popular village of Ashill with countryside view to the side, Longsons are delighted to bring to the market this very spacious bungalow with flexible accommodation. Currently the bungalow has a separate annexe but would easily be converted into a very large bungalow. The bungalow offers kitchen/breakfast room, utility, two reception rooms, garden room, three double bedrooms and family bathroom. The annexe offers kitchen/dining room, living room, one bedroom and en-suite wet room. Both accommodations include UPVC double glazing and gas central heating.
Viewing highly recommended to appreciate what`s on offer.
Briefly the property offers, entrance hall, kitchen/breakfast room, utility, dining room, sitting room, garden room, three main bungalow bedrooms, bathroom, annexe entrance hall, annexe kitchen/dining room, annexe bedroom, annexe en-suite wet room, garage, front and rear gardens, parking, UPVC double glazing and gas central heating.
Ashill
Ashill is a delightful village that offers a range of amenities, including a charming public house with a restaurant, a village shop, farm shop, and a primary school. For additional conveniences, the market towns of Swaffham, Watton, and Dereham are just a short distance away.
Entrance Hall
UPVC double glazed door to front, large storage cupboard housing hot water cylinder and boiler, loft access.
Kitchen/Breakfast Room - 20'7" (6.27m) Max x 14'11" (4.55m) Max
Fitted kitchen units to walls and floor, work surface over, one and a half bowl sink unit with mixer tap and drainer and additional boiling water tap, breakfast bar, integrated electric double oven, integrated electric hob with extractor hood over and tiled splashback, tiles to floor, space and plumbing for dishwasher, space for upright fridge freezer, UPVC double glazed French doors leading to conservatory, UPVC double glazed window to rear. radiator.
Utility Room - 11'8" (3.56m) x 10'2" (3.1m)
Fitted cabinets to wall and floor, work surface over, one and a half bowl sink unit with mixer tap and drainer, space and plumbing for washing machine, UPVC double glazed window to rear, UPVC double glazed door leading to rear garden, radiator.
Dining Room - 19'1" (5.82m) x 10'11" (3.33m)
UPVC double glazed French doors leading to conservatory, radiator.
Sitting Room - 20'11" (6.38m) x 11'6" (3.51m)
UPVC double glazed French doors leading to rear garden, radiator.
Garden Room - 21'9" (6.63m) x 9'8" (2.95m)
UPVC double glazed French doors leading to rear garden, two UPVC double glazed windows to rear, radiator.
Bedroom One - 16'3" (4.95m) x 11'0" (3.35m)
Fitted wardrobes, UPVC double glazed window to front, radiator.
Bedroom Two - 11'0" (3.35m) x 9'8" (2.95m)
UPVC double glazed window to front, radiator.
Bedroom Three - 10'2" (3.1m) x 8'0" (2.44m)
UPVC double glazed window to side, radiator.
Bathroom
Panelled bath with shower over, hand wash basin with tiled splash back, WC, UPVC double glazed obscure window to side, radiator.
Annexe Entrance Hall
Radiator.
Annexe Kitchen/Dining Room - 20'10" (6.35m) x 9'10" (3m)
Fitted kitchen units to wall and floor, work surface over with stainless steel one and a half bowl sink unit with boiling water tap and drainer, integrated electric double oven, intergrated hob with extractor hood over with splashback, space and plumbing for washing machine, space for small fridge, Dual aspect UPVC double glazed windows to sides, UPVC double glazed door to front, radiator.
Annexe Bedroom - 17'4" (5.28m) x 11'11" (3.63m)
UPVC double glazed window to side, two built-in wardrobes, radiator.
Annexe En-Suite Wet Room
Fully tiled walls, shower, hand wash basin, WC, extractor fan.
Annexe - Living Room - 20'10" (6.35m) x 11'8" (3.56m)
Dual aspect UPVC double glazed windows to sides, radiator.
Garage
Main up and over door to front, currently not in use as used as a storage room, UPVC double glazed window to rear, electric lights and power, UPVC double glazed door leading to rear garden.
Outside Front
Driveway providing off-road parking leading to garage, front garden laid to lawn, outside lights, wooden fence to perimeter.
Annexe Front;
Plants and shrubs to borders, fence and hedge to perimeter, gated access to rear garden.
Rear Garden
Brickweave block paved patio area with path leading to another patio area, three areas laid to lawn, mature shrubs and plants to beds and borders, raised flower beds with decorative slate chippings, garden pond, two wooden sheds, wooden decking leading up to pond, wooden fence and hedge to perimeter.
Agents Note
EPC rating D64 (Full copy available on request)
Council tax band for main bungalow C and Annexe A (Own enquiries should be made via Breckland District Council)
Notice
Please note we have not tested any apparatus, fixtures, fittings, or services. Interested parties must undertake their own investigation into the working order of these items. All measurements are approximate and photographs provided for guidance only.
Utilities
Electric: Mains Supply
Gas: Mains Supply
Water: Mains Supply
Sewerage: Mains Supply
Broadband: ADSL
Telephone: Landline
Other Items
Heating: Not Specified
Garden/Outside Space: No
Parking: No
Garage: No

Agent Statistics (Based on 1 Reviews) :