The UK's Largest Customer Review Website for the Property Industry
The UK's Largest Customer Review Website for the Property Industry
Back to Property Listings
A fine example of a traditional Sussex Barn, intelligently converted to offer 3700 sq ft of stylish living in quiet village location just 2 miles east
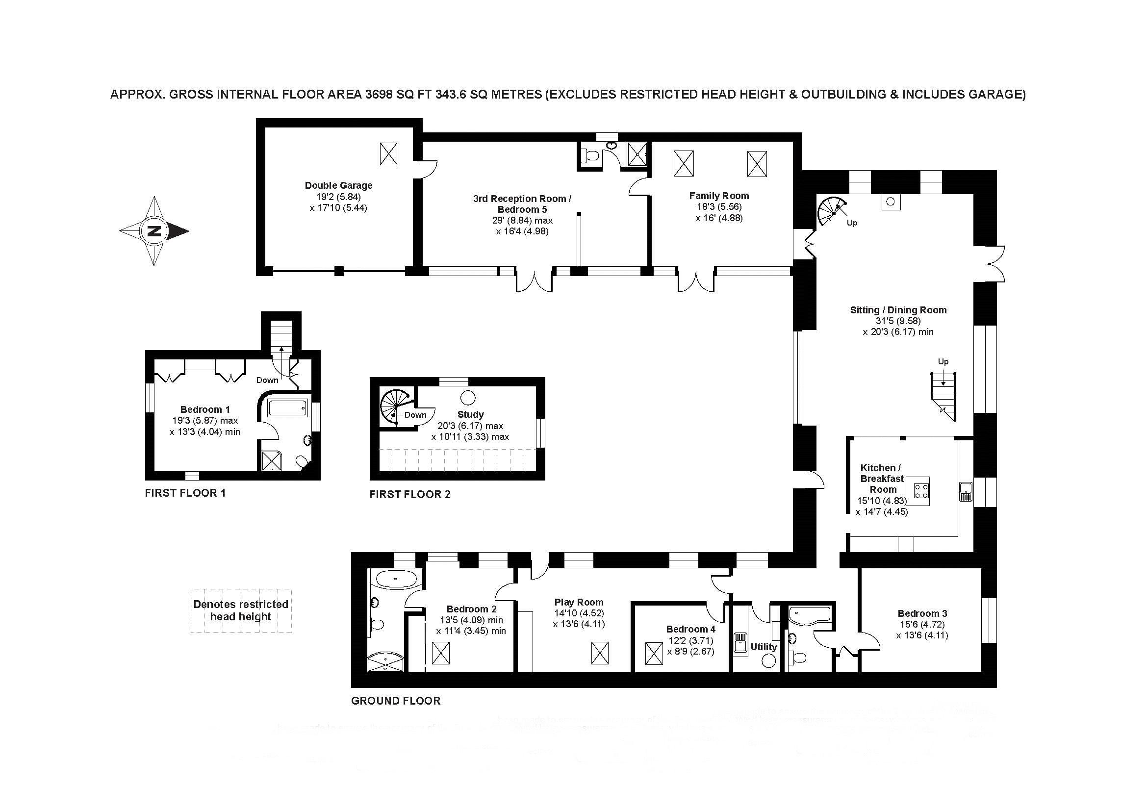
A stylish country lifestyle is on offer at this impressive Sussex barn conversion, 3700 sq ft of fabulous living space currently comprising five bedrooms, four reception rooms and four bathrooms with a versatile floorplan ideal as either a full time country home or weekend retreat.
Turnkey and ready to move into this spacious barn is superbly located in a quiet village just 2 miles east of the historic city of Chichester, the property is set well back from a country lane with uninterrupted views of farmland to the front and a beautiful outlook over the large rear garden, pretty meadow and the South Downs National Park beyond.
This unique, interesting property is set around a private wall enclosed courtyard, the heart of the barn is the impressive main hall which features a stunning vaulted ceiling with exposed timbers, full height dual aspect windows drench this vast open space with light and your eyes cannot be drawn away from the views of the countryside to both the front and rear of the property.
The main reception room is split into three distinct areas, to one end is large lounge featuring a contemporary wood burning stove, in the centre there is currently a dining area and to the far end is the luxuriously fitted kitchen designed with all the features one would expect to find within a property of this standard, there is combination of flooring in the main reception, the beauty and warmth of wood to the dining room area and lounge, with the contrast of natural stone offering practicality to the kitchen.
From the lounge area a funky spiral staircase gives you access to a large first floor study with views to the side and rear of the property, doors from the lounge open into the family room, and in turn lead into reception room three/ bedroom five with en suite facilities but which is currently used to great effect as a games room.
The master bedroom suite is located on the first floor and is accessed by its own staircase from the central reception hall, this fantastic room offers peace and privacy from the main bedroom wing and benefits from a full sized en suite bathroom, the guest bedroom suite is located at the furthest end of the eastern side of the property offering again peace and much privacy to visitors, also benefitting from a full sized en suite bathroom. There are two further bedrooms, plus a play room, the main family bathroom and a useful utility room.
The grounds of this property are as equally impressive as the living space, the barn is set well back from a country lane and owns the long driveway which serves only one other property however this entrance could easily be divided and gated if a buyer preferred a seperate entrance from the road, a five bar electric gate opens into a central courtyard which is for the most part paved but has an area landscaped with shrubs, inlcuding bamboo which gives some interest, shade and privacy to the main hall, access to the large double garage is also gained from the courtyard.
To the rear of the property is an expanse of lawn, an extensive terrace and a detached timber garden room with large decking area complete with an inviting hot tub, we dont know many people that will not be able to envisage themselves enjoying a cool glass of wine on a sunny afternoon or warm evening here, the garden opens out onto a large landlocked meadow which is owned by the Church commission but is now leased to the current owners at a nominal annual rent, beyond there is views of the beautiful West Sussex countryside and in the distance the South Downs Hills.
Chichester offers a vast array of shopping, entertainment and leisure opportunities including many pre West End runs at The Festival Theatre, nearby The Goodwood estate hosts renowned annual events including The Festival of Speed, The Revival and of course Glorious Goodwood, only a short drive away is mile upon mile of stunning coastline waiting for you to enjoy including the devine beaches at West Wittering and of course the natural beauty of The South Downs National Park is ready to explore.
Communication links are excellent, by car, 40 minutes to vibrant Brighton, 20 minutes to Portsmouth giving cross channel access to the continent and 45 minutes to London Gatwick airport, the main line train service up to town is great, from nearby Barnham station it is only 85 minutes, direct with no changes straight into London Victoria, by the time you have checked your mail you would be there.
There is a superb choice of local schools in both the private and public sector including nearby Westbourne House, The Prebendal in Chichester, Oakwood Prep at East Ashling and to the north Seaford College at East Lavington, in the public sector St Phillip Howard at Barnham is popular and the recently created Chichester Free School is fast gaining an excellent reputation amongst local parents as the school of choice.
Berrymarsh Barn has been priced realistically and we believe this fantastic barn conversion offers exceptional value, our vendors are highly motivated to sell and they look forward to warmly welcoming you to view their wonderful home.

This property is marketed by

Marchwood Estate Agents - Chichester, Chichester, PO19
0/5 Rating
(0) reviews
Agent Statistics (Based on 0 Reviews) :