The UK's Largest Customer Review Website for the Property Industry
The UK's Largest Customer Review Website for the Property Industry
Back to Property Listings
63 Drinkwater Crescent, Renfrew, PA4
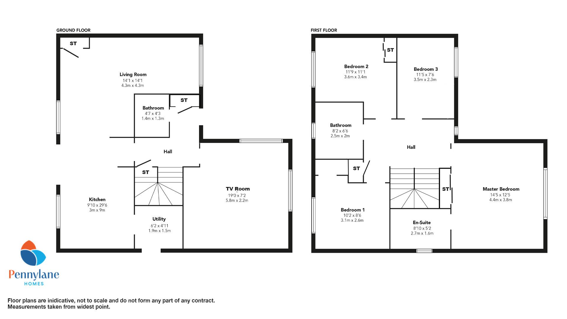
This immaculately presented property is accessed via a welcoming entrance hallway with cloakroom off. A beautifully presented formal lounge is located to the front of the property with high specification finishes and dual aspect windows creating a bright and airy space, perfect for entertaining.
To the rear, the garage conversion has allowed for a fantastic flexible space for any family, with large kitchen, dining area with space for a large dining table and informal sitting area with modern wall panelling. The kitchen comprises a combination of wall and floor mounted modern units with contrasting worktop, integrated dishwasher, integrated eye level double oven, four burner gas hob and chimney style hood. This area benefits from patio doors to the rear garden and several windows, flooding the space with natural light. A utility room is conveniently located off the kitchen.
A sweeping staircase provides access to a beautiful open upper hallway with window and loft access. The master suite, as with the rest of the property, has been finished to a high standard, with Juliette balcony and additional side windows overlooking the quiet cul de sac. There are mirror fronted fitted wardrobes offering essential storage, and an en-suite shower room with walk in shower cubicle. There are two further double bedrooms, quietly situated to the rear, both benefiting from mirror fronted fitted wardrobes, and a smaller single bedroom. The upper level is completed with a family bathroom complete with bath.
Externally there are beautifully finished South facing landscaped gardens with spacious lawn and patio surround. The garden is secure on all sides with high fencing and gate to the side, making this a perfect place for children to play. To the front there is driveway parking for two vehicles and small front lawn.
This immaculate home benefits from custom decor and soft furnishings throughout making this a one of a kind and highly desirable property.
The property has been fitted with a Verisure home security system and further benefits from gas central heating and double glazing throughout. Being only recently built, this beautiful home will benefit from the remainder of the 10 year NHBC warranty.
The property is a Bellway "Pinehurst" with all properties of this style now sold out on the development.
Drinkwater Crescent is a quiet cul-de-sac within the popular Ferry Village area of Renfrew. This particular property is only minutes walk from Xsite Entertainment Complex and Braehead Shopping Centre, where all manner of retail and leisure opportunities are readily available. The area is served by fantastic public transport links, with Braehead Bus Terminus a short walk from the property. For those looking to take advantage of the great outdoors, the Clyde Walkway runs parallel to the development, popular with dog walkers, cyclists and runners and the Riverside Park is located a short walk from the property.
Notice
Please note we have not tested any apparatus, fixtures, fittings, or services. Interested parties must undertake their own investigation into the working order of these items. All measurements are approximate and photographs provided for guidance only.
Council Tax
Renfrewshire Council, Band F
Utilities
Electric: Mains Supply
Gas: Mains Supply
Water: Mains Supply
Sewerage: Mains Supply
Broadband: Unknown
Telephone: Unknown
Other Items
Heating: Gas Central Heating
Garden/Outside Space: Yes
Parking: Yes
Garage: No

Agent Statistics (Based on 197 Reviews) :