The UK's Largest Customer Review Website for the Property Industry
The UK's Largest Customer Review Website for the Property Industry
Back to Property Listings
57 Crawford Road, Houston
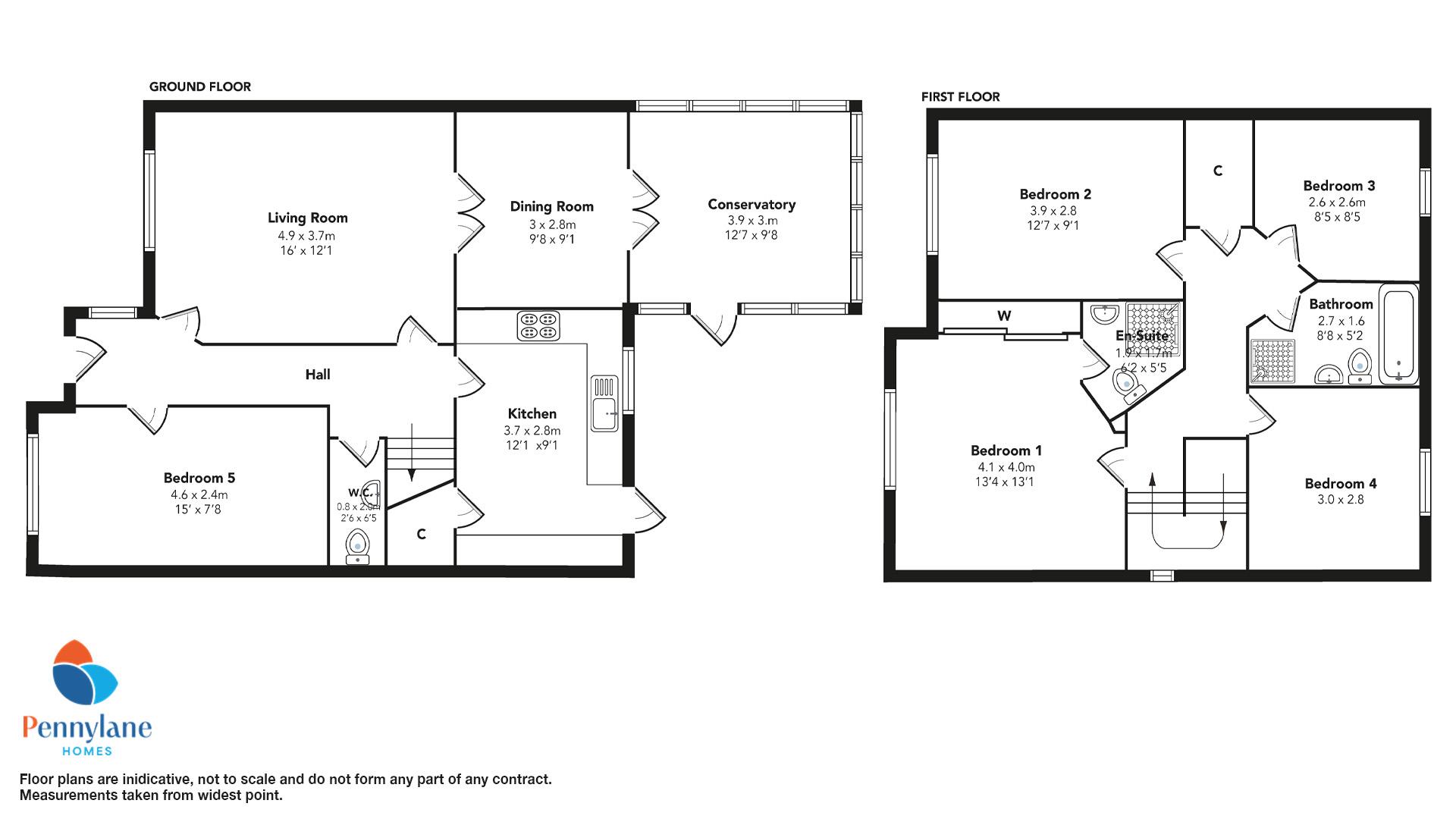
57 Crawford Road is a spacious and well-maintained four-bedroom detached home that offers flexible living in a peaceful residential setting.
The home boasts a bright and welcoming interior with generous living spaces designed for both everyday comfort and entertaining. The modern dining kitchen is well-appointed with contemporary fittings and ample storage, while the main living areas are filled with natural light and provide an excellent flow throughout. The dining room leads via French doors to a large conservatory overlooking the very private landscaped garden to the rear.
One of the stand out features of this home is the converted garage, which has been transformed into a practical and stylish home office ideal for remote working, a study area, additional family space or a downstairs bedroom.
Upstairs, three well-proportioned double bedrooms and a single bedroom provide ample accommodation, each offering a comfortable retreat with plenty of storage. The master bedroom benefits from a contemporary on-suite with corner shower unit. The family bathroom is a good size with a fully tiled modern look.
The property is in good all-round condition, reflecting the care and attention it has received over the years.
Externally, the home benefits from private gardens to the front and rear, perfect for outdoor entertaining or children`s play. There`s also additional space to either side of the property. A spacious mono blocked area at the front of the property offers off-street parking for multiple vehicles.
This property presents a unique opportunity to acquire a family home that combines comfort, functionality, and a prime location. The converted garage adds valuable flexible space, catering to the evolving needs of modern living. With its inviting ambiance and practical layout, 57 Crawford Road is poised to attract discerning buyers seeking a balanced lifestyle in a vibrant community.
what3words /// null
Notice
Please note we have not tested any apparatus, fixtures, fittings, or services. Interested parties must undertake their own investigation into the working order of these items. All measurements are approximate and photographs provided for guidance only.
Council Tax
Renfrewshire Council, Band F
Utilities
Electric: Mains Supply
Gas: None
Water: Mains Supply
Sewerage: None
Broadband: None
Telephone: None
Other Items
Heating: Not Specified
Garden/Outside Space: No
Parking: No
Garage: No

Agent Statistics (Based on 197 Reviews) :