The UK's Largest Customer Review Website for the Property Industry
The UK's Largest Customer Review Website for the Property Industry
Back to Property Listings
55 Findhorn, North Barr, Erskine, PA8 6DX
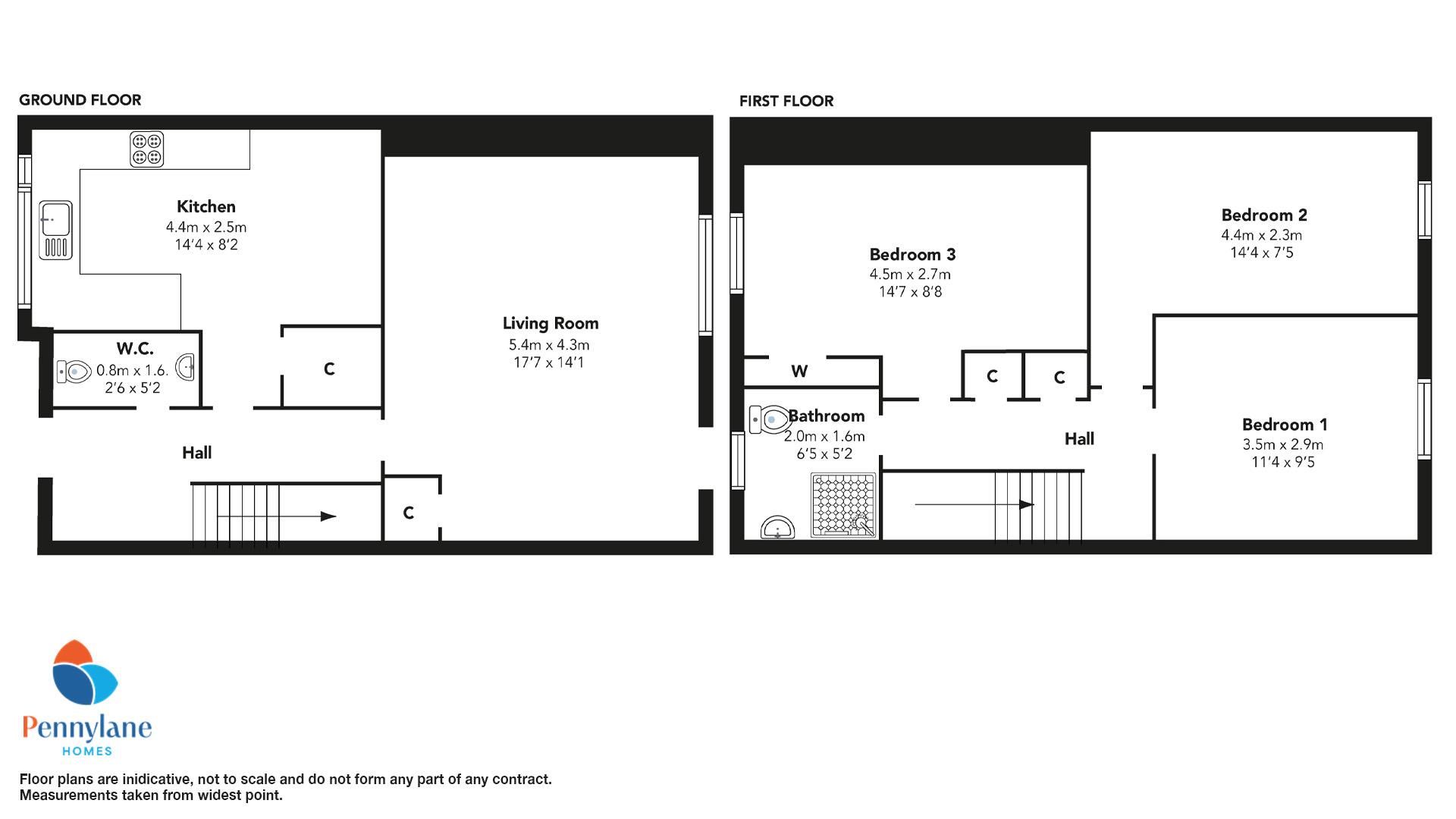
This attractive property is offered in good condition throughout, featuring bright and spacious accommodation across two levels. On the ground floor, the home benefits from a generously proportioned lounge, ideal for relaxing or entertaining guests, and a modern dining kitchen with ample storage and workspace. A convenient downstairs WC adds to the practical appeal of the ground floor.
Upstairs, there are three good sized bedrooms, each with plenty of natural light and space for storage or furniture, along with a family bathroom.
To the rear, the enclosed garden provides a secure and low-maintenance outdoor area, easily accessible via the lounge, perfect for children, pets, or summer barbecues. The property also enjoys residents` parking and is located within easy reach of local schools, shops, and excellent transport links for commuting to Glasgow and beyond.
This is a superb opportunity to secure a quality home in a popular area early viewing is highly recommended.
Notice
Please note we have not tested any apparatus, fixtures, fittings, or services. Interested parties must undertake their own investigation into the working order of these items. All measurements are approximate and photographs provided for guidance only.
Council Tax
Renfrewshire Council, Band C
Utilities
Electric: Mains Supply
Gas: None
Water: Mains Supply
Sewerage: None
Broadband: None
Telephone: None
Other Items
Heating: Not Specified
Garden/Outside Space: No
Parking: No
Garage: No

Agent Statistics (Based on 197 Reviews) :