The UK's Largest Customer Review Website for the Property Industry
The UK's Largest Customer Review Website for the Property Industry
Back to Property Listings
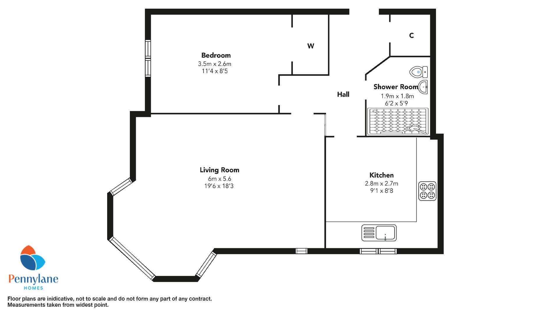
26 Kilpatrick Avenue, Renfrewshire, PA2 9DL
The property features a spacious and inviting living room, perfect for relaxing or entertaining. The kitchen/diner is well-equipped with fitted units, good worktop space and room for a table and chairs. A good sized bright double bedroom benefits from an internal wardrobe, while the stylish, modern bathroom is finished to a high standard with quality fittings, including a sleek vanity unit, a large walk in shower and contemporary tiling and wet wall.
Additional benefits include electric storage heating, double glazing, and secure entry to the building. Residents also benefit from well-maintained communal grounds and a residents car park.
Located close to a range of local amenities, schools, and public transport links, the flat offers excellent convenience for commuting into Paisley, Glasgow, and surrounding areas.
This attractive flat is ready to move into and offers fantastic value in a convenient and popular part of Renfrewshire. Early viewing is highly recommended.
Notice
Please note we have not tested any apparatus, fixtures, fittings, or services. Interested parties must undertake their own investigation into the working order of these items. All measurements are approximate and photographs provided for guidance only.
Council Tax
Renfrewshire Council, Band C
Utilities
Electric: Unknown
Gas: Unknown
Water: Unknown
Sewerage: Unknown
Broadband: Unknown
Telephone: Unknown
Other Items
Heating: Not Specified
Garden/Outside Space: No
Parking: No
Garage: No

Agent Statistics (Based on 197 Reviews) :