The UK's Largest Customer Review Website for the Property Industry
The UK's Largest Customer Review Website for the Property Industry
Back to Property Listings
17 Dundonnell Road, Bishopton, PA7 5SE
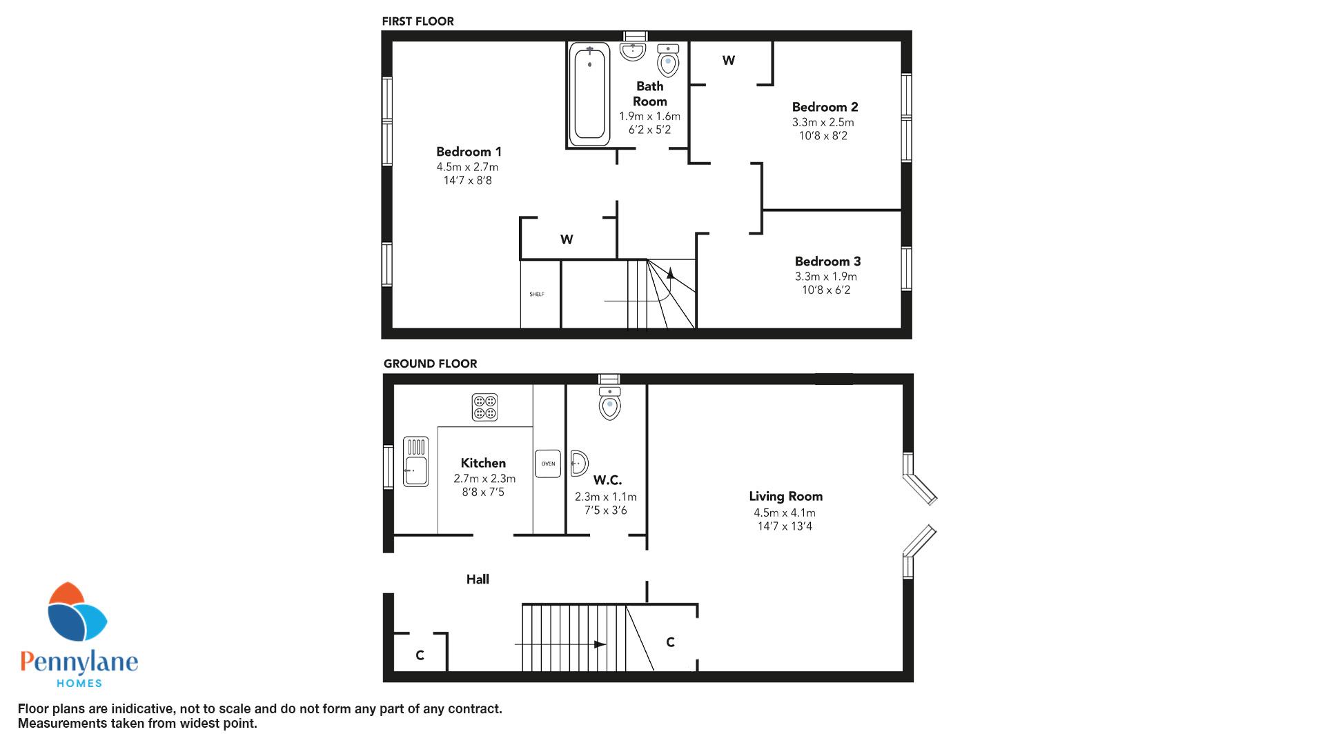
Comprises a stylish entrance hall with downstairs WC, a stunning modern kitchen with integrated appliances that includes hob,oven, extractor hood, fridge freezer, washing machine and dishwasher and a bright spacious living room diner with French doors leading to a good-sized landscaped garden
On the first floor are three bedrooms and a family bathroom, the master bedroom is a good size and benefits from fitted wardrobes. The second bedroom also has fitted wardrobes and is a good size. All three bedrooms are finished to a very high standard with modern neutral decor and flooring throughout.
Externally, there is a two car mono block driveway with a low-maintenance landscaped front garden, the property also benefits from a good sized South facing rear garden which is fully enclosed and immaculately landscaped providing an excellent location for enjoying the sun and a great social space for entertaining.
In addition, there is gas central heating, double glazing, solar panels, high quality contemporary flooring and tiling throughout, the loft space that has been converted and floored to provide extra storage.
Early viewing of this property is highly recommended to appreciate how truly turnkey this property is.
Dargavel Village promises ample opportunities to enjoy the outdoors, with acres of beautiful countryside and coastline nearby, including countless walking routes, cycling trails and picnic spots. The development has a great selection of local amenities and village stores, including a supermarket and family-friendly eateries are also plentiful in the area.
what3words /// accusing.reworked.rocked
Notice
Please note we have not tested any apparatus, fixtures, fittings, or services. Interested parties must undertake their own investigation into the working order of these items. All measurements are approximate and photographs provided for guidance only.
Council Tax
Renfrewshire Council, Band D
Utilities
Electric: Mains Supply
Gas: None
Water: Mains Supply
Sewerage: None
Broadband: None
Telephone: None
Other Items
Heating: Not Specified
Garden/Outside Space: No
Parking: No
Garage: No

Agent Statistics (Based on 197 Reviews) :