The UK's Largest Customer Review Website for the Property Industry
The UK's Largest Customer Review Website for the Property Industry
Back to Property Listings
160 Church Street, Whitby
This attractive Grade II listed property offers a versatile investment opportunity.
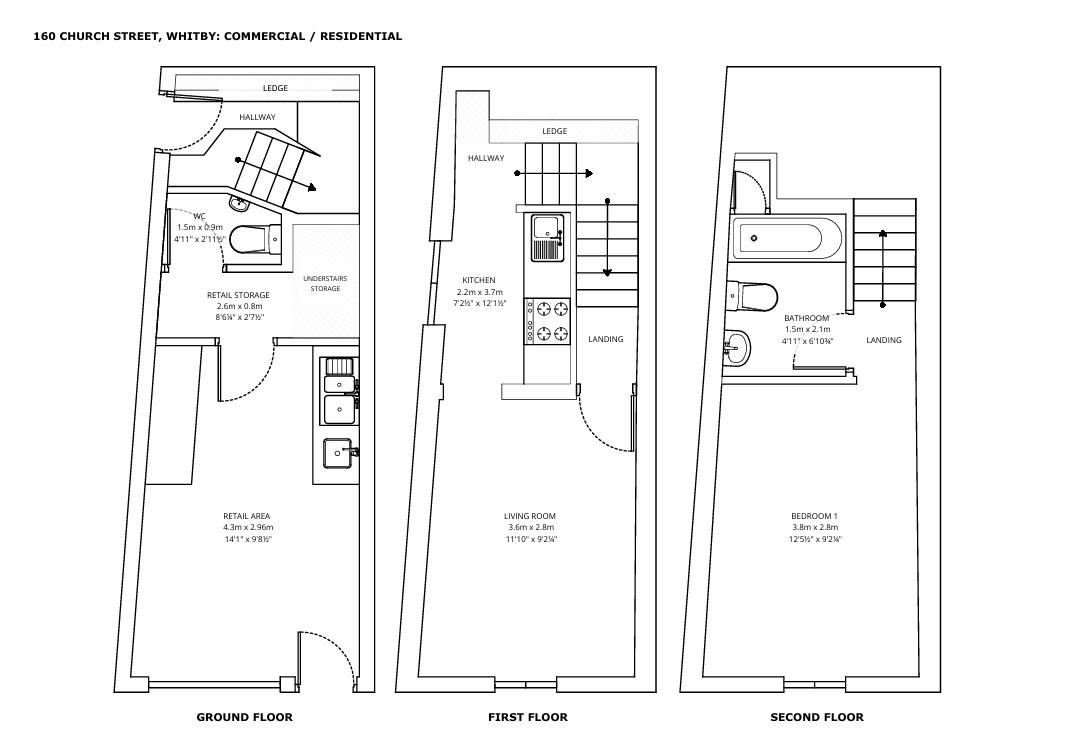
The ground floor comprises a retail space (16`6 x 9`6) complete with WC and hand basin to the rear, perfect for a small business in a central location.
With separate access, the first floor Maisonette features a spacious lounge (12` x 9`) with exposed beams and a front facing window, leading through an arch way to a well equipped kitchen (10`6 x 5`1).
A generous double bedroom (12`4 x 8`8) and a separate bathroom (6`10 x 5`3) complete the accommodation
, the property has electric heating and hot water.
Previously used as a successful holiday let, the property benefits from its prime location in a popular tourist destination.
Being sold via Secure Sale online bidding. Terms & Conditions apply. Starting Bid of ?180,000
Pattinson Auction are working in Partnership with the marketing agent on this online auction sale and are referred to below as `The Auctioneer`.
This auction lot is being sold either under conditional (Modern) or unconditional (Traditional) auction terms and over seen by the auctioneer in partnership with the marketing agent.
The property is available to be viewed strictly by appointment only via the Marketing Agent or The Auctioneer. Bids can be made via the Marketing Agents or via The Auctioneers website.Please be aware that any enquiry, bid or viewing of the subject property will require your details being shared between both any marketing agent and The Auctioneer in order that all matters can be dealt with effectively.
The property is being sold via a transparent online auction. In order to submit a bid upon any property being marketed by The Auctioneer, all bidders/buyers will
be required to adhere to a verification of identity process in accordance with Anti Money Laundering procedures. Bids can be submitted at any time and from anywhere.
Our verification process is in place to ensure that AML procedure are carried out in accordance with the law.
The advertised price is commonly referred to as a Starting Bid` or Guide Price`, and is accompanied by a Reserve Price`. The Reserve Price` is confidential to the seller and the auctioneer and will typically be within a range above or below 10% of the Guide Price` / Starting Bid`.A Legal Pack associated with this particular property is available to view upon request and contains details relevant to the legal documentation enabling all interested parties to make an informed decision prior to bidding. The Legal Pack will also outline the buyers` obligations and sellers commitments. It is strongly advised that you seek the counsel of a solicitor prior to proceeding
with any property and/or Land Title purchase.
Auctioneers Additional Comments
In order to secure the property and ensure commitment from the seller, upon exchange of contracts the successful bidder will be expected to pay a non-refundable deposit equivalent to 5% of the purchase price of the property. The deposit will be a contribution to the purchase price. A non refundable reservation fee of up to 6% inc VAT (subject to a minimum of 6,000 inc VAT) is also required to be paid upon agreement of sale. The Reservation Fee is in addition to the agreed purchase price and consideration should be made by the purchaser in relation to any Stamp Duty Land Tax liability associated with overall purchase costs. Both the Marketing Agent and The Auctioneer may believe necessary or beneficial to the customer to pass their details to third party service suppliers, from which a referral fee may be obtained. There is
no requirement or indeed obligation to use these recommended suppliers or services.
Notice
Please note we have not tested any apparatus, fixtures, fittings, or services. Interested parties must undertake their own investigation into the working order of these items. All measurements are approximate and photographs provided for guidance only.
Council Tax
Scarborough Borough Council, Business Rates
Utilities
Electric: Mains Supply
Gas: None
Water: Mains Supply
Sewerage: Mains Supply
Broadband: Unknown
Telephone: Unknown
Other Items
Heating: Not Specified
Garden/Outside Space: No
Parking: No
Garage: No

This property is marketed by

Pridea Sales & Lettings - Lincoln, Lincoln, LN5
4.9/5 Rating
(191) reviews
Agent Statistics (Based on 191 Reviews) :